**Standout Features:**
- Mid-terraced home with a stylish modern interior
- 2 spacious double bedrooms, perfect for first-time buyers or investors
- Contemporary kitchen/diner ideal for entertaining
- Enclosed garden with artificial lawn, minimal upkeep required
- Off-road parking and detached garage for added convenience
- Located in a sought-after area with low crime rates
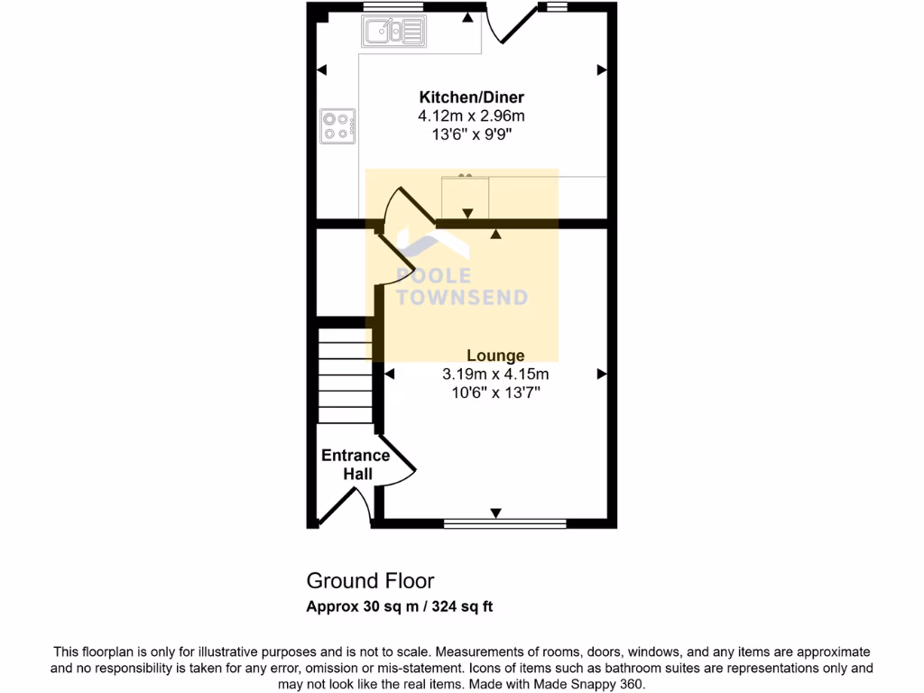
This attractive mid-terraced house combines comfort and practicality, making it an ideal choice for first-time buyers, couples, or savvy investors. The spacious lounge seamlessly flows into a well-appointed kitchen/diner, designed for both daily living and entertaining. Upstairs, two generous double bedrooms provide ample space and are complemented by a contemporary shower room.
The property boasts an enclosed garden, featuring an artificial lawn and patio area, perfect for outdoor relaxation without the hassle of maintenance. With off-road parking and a detached garage, convenience is at your fingertips. Nestled in a popular residential area with excellent transport links and low crime rates, this home offers not just a stylish living space but also the potential for a solid investment. Don’t miss out on this opportunity to secure a comfortable home in a desirable location!
2 bedroom end of terrace house for sale in Wasdale Close, Kendal, LA9 — £230,000 • 2 bed • 1 bath • 915 ft²
2 bedroom terraced house for sale in Yeats Close, Kendal, LA9 — £230,000 • 2 bed • 1 bath • 785 ft²
2 bedroom terraced house for sale in Strickland Court, Kendal, LA9 4QU, LA9 — £235,000 • 2 bed • 1 bath • 706 ft²
2 bedroom end of terrace house for sale in Cock & Dolphin Yard, Kendal, LA9 5FE, LA9 — £250,000 • 2 bed • 1 bath • 531 ft²
3 bedroom end of terrace house for sale in Kirkbarrow, Kendal, LA9 — £258,000 • 3 bed • 2 bath • 994 ft²
2 bedroom end of terrace house for sale in Well Ings, Kendal, Cumbria, LA9 — £215,000 • 2 bed • 1 bath • 639 ft²


















































































