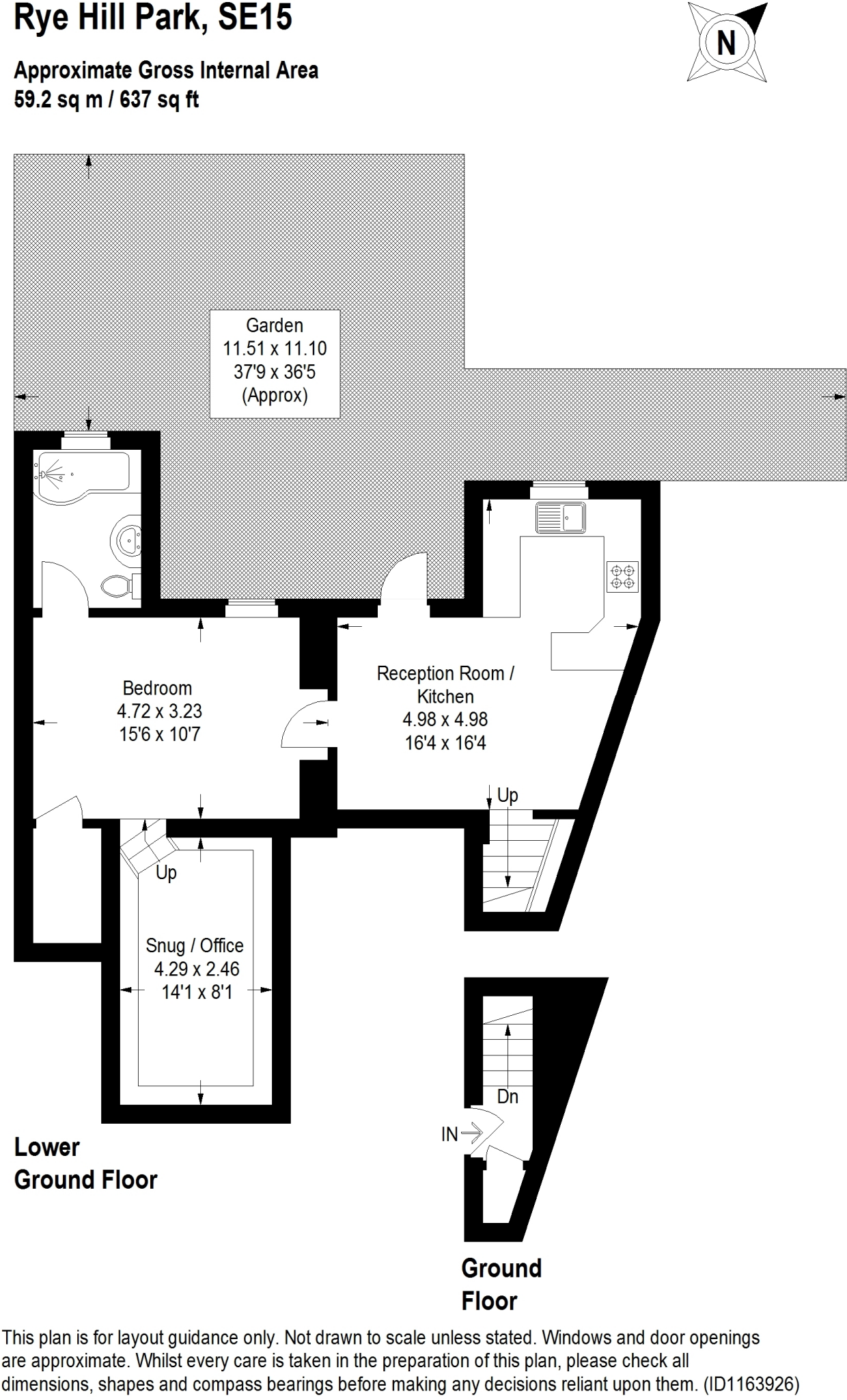
**Standout Features:**
- Spacious 1-bedroom apartment with a snug/office room
- Private garden, perfect for relaxation and entertaining
- Long 161-year lease and chain-free sale
- Located in a peaceful cul-de-sac, close to Peckham Rye Park
- Excellent transport links within a short walk
This spacious flat offers an inviting blend of comfort and urban convenience. Nestled in a tranquil cul-de-sac, you'll enjoy the luxury of a private garden—the ideal retreat for morning coffees or summer BBQs—while being just moments from the lively atmosphere of Peckham, Nunhead, and East Dulwich. The well-proportioned living area, enhanced by high ceilings and updated flooring, is perfect for entertaining, with a snug room that can serve as an office or cozy reading nook.
The property is bright and airy, bolstered by double glazing, providing a peaceful environment despite its city location. With a long lease and no chain, this apartment offers the perfect opportunity for first-time buyers or investors seeking rental potential. While the building's age suggests some maintenance may be needed (the walls lack insulation), the flat's unique charm, excellent local amenities, and proximity to reputable schools make it a compelling choice. Don’t miss your chance to own a slice of this serene urban oasis—schedule a viewing today!
1 bedroom flat for sale in Ava House, Kimberley Avenue, Nunhead, SE15 — £400,000 • 1 bed • 1 bath • 488 ft²
1 bedroom flat for sale in Rye Hill Park, Peckham, London, SE15 — £375,000 • 1 bed • 1 bath • 471 ft²
1 bedroom apartment for sale in Forest Hill Road, London, SE22 — £375,000 • 1 bed • 1 bath • 630 ft²
2 bedroom flat for sale in Cheltenham Road, Upper Nunhead, London, SE15 — £485,000 • 2 bed • 1 bath • 667 ft²
1 bedroom ground floor flat for sale in Peckham Rye, Peckham, SE15 — £435,000 • 1 bed • 1 bath • 653 ft²
1 bedroom flat for sale in Gautrey Road, Nunhead, SE15 — £335,000 • 1 bed • 1 bath • 451 ft²


























































































