**Standout Features:**
- Large plot size of approximately 54 ft x 42 ft (c. 227 m²)
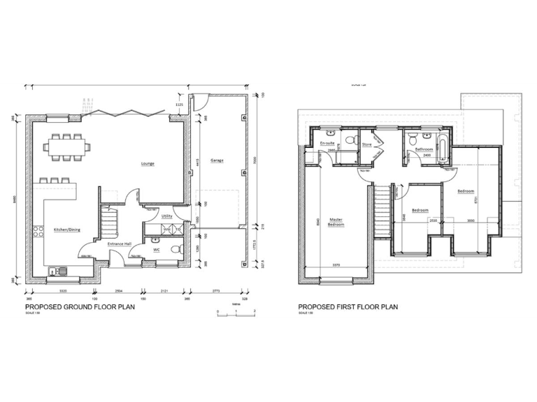
- Full planning permission for a three-bedroom detached house with a garage
- Chain-free sale
- Excellent road access & nearby utilities
- Residential area with a large, overgrown garden
- Average local crime rates and good broadband connectivity
**Summary:**
Seize this exciting development opportunity with a generously sized plot of land on Taranto Road, Canvey Island. This prime plot of 2435 sq. ft. comes with full planning permission to construct a modern three-bedroom detached home with a garage, perfect for developers or those wishing to custom-build their family residence. Located in a comfortable suburban community, the land is ideally situated with convenient access to local amenities and respected primary schools boasting "Good" Ofsted ratings.
While the plot features an overgrown garden that requires maintenance, its potential is boundless. This is a rare chance to create your dream home or a lucrative investment in a city environment with a promising future. Don’t miss the opportunity—explore the possibilities today!
Land for sale in Eastfield Road, Canvey Island, SS8 — £160,000 • 1 bed • 1 bath
Land for sale in Branksome Avenue, Wickford, Essex, SS12 — £350,000 • 1 bed • 1 bath
3 bedroom chalet for sale in Labworth Road, Canvey Island, SS8 — £375,000 • 3 bed • 1 bath
Land for sale in Land on the north side of Northwick Road , Northwick Road, Canvey Island, SS8 — POA • 1 bed • 1 bath
Land for sale in Maurice Road, Canvey Island, SS8 — £290,000 • 1 bed • 1 bath
4 bedroom detached house for sale in Ferndale Crescent, Canvey Island, SS8 — £500,000 • 4 bed • 2 bath • 1098 ft²










