Family-focused four-bedroom house with private garden, garage and flexible living space.
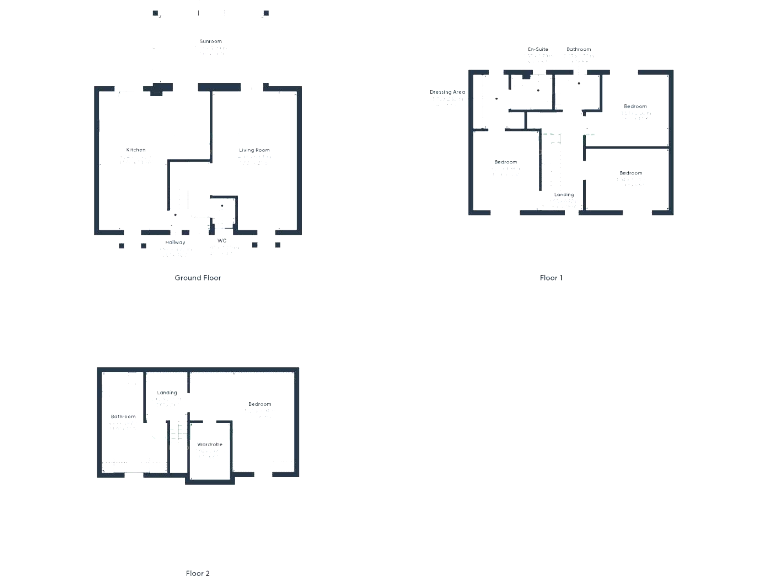
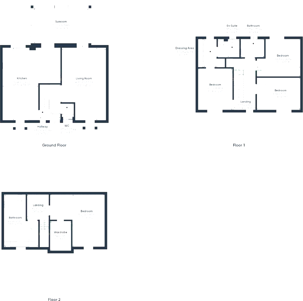
Four bedrooms across three floors, including top-floor suite with walk-in wardrobe
Private, low-maintenance paved rear garden with hot tub and privacy
Garage plus off-road parking and side gate access
Constructed 2003–2006; double-glazed and cavity wall insulation assumed
Freehold tenure; mains gas boiler with radiators, fast broadband and mobile signal
Approx. 2,002 sq ft (186 sq m) — generous family accommodation
Council tax band unknown; buyers should confirm costs
Exclusivity and processing fees mentioned — confirm applicability and seek advice
Set on a quiet cul‑de‑sac in Heybridge, this four‑bedroom detached house offers flexible family living across three floors. The layout includes a generous living room, modern kitchen, conservatory overlooking a private rear garden, and a top‑floor suite with walk‑in wardrobe and bathroom — ideal for a teenager or guest retreat.
Practical features include a garage, off‑road parking, mains gas central heating with a boiler and radiators, double glazing, and fast mobile and broadband connectivity. The low‑maintenance paved garden is private and not overlooked; the plot is a decent size for outdoor entertaining and includes a hot tub.
Constructed in the early 2000s and offered freehold, the property sits in an affluent, low‑crime neighbourhood with good local schools and easy links to Maldon and commuter routes. Flooding risk is very low.
Notable points to check before committing: council tax banding is not provided, and the sales particulars advise purchasers to verify condition and measurements independently. The seller’s stated buyer process includes an exclusivity fee (£2,000) and a processing fee (£200) to reserve the property; buyers should confirm whether these apply and seek legal advice before payment.
3 bedroom detached house for sale in Heybridge Woods View, Heybridge, CM9 — £375,000 • 3 bed • 2 bath • 991 ft²
4 bedroom detached house for sale in Gill Close, Heybridge, CM9 — £479,950 • 4 bed • 2 bath • 818 ft²
4 bedroom terraced house for sale in Hillary Close, Heybridge, CM9 — £350,000 • 4 bed • 2 bath • 1400 ft²
4 bedroom detached house for sale in Brompton Gardens, Maldon, CM9 6YU, CM9 — £550,000 • 4 bed • 2 bath • 892 ft²
4 bedroom detached house for sale in St. Georges Close, Heybridge Basin, Maldon, Essex, CM9 — £550,000 • 4 bed • 3 bath • 1528 ft²
3 bedroom detached house for sale in St Andrews Way, Heybridge, CM9 — £430,000 • 3 bed • 2 bath • 932 ft²


























































































































