**Standout Features:**
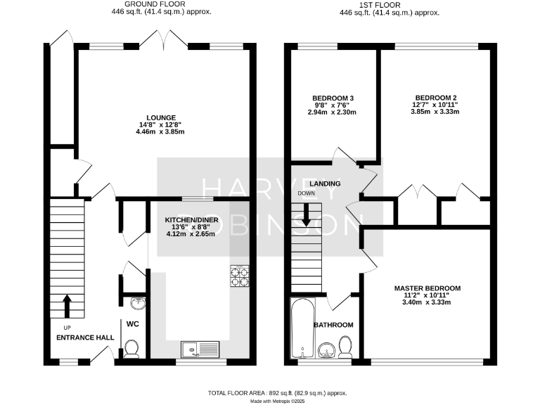
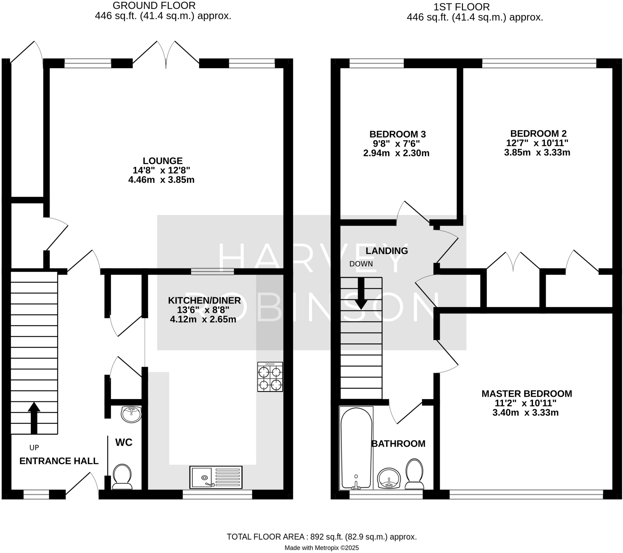
- Beautifully presented three-bedroom mid-terraced home
- Modern refitted kitchen/diner
- Spacious 14ft lounge with French doors to a landscaped rear garden
- Convenient cloakroom and family bathroom
- Chain-free; Freehold tenure
- Low-maintenance, south-facing landscaped garden
- Prime location in Huntingdon with good local amenities
**Concise Summary:**
Discover this beautifully presented three-bedroom mid-terraced home nestled in the heart of Huntingdon, a location rich in history and charm. This inviting property features a modern refitted kitchen/diner perfect for family gatherings, and a spacious lounge that opens up to a low-maintenance, south-facing garden, ideal for outdoor relaxation and entertaining.
Upstairs, find two generous double bedrooms, a cozy single bedroom, and a contemporary family bathroom. Enjoy the benefits of being chain-free and the affordability of low council tax, making this a fantastic opportunity for first-time buyers or families looking for a comfortable home in a vibrant community. With excellent transport links to London and Cambridge, alongside great local schools rated 'Good' by Ofsted, this home promises both convenience and quality living.
Don't miss out on this exceptional property that combines modern comfort with the potential for future enhancements. Schedule a viewing today, as opportunities like this are rare in such a desirable location!















































