Versatile three-bedroom village home with garage and enclosed garden.
Extended detached chalet-style house with flexible living spaces
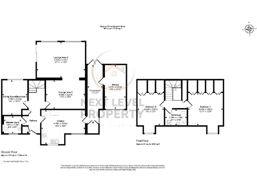
This extended detached chalet-style house offers flexible, well-presented accommodation across two floors, ideal for families or those seeking a village base. The ground floor includes a convenient bedroom and shower room, while two first-floor bedrooms share a family bathroom. The generous kitchen/breakfast room provides space for everyday dining and social cooking, and the living areas feel bright with large windows and wooden flooring.
Outside, the property sits on a decent plot with an enclosed, manageable rear garden, paved patio and a covered seating area — low-maintenance for busy households. A tarmac driveway leads to a garage for off-road parking. Practical comforts include full double glazing, mains gas central heating and all mains services; the EPC is C and the house is described as move-in ready.
Size-conscious buyers should note the overall internal area is modest (approximately 689 sq ft), so room layouts are compact despite the flexible plan. The home sits in a popular village with convenient amenities and good local schools, but the wider area has higher deprivation statistics which may influence long-term resale dynamics. On balance this is a comfortable, ready-to-live-in village home with scope for cosmetic updating to personalise.
4 bedroom chalet for sale in Low Road, Elm, PE14 — £375,000 • 4 bed • 4 bath
4 bedroom detached house for sale in Well End, Friday Bridge, Cambridgeshire, PE14 0HQ, PE14 — £325,000 • 4 bed • 3 bath • 1551 ft²
3 bedroom semi-detached house for sale in Ingle Road, Elm, PE14 — £230,000 • 3 bed • 2 bath • 782 ft²
4 bedroom detached house for sale in Main Road, Friday Bridge, PE14 — £350,000 • 4 bed • 2 bath • 1798 ft²
4 bedroom detached house for sale in Main Road, Friday Bridge, PE14 — £340,000 • 4 bed • 2 bath • 1367 ft²
4 bedroom detached house for sale in Trafford Road, Wisbech, PE13 — £325,000 • 4 bed • 3 bath • 1277 ft²






















































































