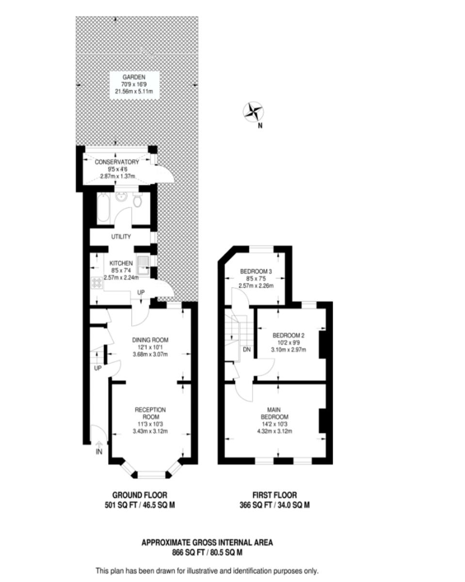
**Standout Features:**
- **Chain Free**: Quick and easy move-in potential.
- **Three Bedrooms**: Perfect for families or investors.
- **Private Enclosed Rear Garden**: Offers space for outdoor entertaining.
- **Scope to Extend**: Potential for future expansion opportunities.
- **Well-Connected**: Close to West Croydon Station and amenities.
- **Plenty of Storage**: Functional spaces throughout the property.
- **Traditional Charm**: Victorian features including bay windows.
**Concerns:**
- **Needs Renovation**: The property requires updating, particularly in the utility area and bathroom.
- **Small Plot Size**: Limited outdoor space aside from the garden.
Discover a fantastic opportunity in this charming three-bedroom mid-terrace home, perfectly positioned in a sought-after residential area with excellent access to transport links and amenities. The property features a traditional double reception room, ideal for family gatherings, and a sleek modern kitchen that flows directly into a private, enclosed garden—great for summer evenings or adding an extension to maximize space.
With an appealing Victorian façade, the home boasts original features accented by modern living needs. The sizeable bedrooms and abundant storage cater to young families or potential renters. While requiring some renovations to unlock its full potential—especially in the utility area—the property stands out for its character and location, just a short walk from West Croydon Station and various quality schools, including outstanding rated Harris Primary Academy. This is a must-view opportunity that won't last long, so see it today to envision the possibilities!
3 bedroom terraced house for sale in Sutherland Road, Croydon, CR0 — £375,000 • 3 bed • 1 bath • 816 ft²
3 bedroom end of terrace house for sale in Grafton Road, Croydon, CR0 — £425,000 • 3 bed • 1 bath • 1044 ft²
3 bedroom terraced house for sale in Mansfield Road, South Croydon, CR2 — £420,000 • 3 bed • 1 bath • 958 ft²
2 bedroom terraced house for sale in Addington Road, Croydon, CR0 — £350,000 • 2 bed • 1 bath • 680 ft²
2 bedroom terraced house for sale in Neville Road, Croydon, CR0 — £400,000 • 2 bed • 2 bath • 1124 ft²
3 bedroom end of terrace house for sale in Thornhill Road, Croydon, CR0 — £450,000 • 3 bed • 1 bath • 1041 ft²


































































