Bright renovated rooms, flexible layout and excellent school links for growing families.
Newly renovated throughout, move-in ready
Extended two-storey addition with triple-aspect dining/study
Large principal bedroom with en-suite shower room
Kitchen with integrated appliances and French doors to garden
Driveway parking for up to three cars plus single garage
Plot and rear garden are small for family expectations
Currently three double bedrooms; simple partition can restore fourth
Located in Kennet School catchment, ten-minute walk to station
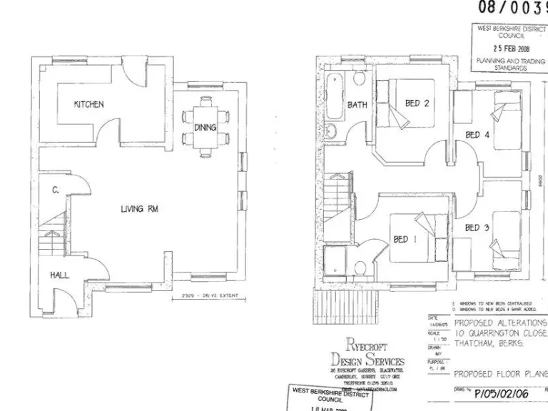
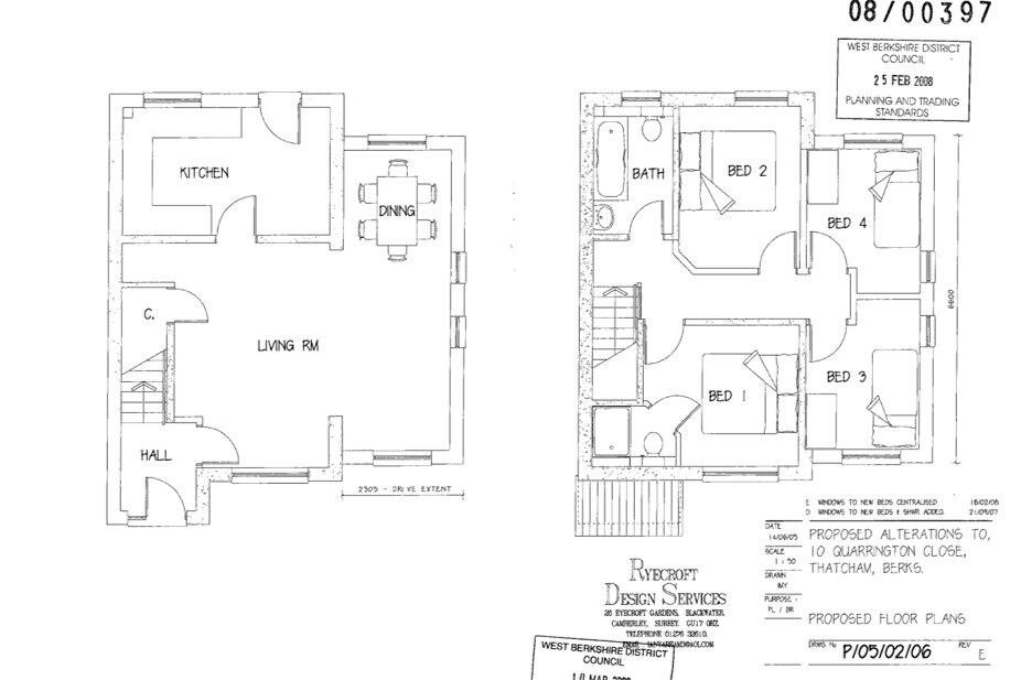
Tucked into a quiet cul-de-sac close to the mainline station, this newly renovated four-bedroom semi offers flexible family accommodation with bright living spaces and modern finishes. An extended two-storey addition creates an impressive triple-aspect dining/study area ideal for entertaining or home working, while the principal bedroom benefits from a generous size and en-suite.
The kitchen is well proportioned with integrated appliances and useful worktop space; French doors open directly to a small but private rear garden with a broad patio for outdoor dining. Practical features include double glazing, gas central heating, loft storage and internal access to the single garage, with driveway parking for multiple vehicles.
The current layout is configured as three double bedrooms but was originally intended as four; reinstating the fourth bedroom requires only a simple partition and door. The property is newly renovated throughout, saving on immediate maintenance, and sits within the Kennet School catchment with good local amenities and fast broadband — well suited to families seeking space and school access.
Buyers should note the plot is modest in size and the garage is small. Despite the house’s enlarged footprint from the 2008 extension, outdoor space and garden are compact compared with larger suburban plots.
4 bedroom detached house for sale in Grassington Place, Thatcham, RG19 — £489,950 • 4 bed • 1 bath • 1243 ft²
4 bedroom semi-detached house for sale in Rotary Way, Thatcham, Berkshire, RG19 — £442,500 • 4 bed • 2 bath • 1304 ft²
3 bedroom semi-detached house for sale in Humber Close, Thatcham, Berkshire, RG18 — £380,000 • 3 bed • 1 bath • 1048 ft²
3 bedroom semi-detached house for sale in Thatcham, Berkshire, RG18 — £335,000 • 3 bed • 2 bath • 950 ft²
4 bedroom detached house for sale in Bath Road, Thatcham, Berkshire, RG18 — £635,000 • 4 bed • 3 bath • 2006 ft²
3 bedroom semi-detached house for sale in Blyth Avenue, Thatcham, Berkshire, RG19 — £385,000 • 3 bed • 1 bath • 905 ft²






























































