**Standout Features:**
- Spacious duplex apartment with large living areas
- Two double bedrooms, each with en-suite bathrooms
- Additional versatile reception room/occasional third bedroom
- Under-floor central heating for added comfort
- Private garage and allocated parking space
- Delightful courtyard-style patio garden
- Beautifully maintained communal gardens
- Located in an exclusive development near Meads seafront
**Potential Concerns:**
- Leasehold with 110 years remaining; grounds rent is relatively high
- Council tax rated expensive
- Broadband speeds may not be optimal
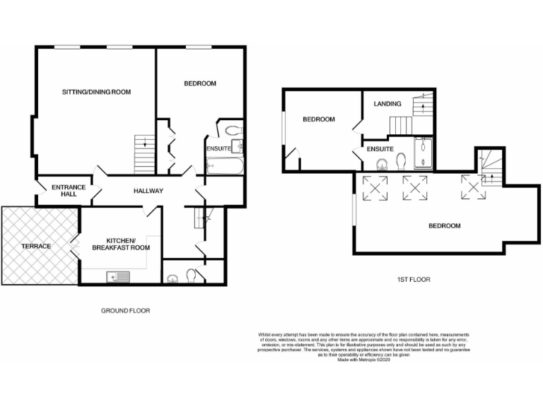
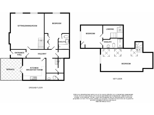
Experience luxurious living in this remarkably spacious two/three-bedroom duplex apartment at the exclusive All Saints development, enviably positioned on Meads seafront. With a generous 2119 sq. ft. of living space, this stylish apartment boasts an 18' x 16'8 sitting/dining room and a versatile 22'10 x 11'4 first-floor reception room, perfect for an occasional guest room. The superbly fitted kitchen/breakfast room opens onto a charming private courtyard-style patio, ideal for outdoor entertaining or quiet relaxation.
Both double bedrooms feature ensuite bathrooms, ensuring comfort and privacy, while under-floor heating adds an element of coziness throughout. Enjoy the luxury of a private garage and an allocated parking space, all within beautifully maintained communal park-like gardens. Perfect for families or discerning buyers looking for a tranquil lifestyle, this property offers unmatched comfort and modern amenities in an upscale setting with easy access to local shops and the seafront.
Don't miss out on the opportunity to secure this exceptional apartment—an inviting home that successfully marries historic charm with contemporary living. Act quickly, as properties in this prime location are sure to attract attention!
2 bedroom duplex for sale in All Saints, Darley Road, Eastbourne, BN20 — £450,000 • 2 bed • 2 bath • 1118 ft²
2 bedroom apartment for sale in Darley Road, Eastbourne, BN20 — £349,000 • 2 bed • 2 bath • 994 ft²
2 bedroom apartment for sale in All Saints, Darley Road, Meads, BN20 — £300,000 • 2 bed • 2 bath • 1190 ft²
2 bedroom flat for sale in Darley Road, Eastbourne, BN20 7GB, BN20 — £635,000 • 2 bed • 2 bath • 1066 ft²
2 bedroom flat for sale in Darley Road, Meads, BN20 — £495,000 • 2 bed • 2 bath • 835 ft²
3 bedroom flat for sale in Darley Road, Eastbourne, BN20 7GB, BN20 — £695,000 • 3 bed • 2 bath • 1249 ft²


























































































