**Standout Features:**
- Individual building plot with planning permission for a 3-bed detached dwelling
- En-suite facilities in all bedrooms
- Open-plan kitchen, living, and dining area
- Ground floor study/snug included
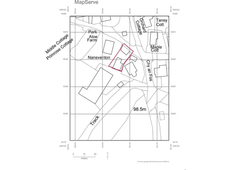
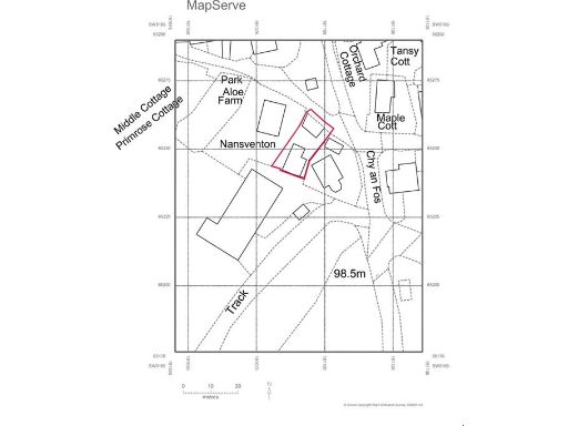
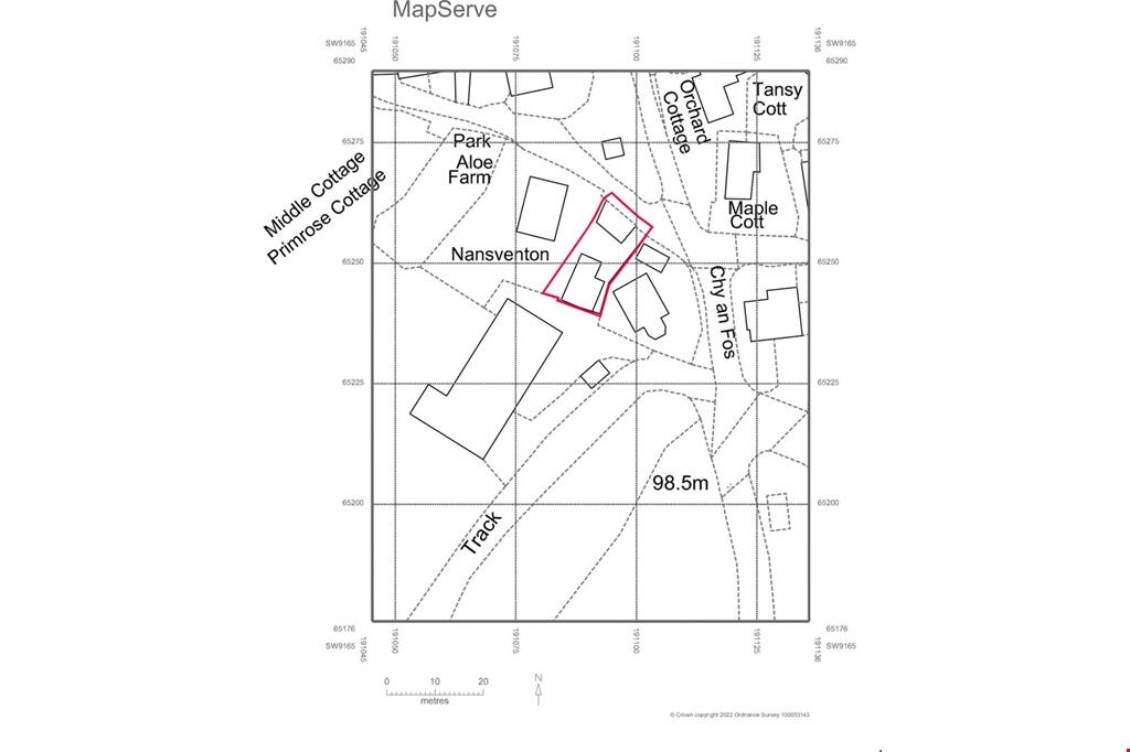
- Located in the tranquil hamlet of Talskiddy, Cornwall
- Very low crime rate and excellent mobile signal
**Concerns:**
- Broadband speeds are currently slow
- Awaiting your personal vision for development
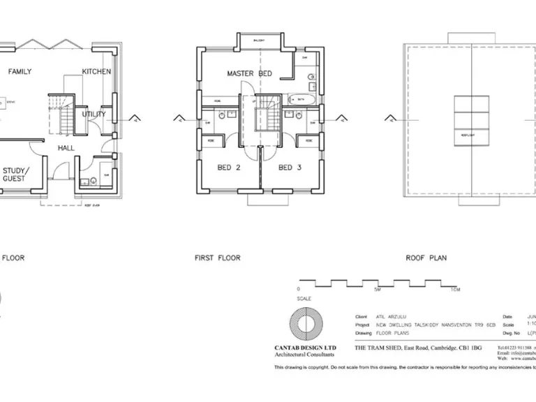
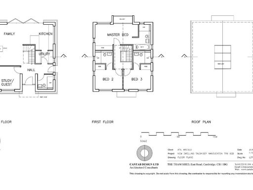
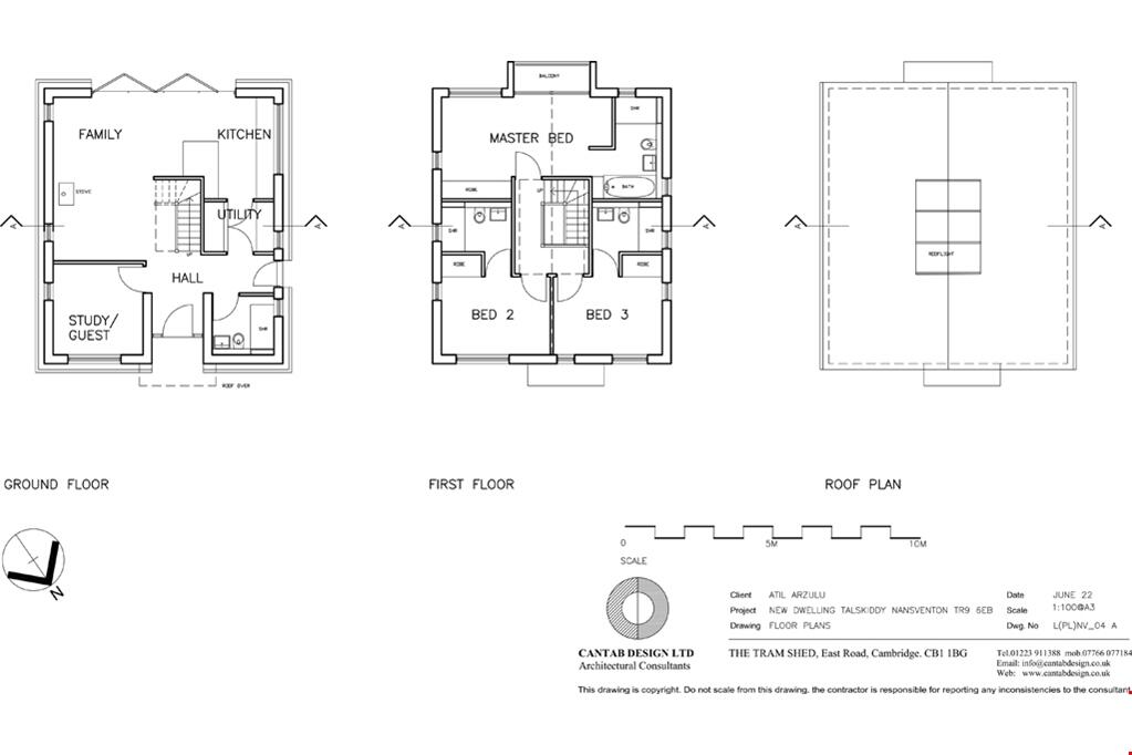
Seize the opportunity to create your dream home in the idyllic hamlet of Talskiddy, Nr. St Columb, Cornwall. With planning permission already secured (Application No: PA22/07186) for a spacious detached residence featuring three double bedrooms, each with en-suite facilities, this plot promises a blend of comfort and modern design. The functional layout includes an inviting open-plan kitchen, living, and dining area, a separate utility space, and a cozy ground floor study or snug, ideal for family gatherings or quiet retreats.
Surrounded by lush greenery and offering a tranquil setting, this property presents endless possibilities for you to craft a personalized living space—not just a house, but a home suited to your lifestyle. Enjoy the peace of country living without sacrificing essential amenities, as the area boasts well-rated schools and tranquil surroundings. However, prospective buyers should note that broadband speeds are currently slow, which may affect remote work or streaming activities.
This unique opportunity in an aging rural neighborhood won't last long—whether you are a first-time buyer or looking to invest in a promising residential project, act quickly to secure this prime building plot and bring your vision to life!
Plot for sale in Talskiddy, St. Columb, Cornwall, TR9 — £130,000 • 1 bed • 1 bath • 444 ft²
Plot for sale in Station Road, St. Columb, Cornwall, TR9 — £100,000 • 1 bed • 1 bath • 5222 ft²
Plot for sale in Higher Trezaise, Roche, Cornwall, PL26 — £125,000 • 4 bed • 2 bath
Plot for sale in Development Site, Peters Hill, High Street, nr St Austell, PL26 — £190,000 • 1 bed • 1 bath • 10600 ft²
Land for sale in Talskiddy, St. Columb, Cornwall, TR9 — £240,000 • 1 bed • 1 bath • 8712 ft²
Plot for sale in Caudledown Lane, Stenalees, St. Austell, PL26 — £85,000 • 2 bed • 1 bath • 614 ft²






























