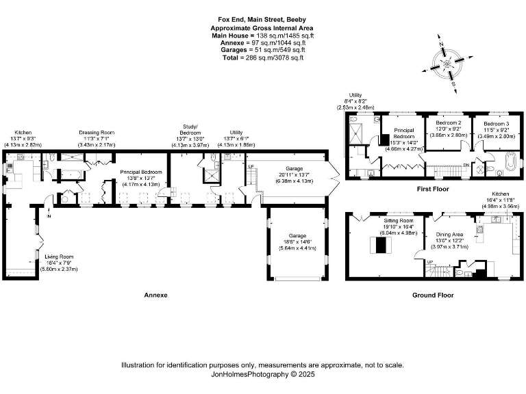
**Standout Features:**
- Five-bedroom barn conversion, formerly part of a Manor House
- Over 2,500 sq ft of living space with two separate accommodations
- Renovated in 2017, retaining charm with modern amenities
- Private courtyard garden and electric gated driveway
- Excellent countryside views and peaceful rural setting
- Above-average council tax band and local crime rate
Nestled in the tranquil village of Beeby, this exquisite five-bedroom barn conversion, originally constructed in 1827, has been lovingly renovated to provide both charm and modern comforts. Spanning over 2,500 sq ft, the property boasts a stunning main barn with three spacious double bedrooms and a superb stable conversion featuring a versatile two-bedroom, two-bathroom layout that can easily serve as guest accommodation or a rental opportunity.
Upon entering, enjoy the elegance of cobbled driveways and a serene courtyard garden—perfect for relaxing. The main living spaces feature stylish kitchens with granite worktops, open-plan designs, and cozy woodburners. Each of the beautifully appointed bedrooms benefits from an abundance of natural light, with additional features like fitted wardrobes and luxurious en-suite bathrooms. While the property offers ample parking, a two-storey garage provides further convenience.
Set in an affluent, agricultural community, this home presents a unique opportunity for families seeking comfort, privacy, and breathtaking views. While the area has a higher crime rate, the charm and exclusivity of this period property make it a rare find. Don’t miss your chance to own a piece of countryside tranquility—schedule your private viewing today!
5 bedroom barn conversion for sale in Bosworth Road, Congerstone, CV13 — £1,200,000 • 5 bed • 3 bath • 4027 ft²
8 bedroom barn conversion for sale in Bosworth Road, Congerstone, CV13 — £1,750,000 • 8 bed • 4 bath • 5600 ft²
6 bedroom country house for sale in Ashby Lane, Willoughby Waterleys, LE8 — £1,595,000 • 6 bed • 3 bath • 5874 ft²
4 bedroom country house for sale in Stud Farm, Cross Street, Breedon-on-the-Hill, Derby, DE73 8AX, DE73 — £600,000 • 4 bed • 2 bath • 2909 ft²
5 bedroom detached house for sale in The Brockey Farmhouse, Kirkby Road, Barwell LE9 8FT, LE9 — £750,000 • 5 bed • 3 bath • 3444 ft²
5 bedroom country house for sale in Sutton Lane, Cadeby, CV13 — £1,300,000 • 5 bed • 5 bath • 2691 ft²


































































































































































































































