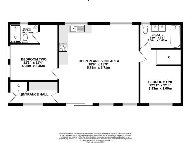
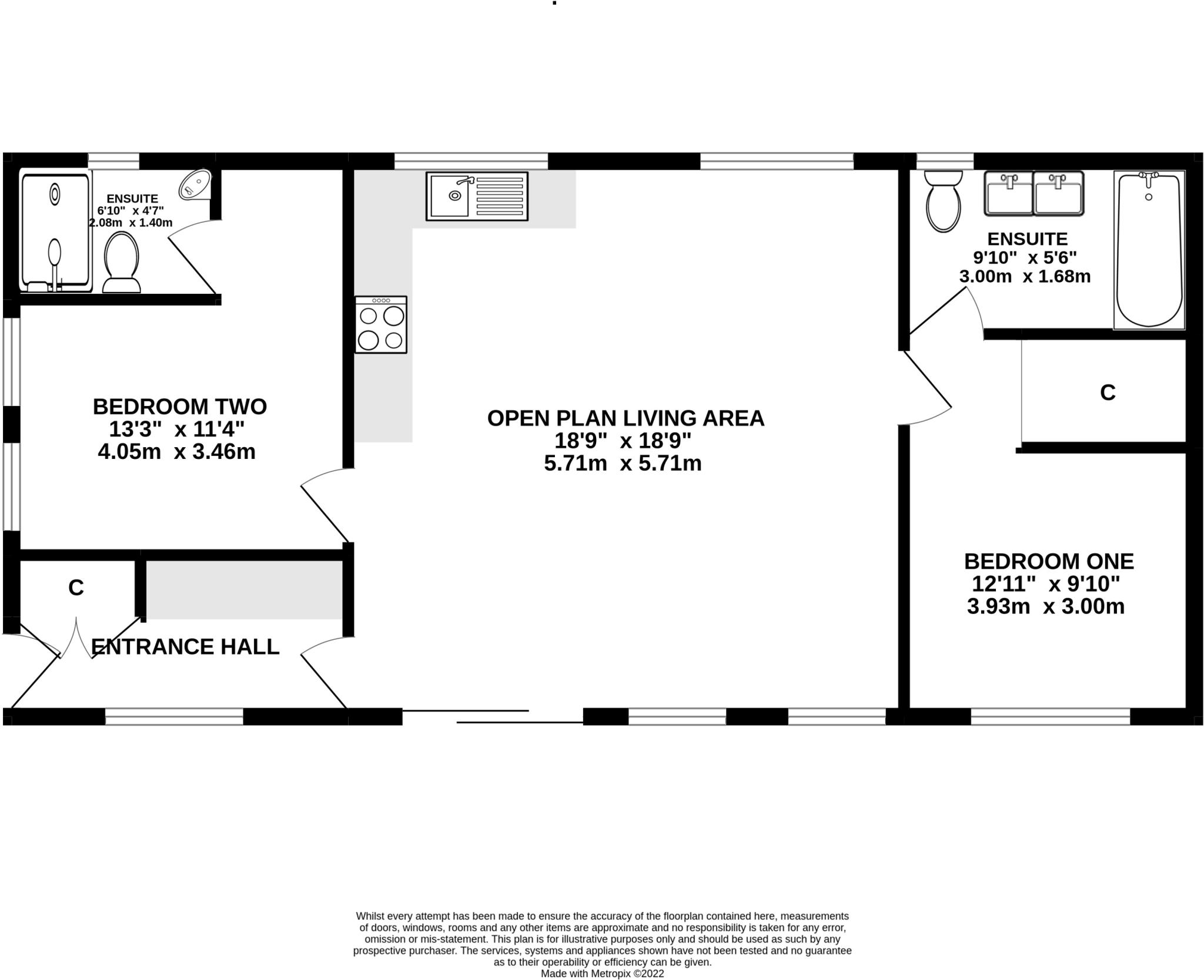
**Standout Features:**
- Nearly new, detached lodge home with high-end finishes.
- Two spacious double bedrooms with ensuite bathrooms and walk-in wardrobes.
- Open plan living area with vaulted ceiling and large glass feature wall.
- Allocated parking for two vehicles.
- Private outdoor terrace with hot tub, backing onto tranquil fields.
- Fully furnished and equipped with integrated white goods and soft furnishings.
- Located in a serene village near nature trails and recreational facilities.
**Concerns:**
- Leasehold status with only 47 years remaining, which may affect mortgage lending.
- Above-average annual service charge of £5,500.
- Presently low broadband speeds.
**Summary Description:**
Discover an exquisite nearly new lodge home, nestled in a quiet village location. This modern retreat offers two luxurious double bedrooms, each with impressive ensuites and walk-in wardrobes, perfect for small families or a holiday escape. The open-plan living space is flooded with natural light and features a stunning vaulted ceiling, seamlessly connecting to a private terrace with a soothing hot tub, ideal for unwinding in tranquility while enjoying picturesque field views.
While the lodge is a turnkey solution with high-quality finishes, be mindful of the 47-year leasehold, which may limit future financing options. With a desirable rural setting and low crime rates, this property represents an opportunity for those seeking comfort and exclusivity in a serene environment. Don’t miss out on this unique lifestyle investment!
2 bedroom bungalow for sale in St. Mabyn, Bodmin, Cornwall, PL30 — £45,000 • 2 bed • 1 bath • 469 ft²
2 bedroom bungalow for sale in Hoburne Holiday Park, St. Mabyn, Bodmin, Cornwall, PL30 — £50,000 • 2 bed • 2 bath • 535 ft²
3 bedroom bungalow for sale in St. Minver, Wadebridge, Cornwall, PL27 — £95,000 • 3 bed • 2 bath
2 bedroom bungalow for sale in Hoburne Holiday St. Mabyn, Bodmin, Cornwall, PL30 — £94,950 • 2 bed • 2 bath • 782 ft²
2 bedroom detached house for sale in St. Mabyn, Bodmin, Cornwall, PL30 — £50,000 • 2 bed • 2 bath • 508 ft²
2 bedroom bungalow for sale in Trehawks, St. Minver Holiday Park, Wadebridge, Cornwall, PL27 — £60,000 • 2 bed • 2 bath • 525 ft²






































