Chain-free, deceptively spacious family property with garden and nearby garage.
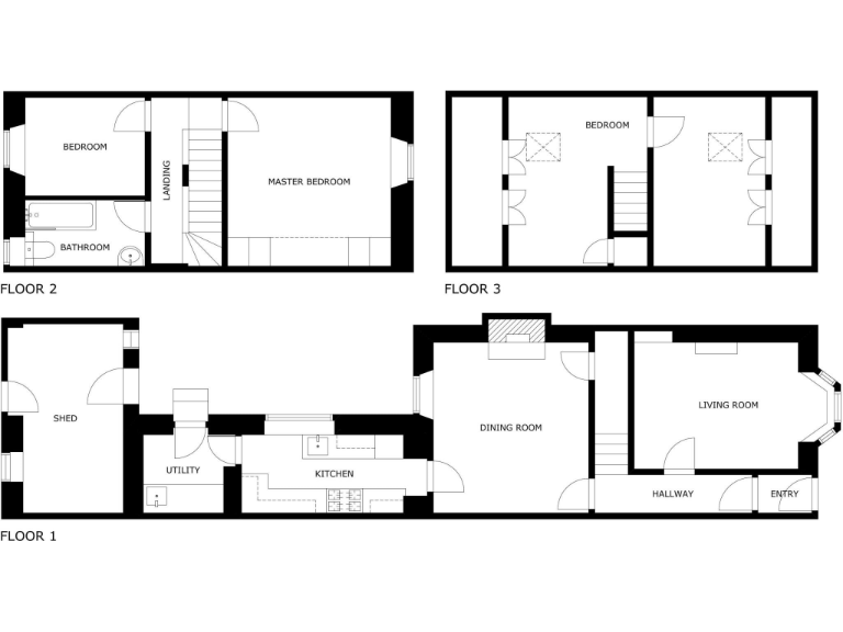
Victorian mid-terrace townhouse over three floors
Chain free — available with no ongoing chain
Three bedrooms plus attic room/study (flexible space)
Solar panels fitted to the front elevation
Detached garage located about 50 metres away
Heating by electric room heaters — no tested central heating
Small enclosed rear yard; on-street parking only
Local occupancy restriction requires three years Cumbria residency
Set on the fringe of Kirkby Stephen, this well-presented mid-terrace Victorian townhouse offers flexible family living over three floors. The ground floor features a bay-fronted living room, rear sitting/dining room, modern kitchen and utility; upstairs are two bedrooms and a family bathroom, with a third bedroom and attic study on the top floor. Solar panels are fitted to the front elevation, and the property is offered chain free.
Externally there is a small enclosed rear yard, an outside store and a detached garage approximately 50 metres to the south. On-street parking is available and there is an additional space in front of the garage. The stone-built walls have internal insulation and the house sits in a low-crime, village setting with good mobile signal and local schools within walking distance.
Important practical points: heating is by electric room heaters (no tested central heating), broadband speeds are likely slow, and the plot is small. The sale is subject to a local occupancy restriction — buyers must evidence living or working in Cumbria for three years, or apply for discretionary consent from the council. Prospective purchasers should instruct their solicitor to request formal consent as part of the purchase process.
This is a deceptively spacious period home with original features and built-in storage, suited to buyers seeking a characterful village property with low flood risk and solar PV benefits. It will particularly suit families or buyers able to meet the occupancy requirement or willing to apply for consent.
3 bedroom terraced house for sale in 13 Park Terrace, Kirkby Stephen CA17 4SX, CA17 — £175,000 • 3 bed • 1 bath • 1194 ft²
2 bedroom end of terrace house for sale in South Road, Kirkby Stephen, CA17 — £205,000 • 2 bed • 1 bath • 1011 ft²
3 bedroom house for sale in North Road, Kirkby Stephen, CA17 — £170,000 • 3 bed • 1 bath • 1023 ft²
3 bedroom terraced house for sale in WestGarth, Kirkby Stephen, CA17 — £159,950 • 3 bed • 1 bath • 1550 ft²
3 bedroom end of terrace house for sale in Westgarth Road, Kirkby Stephen, CA17 4, CA17 — £170,000 • 3 bed • 1 bath • 1161 ft²
2 bedroom end of terrace house for sale in High Street, Kirkby Stephen, CA17 4, CA17 — £155,000 • 2 bed • 1 bath • 654 ft²


































































































