Low-maintenance first home near station, schools and A12 links.
25% shared ownership available; 100% purchasable at £325,000
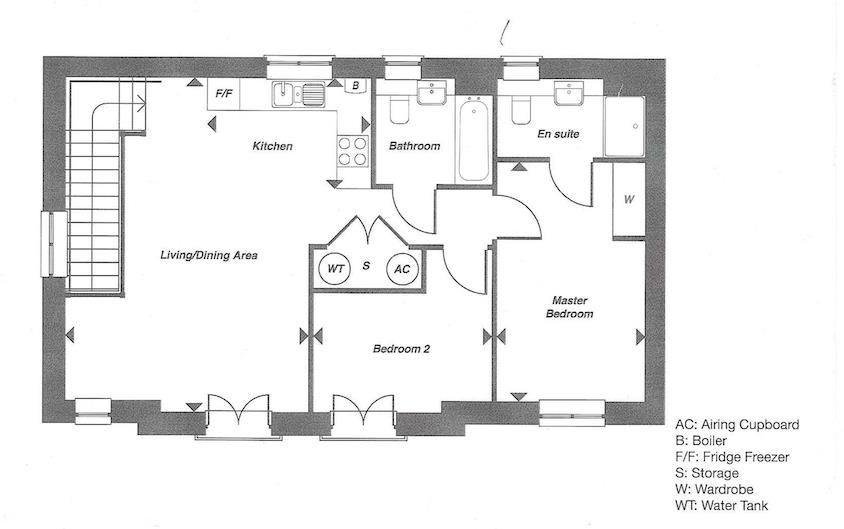
20' open-plan living/dining/kitchen with Juliette balcony and triple-aspect windows
Master bedroom with built-in wardrobes and en-suite shower room
Two allocated parking spaces under the building plus visitor bays
Large loft space provides additional storage potential
No private garden; accommodation compact to average in size
Leasehold with 125 years remaining; total monthly charges ≈ £641.86
Ground rent £100 pa; service charge and rent included in monthly figure
A bright, modern two-bedroom coach house offered as a 25% shared ownership, ideal for a first-time buyer stepping onto the property ladder. The principal room is an impressive 20' open-plan living, dining and kitchen area with a Juliette balcony and triple-aspect windows, creating an airy, sociable space. The master bedroom includes built-in wardrobes and an en-suite shower. A second double bedroom and main bathroom complete the accommodation, with a large loft providing valuable storage.
Practical running costs and ownership terms are clear: 125 years remain on the lease, with a combined monthly charge (rent and service elements) of approximately £641.86, plus a small ground rent of £100 per year. A 100% purchase is available at £325,000 if you want to stair-step to full ownership. Two allocated parking spaces under the building and visitor bays add everyday convenience.
Set on the Beaulieu development, the home sits within walking distance of local shops, schools (including highly rated options nearby) and Beaulieu station with direct access to the A12 — a helpful commute link. There is no private garden, and the layout is compact-average in size, so this property suits buyers prioritising low-maintenance living, good transport links and future ownership flexibility.
2 bedroom coach house for sale in Pearson Grove, Chelmsford, CM1 — £186,000 • 2 bed • 1 bath • 860 ft²
2 bedroom apartment for sale in Wharf Road, Chelmsford, CM2 — £122,500 • 2 bed • 1 bath • 907 ft²
2 bedroom flat for sale in Henry Shuttlewood Drive, Chelmsford, CM1 6EQ, CM1 — £285,000 • 2 bed • 1 bath • 674 ft²
1 bedroom flat for sale in 34 Harris Crescent, Chelmsford, CM1 — £61,250 • 1 bed • 1 bath • 537 ft²
1 bedroom flat for sale in 30 Harris Crescent, Chelmsford, CM1 — £61,250 • 1 bed • 1 bath • 537 ft²
1 bedroom flat for sale in 38 Harris Crescent, Chelmsford, CM1 — £61,250 • 1 bed • 1 bath • 537 ft²






















































