PL30 5NN - Plot for sale in Pooleys Hill, Withielgoose, nr Bodmin, PL30

View on Property Piper

Plot for sale in Pooleys Hill, Withielgoose, nr Bodmin, PL30

Summary - TREBOIS WITHIELGOOSE MILLS BODMIN PL30 5NN

1 bed 1 bath Plot

### Standout Features:
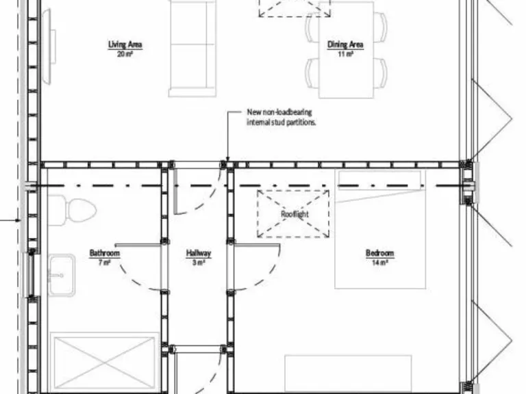
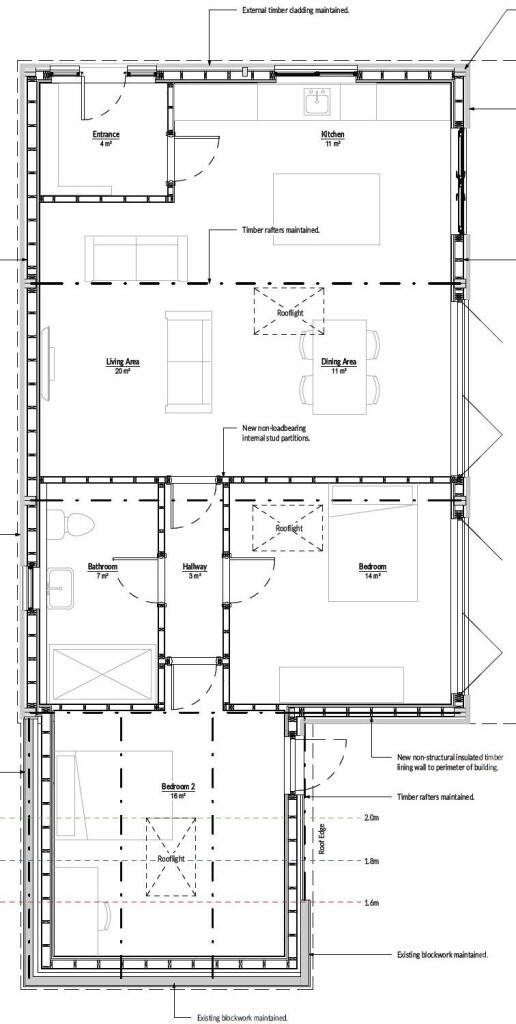
- **Planning Approval**: Class Q approval for conversion to a 2-bedroom bungalow.
- **Spacious Land**: Encompasses approximately 1.8 acres with additional paddock space.
- **Rural Location**: Peaceful setting in the Tremore Valley, yet close to Bodmin and amenities.
- **Utilities**: Mains electric and water on-site; private drainage needs installation.
- **Potential for Customization**: Approved layouts can be modified to suit personal preferences.

### Summary:
Nestled within the tranquil Tremore Valley, this expansive 1.8-acre barn conversion presents a promising opportunity for both investors and families looking to create their dream home. Cornwall Council has granted planning permission to transform the modern timber barn into a charming two-bedroom bungalow, designed to maximize space and natural light with an open-plan kitchen and living area.

While the barn's current condition requires renovation, it offers a clean slate for creative potential that is rarely available in such an idyllic rural setting. Surrounded by lush countryside yet conveniently located just 7 miles from Bodmin and 3 miles from local amenities, it's the ideal escape for those longing for peace without complete isolation. The property is chain-free and ready for immediate engagement—don’t miss your chance to own a slice of countryside tranquility with ample room for personalization!

Property Details

Brochure Descriptions

Image Descriptions

Floorplan Description

Textual Property Features

Detected Visual Features

Nearby Schools

Nearest Bars And Restaurants

,,,,}

Nearest General Shops

,,}

Nearest Grocery shops

,,}

Nearest Supermarkets

,,}

Nearest Religious buildings

,,}

Nearest Medical buildings

,,,}

Nearest Leisure Facilities

,,,,}

Nearest Tourist attractions

,,}

Nearest Train stations

,,,,}

Nearest Bus stations and stops

,,,,}

Nearest Hotels

,,}

Tags

Local Market Stats

AirBnB Data

Similar Properties

Meta

High Res Images

Compatible Images

Low res Images

Thumbnails

Raw Images

High Res Floorplan Images

Compatible Floorplan Images

Low res Floorplan Images

FloorplanImages Thumbnail

Raw Floorplan Images