Chain-free, single-level living with garden room and off-street parking.
Detached two-bedroom bungalow, newly renovated throughout
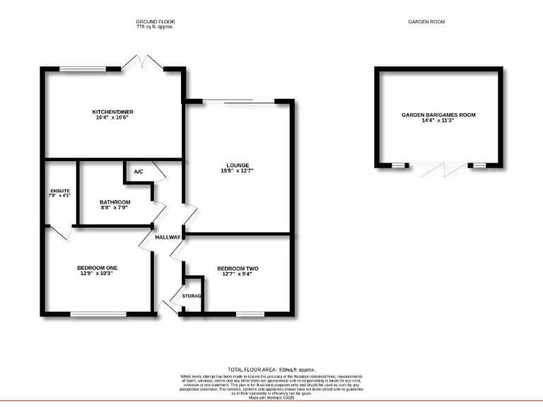
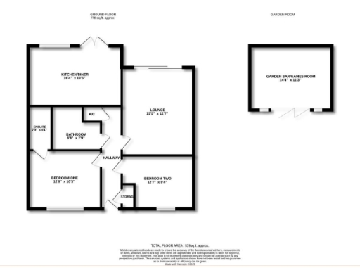
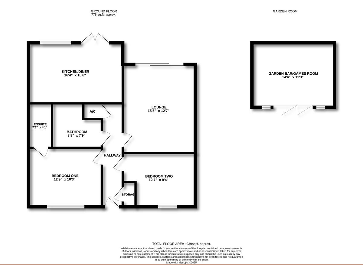
This modern detached bungalow in High Beeches is a neatly presented, chain-free home ideal for downsizers or professionals seeking single-level living. Newly renovated throughout, the property offers two double bedrooms, an en-suite to the principal bedroom and a contemporary family bathroom. The open-plan kitchen/dining area and bright lounge create a comfortable, low-maintenance living space.
Externally the plot works well: a block-paved driveway for two vehicles, a west-facing rear garden and a substantial detached garden room currently fitted out as a bar — useful as a home office, hobby room or entertaining space. At around 778 sq ft the bungalow is a practical size with decent garden space and easy access to Benfleet High Road for shops and transport links.
Practical points to note: broadband speeds in the area are reported as slow, which could affect home working without an alternative solution. Local schooling is a mix — most nearby schools are rated Good by Ofsted, though one nearby primary is rated Requires Improvement. Council Tax sits at a moderate Band D level. Overall this freehold property presents a low-maintenance, ready-to-move-into option with adaptable external space and no onward chain.
2 bedroom semi-detached bungalow for sale in Wincoat Drive, Benfleet, SS7 — £425,000 • 2 bed • 1 bath • 743 ft²
2 bedroom detached bungalow for sale in Queens Road, Benfleet, SS7 — £625,000 • 2 bed • 3 bath • 1225 ft²
2 bedroom detached bungalow for sale in Croft Close, Benfleet, SS7 — £450,000 • 2 bed • 2 bath • 912 ft²
3 bedroom detached bungalow for sale in Lynton Road, Essex, SS7 — £500,000 • 3 bed • 2 bath • 1045 ft²
2 bedroom bungalow for sale in Dovercliff Road, Canvey Island, SS8 — £290,000 • 2 bed • 1 bath
2 bedroom semi-detached bungalow for sale in Southfield Drive, Benfleet, SS7 — £375,000 • 2 bed • 1 bath • 576 ft²


















































































