**Standout Features:**
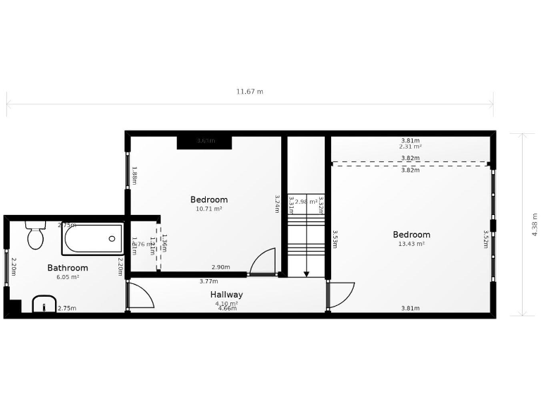
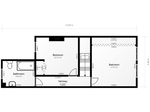
- Newly renovated two-bedroom, two-bathroom Victorian terraced house
- Modern kitchen with integrated appliances and utility room
- Private landscaped rear garden with lockable access
- Bright living spaces with contemporary decor and built-in shelving
- Affordable council tax and excellent mobile/broadband connectivity
- Close proximity to well-rated local schools
**Concise Summary:**
Discover contemporary comfort blended with Victorian charm in this beautifully renovated two-bedroom, two-bathroom terraced house located in a lively urban area. Priced at an attractive £220,000, this property features an inviting front garden and a striking interior with a modern staircase, spacious reception rooms, and a superb kitchen equipped with integrated appliances and a utility room for added convenience. The two light-filled bedrooms offer built-in wardrobes and cozy carpeting, while the luxurious bathrooms provide spa-like retreats. Enjoy the tranquility of your private rear garden, perfect for outdoor gatherings or peaceful relaxation.
This home is ideal for families and first-time buyers, with a host of nearby amenities including schools, shops, and recreational facilities. While the area experiences above-average crime rates and the property is on a smaller plot with limited insulation, its modern renovations and prime location offer significant potential for comfortable living. Envision yourself making this delightful house your home—opportunities like this don't last long!
2 bedroom terraced house for sale in Knighton Fields Road East, Leicester, LE2 — £215,000 • 2 bed • 1 bath • 872 ft²
2 bedroom end of terrace house for sale in Ripon Street, Off London Road, Leicester, LE2 — £220,000 • 2 bed • 1 bath • 786 ft²
2 bedroom terraced house for sale in Barclay Street, Leicester, LE3 — £195,000 • 2 bed • 1 bath • 1152 ft²
3 bedroom end of terrace house for sale in Scott Street, Leicester, LE2 — £240,000 • 3 bed • 1 bath • 1059 ft²
2 bedroom terraced house for sale in Tyrrell Street, Leicester, LE3 — £190,000 • 2 bed • 1 bath
2 bedroom terraced house for sale in Pool Road, Leicester, Leicestershire, LE3 — £190,000 • 2 bed • 1 bath • 753 ft²


















































































