Character-filled three-bed close to city centre, ready to move into.
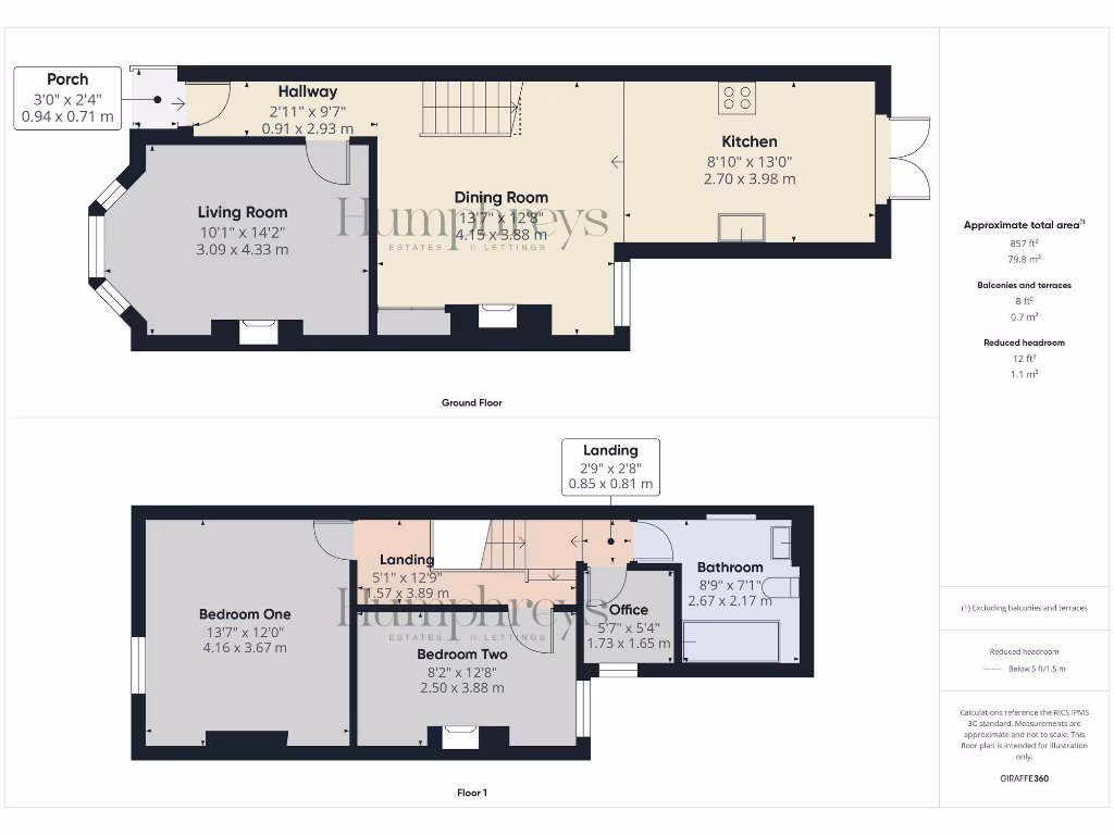
- Bay-fronted Victorian mid-terrace with original Minton tiled entrance
- Open-plan dining room into modern kitchen with French doors
- Two good doubles plus small third bedroom/home office
- Spacious three-piece bathroom with skylight; single bathroom only
- Private rear garden with pond; requires seasonal maintenance
- Solid brick walls; no confirmed wall insulation, EPC D
- Freehold and offered with no onward chain
- Fast broadband, excellent mobile signal; mains gas central heating
Set a short walk from Chester city centre, this bay-fronted Victorian mid-terrace blends period character with useful modern upgrades. The front reception benefits from a large bay window and fireplace, while an open-plan dining room flows into a fitted kitchen with French doors to the private rear garden. Original features such as Minton tiled entrance flooring and exposed floorboards add charm alongside neutral, well-kept décor.
Accommodation is practical: two good double bedrooms, a small single ideal for a home office, and a spacious three-piece bathroom with shower-over-bath and skylight. Gas central heating, double glazing and mains services are all in place; broadband and mobile signal are strong. The property is offered freehold and chain free, making it straightforward for a quick move or purchase.
Outside, the small but well-established rear garden includes mature planting and a central pond that provides a private, low-maintenance outdoor space but will require seasonal upkeep. Note the house is a solid-brick Victorian build with no assumed wall insulation and carries an EPC rating of D. The single bathroom and modest plot size may limit suitability for larger families or buyers wanting more outdoor space.
This home suits first-time buyers or professionals seeking a characterful, city-edge property with good transport links and local amenities nearby. Its combination of period detail, practical layout and chain-free status presents clear potential for cosmetic improvement and modest investment to enhance energy efficiency.
3 bedroom terraced house for sale in Whipcord Lane, Chester, CH1 — £275,000 • 3 bed • 1 bath • 933 ft²
2 bedroom terraced house for sale in Granville Road, Chester, CH1 — £270,000 • 2 bed • 1 bath • 433 ft²
3 bedroom terraced house for sale in Catherine Street, Chester, CH1 — £250,000 • 3 bed • 1 bath • 871 ft²
3 bedroom end of terrace house for sale in Tower Road, Chester, Cheshire, CH1 — £250,000 • 3 bed • 1 bath • 721 ft²
2 bedroom terraced house for sale in Catherine Street, Chester, Chester, CH1 — £189,995 • 2 bed • 1 bath
3 bedroom end of terrace house for sale in Moss Bank, Chester, CH1 — £285,000 • 3 bed • 1 bath • 1603 ft²


















































































