**Standout Features:**
- Spacious two-bedroom, two-bathroom apartment
- Stylish en suite in the main bedroom
- Open-plan kitchen and reception
- Bright winter garden for additional living space
- Access to resident's gym and concierge services
- Secure underground parking with EV charging
- Excellent transport links to central London
**Potential Concerns:**
- Above average crime rate in the area
- Leasehold tenure with associated obligations
**Summary:**
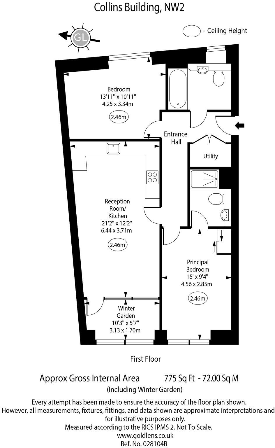
Discover this modern first-floor apartment in NW2, perfect for young families or commuters seeking comfort and convenience. With its thoughtful design, the property boasts two ample bedrooms—featuring a fitted wardrobe and a stylish en suite shower in the master—as well as an inviting open-plan kitchen and bright reception area, bathed in natural light. The winter garden adds a unique touch of outdoor living within your home.
Enjoy excellent on-site amenities, including a resident’s gym, secure underground parking with electric vehicle charging, and concierge services. Located just moments from Cricklewood Station, commuting to central London takes a mere 12 minutes, while nearby Brent Cross Shopping Centre provides ample retail options. Though the area has an above-average crime rate, the vibrant urban cultural mix and access to well-rated schools like Our Lady of Grace RC and Claremont Primary make it an appealing choice. Don’t miss the opportunity to make this stylish apartment your new home—schedule a viewing today!
2 bedroom flat for sale in Wilkinson Close, London, NW2 — £425,000 • 2 bed • 2 bath • 661 ft²
2 bedroom flat for sale in Dover Close, London, NW2 — £399,950 • 2 bed • 1 bath • 711 ft²
2 bedroom apartment for sale in Claremont Road, London, NW2 — £534,995 • 2 bed • 2 bath • 662 ft²
1 bedroom flat for sale in Draycott Close, Cricklewood, NW2 — £315,000 • 1 bed • 1 bath • 570 ft²
1 bedroom apartment for sale in Claremont Road, London, NW2 — £458,630 • 1 bed • 1 bath
3 bedroom flat for sale in Wilkinson Close, Cricklewood, NW2 — £600,000 • 3 bed • 2 bath • 1000 ft²






























































