Extended four-bedroom home near station and local amenities.
Freehold Victorian terrace with high ceilings and original features
A period terrace with high ceilings and original decorative features, this extended four-bedroom house offers practical family living close to local shops and Levenshulme/Stockport Road transport links. The house benefits from double glazing, gas central heating and strong digital connectivity, making it comfortable and well-connected from day one.
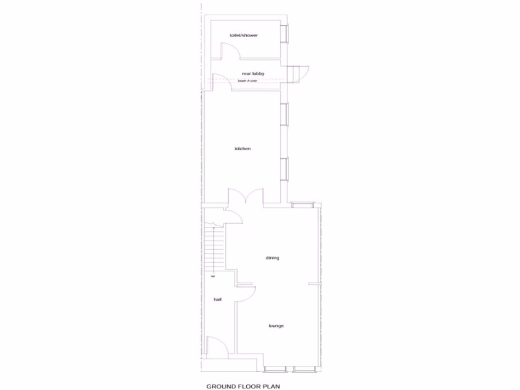
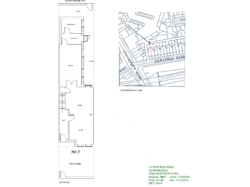
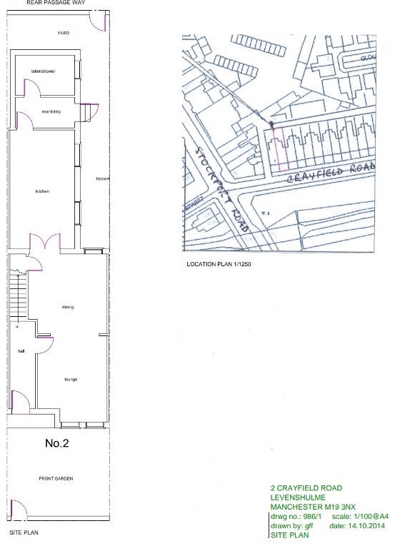
Internally there is a large double reception, a substantial fitted kitchen/diner plus utility room and a useful basement for storage. Two bathrooms and four bedrooms suit a growing family; many rooms retain character such as cornicing, bay window and panelled doors.
Buyers should note the property’s recorded overall size is small (approx. 385 sq ft total), so room layouts may feel compact despite the high ceilings and extended plan. The surrounding area is classed as very deprived and characterised by young Pakistani communities; that context supports nearby amenities, diverse shops and good local schools but may affect perceptions of resale for some buyers.
This is a freehold house with no reported flood risk and very low local crime. It suits a family seeking period character, strong transport links and immediate habitability, while buyers wanting larger square footage or a quieter affluence may prefer to compare other options.
3 bedroom house for sale in Garfield Avenue, Levenshulme, Manchester, M19 — £290,000 • 3 bed • 1 bath • 832 ft²
3 bedroom terraced house for sale in Cromwell Grove, Levenshulme, M19 — £315,000 • 3 bed • 1 bath • 1799 ft²
4 bedroom terraced house for sale in Henderson Street, Levenshulme, M19 — £380,000 • 4 bed • 2 bath • 1491 ft²
2 bedroom terraced house for sale in Griffin Grove, Levenshulme, Greater Manchester, M19 — £250,000 • 2 bed • 1 bath • 813 ft²
3 bedroom terraced house for sale in Dunstable Street, Manchester, M19 — £220,000 • 3 bed • 1 bath • 1066 ft²
4 bedroom semi-detached house for sale in Osborne Road, Manchester, Greater Manchester, M19 — £425,000 • 4 bed • 1 bath • 1794 ft²


















































































