Renovated family house with private garden and garage in peaceful coastal village.
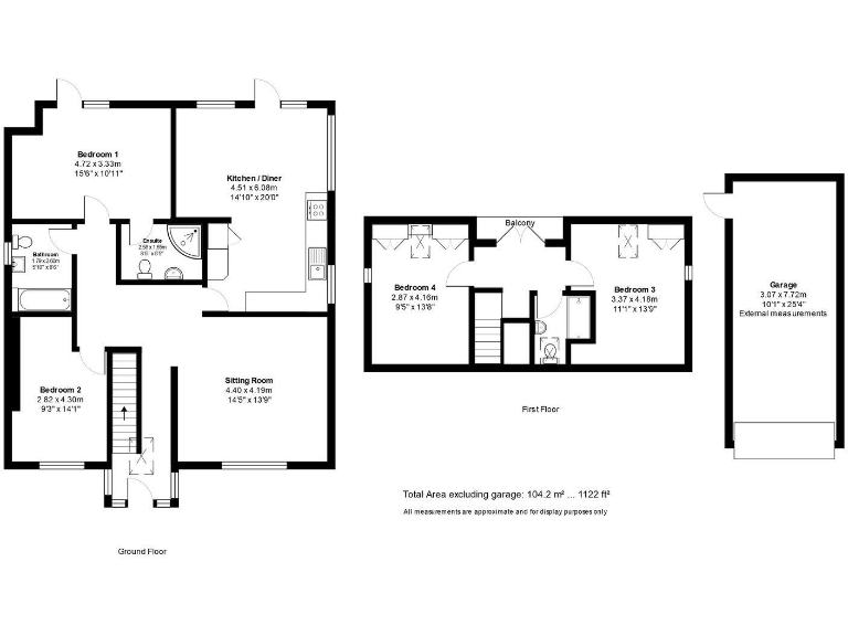
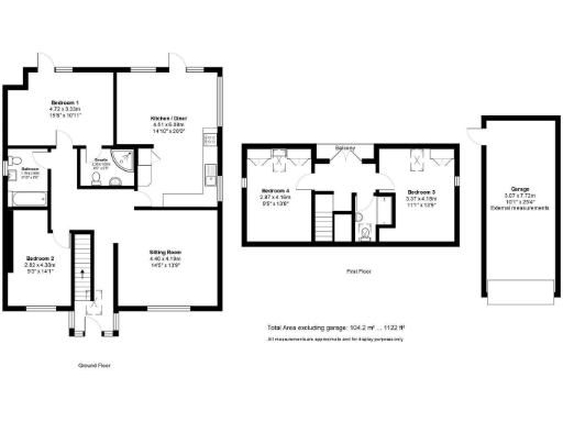
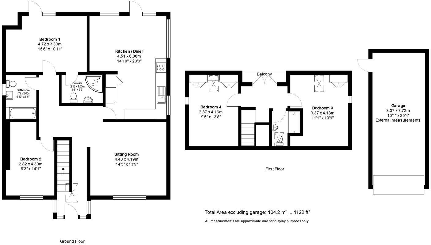
Four double bedrooms and three bathrooms, including ground-floor en suite
Set in the coastal village of Trelights, this newly renovated four-bedroom detached house offers comfortable family living across two floors. At about 1,122 sq ft the layout is compact but well considered, with a recently fitted kitchen, spacious sitting room and a private, south-facing glazed balcony that brings extra light and outdoor living space.
Practical features include two parking spaces, a detached garage housing an oil-fired boiler (installed ~3 years ago with the remainder of its guarantee) and a pressurised hot water cylinder. The ground floor delivers two double bedrooms—one en suite—and a family bathroom; the first floor adds two further double aspect bedrooms with built-in wardrobes and a shower room.
Outside is a secure, gated rear garden enclosed by a six-foot fence and maintained as lawn, plus a low-maintenance stone exterior and quiet street setting. There is no flood risk and local crime levels are very low, making this a peaceful village home for families seeking easy-to-manage outdoor space.
Important practical notes: the property uses an oil boiler and has no mobile signal on site. Broadband is average. The overall floor area is modest, so buyers needing larger rooms or extensive internal space should view with the size in mind. Local schooling options include nearby primary and secondary schools, some rated Good and one with a less favourable Ofsted outcome.
4 bedroom detached house for sale in Donovan Way, Bodmin, PL31 — £475,000 • 4 bed • 3 bath • 1930 ft²
4 bedroom detached bungalow for sale in Port Isaac, PL29 — £750,000 • 4 bed • 3 bath • 1449 ft²
4 bedroom detached house for sale in Tredrizzick, Nr Rock, PL27 — £625,000 • 4 bed • 2 bath • 1292 ft²
3 bedroom detached bungalow for sale in Trelights, Port Isaac, PL29 — £425,000 • 3 bed • 1 bath
4 bedroom bungalow for sale in Brentons Park, Trelights, Port Isaac, PL29 — £750,000 • 4 bed • 3 bath • 2570 ft²
4 bedroom detached house for sale in Shackleton Drive, Newquay, TR7 — £450,000 • 4 bed • 2 bath • 1142 ft²


































































































