**Standout Features:**
- Prime elevated location with panoramic views of the estuary and sea
- Planning permission for a luxurious five-bedroom, four-bathroom residence
- Includes proposed features such as a gym, large balcony, double garage, and off-road parking
- Close proximity to the North Devon coastline and local amenities
- Chain free with freehold tenure
- Very low crime rate in a serene community
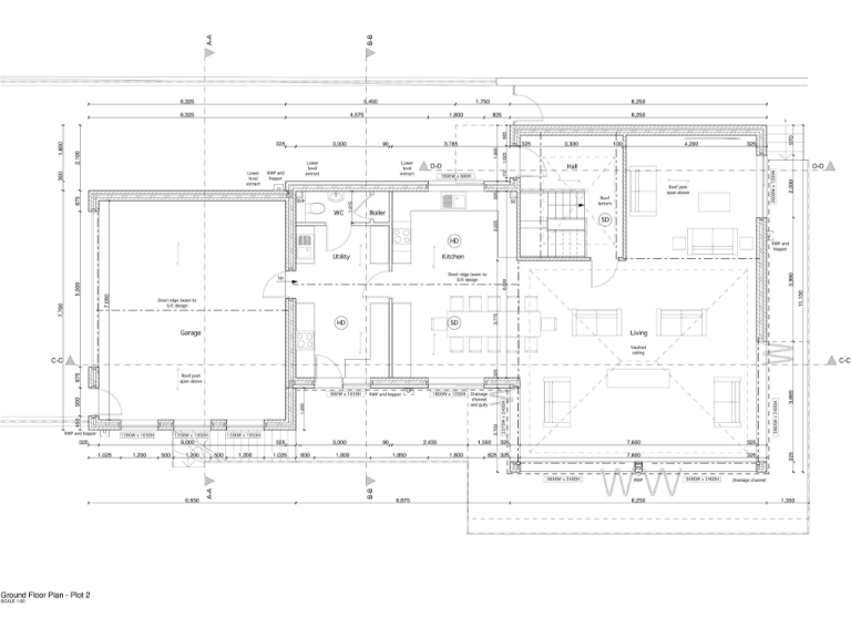
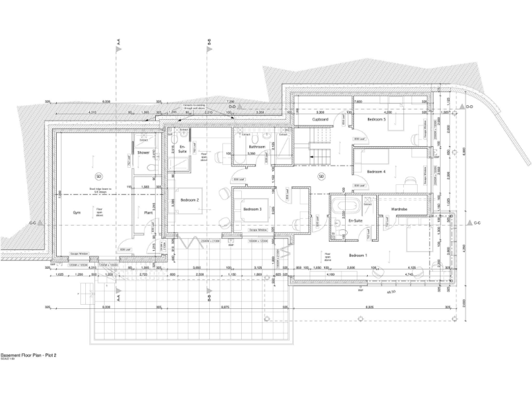
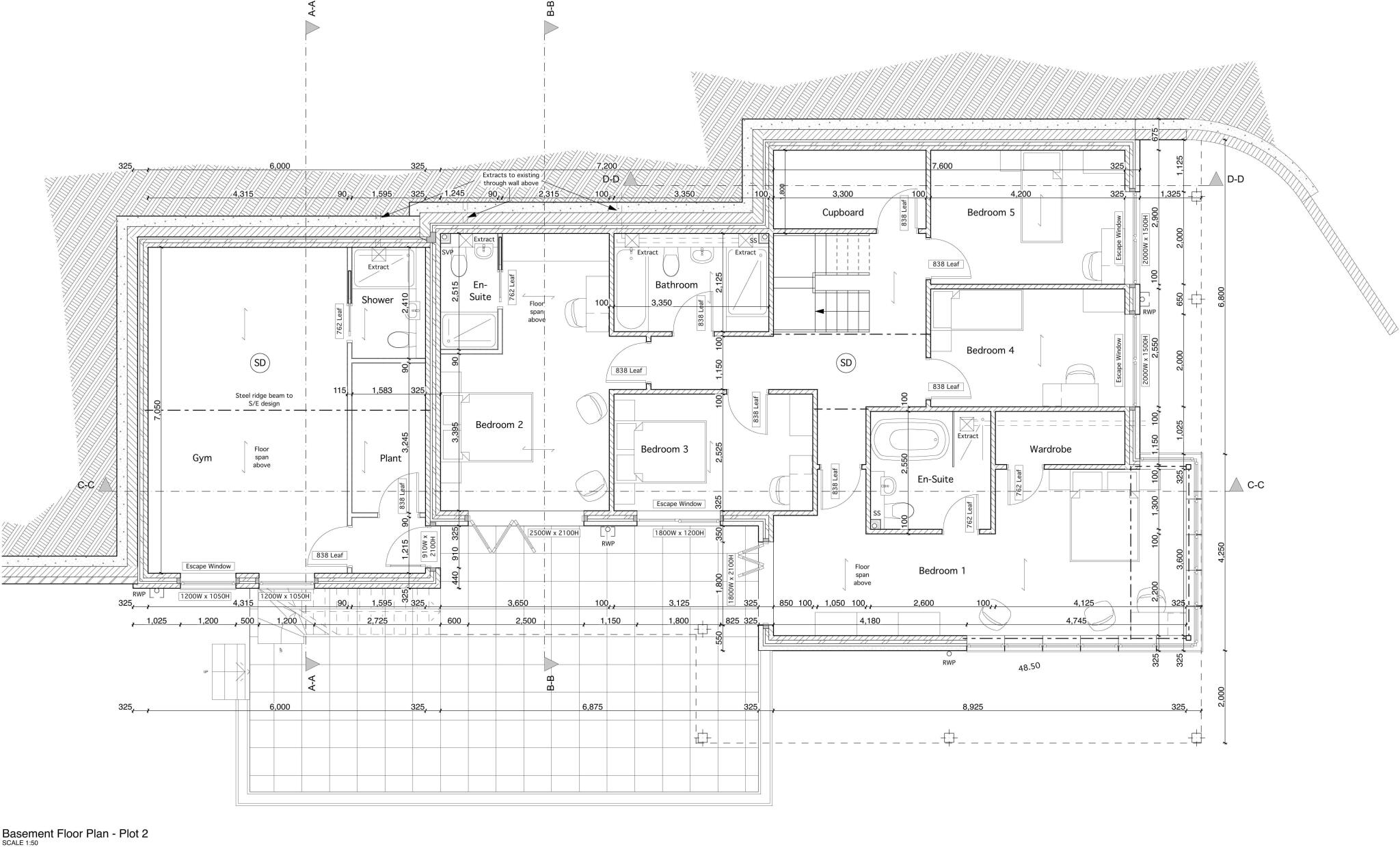
This exceptional building plot presents a rare opportunity to design and construct your dream home in the picturesque village of Braunton. Situated in a highly desirable elevated position, the plot offers sweeping views across Braunton Burrows, the estuary, and beyond to Hartland Point, promising you a tranquil, ever-changing panorama from your future home.
With planning permission already secured for a spacious luxury detached residence, the proposed layout features five generously sized bedrooms (including two en-suites), four modern bathrooms, and a stylish gym. Additionally, the property is set to boast expansive living spaces designed to maximize your views, complete with a large balcony and double garage.
Braunton boasts a vibrant community offering a range of amenities, including shops, restaurants, local schools, and stunning access to some of the UK’s most celebrated beaches. This combination of location, planned luxuries, and potential for customization makes this plot an irresistible prospect for both families looking for a serene lifestyle and investors seeking rental opportunities in a sought-after area.
Don't miss this chance to turn your vision into reality! Property opportunities like this are a rare find, so secure your future home before it’s gone!
Land for sale in Saunton Road, Braunton, EX33 — £275,000 • 3 bed • 1 bath • 1561 ft²
Land for sale in Saunton Road, Braunton, EX33 — £195,000 • 3 bed • 1 bath • 1561 ft²
Land for sale in West Hill, West Down, EX34 — £395,000 • 1 bed • 1 bath • 1543 ft²
Plot for sale in Cleave Wood, Langmead Drive, Bideford, EX39 — £250,000 • 1 bed • 1 bath • 2834 ft²
Land for sale in Hills View, Braunton, EX33 — £350,000 • 4 bed • 1 bath • 5227 ft²
4 bedroom detached house for sale in Wrafton Road, Braunton, Devon, EX33 — £800,000 • 4 bed • 1 bath






























