**Standout Features:**
- End-of-terrace design with 3 bedrooms
- Private front and rear gardens
- Off-street parking with private driveway
- Long-term tenant providing stable rental income
- Excellent mobile signal and fast broadband speeds
**Potential Concerns:**
- Located in an area classified as "industrious hardship" with notable deprivation
- The property may require cosmetic updates or renovations
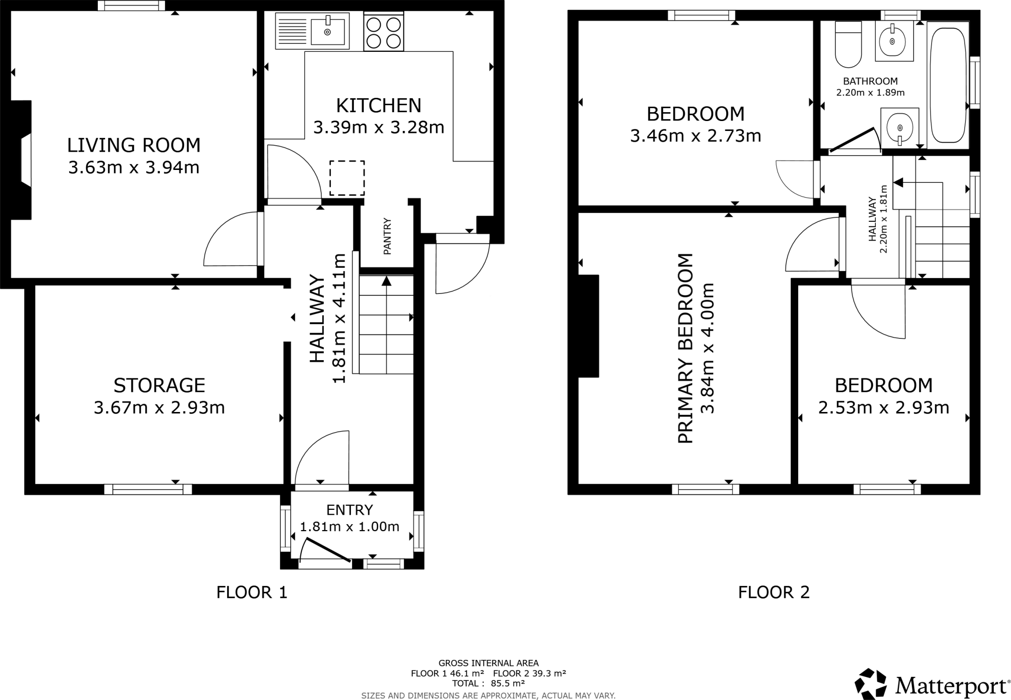
This inviting 3-bedroom end-of-terrace home in Fleetwood presents an ideal investment opportunity for serious investors and developers. Currently generating an annual gross income of £7,200, this property boasts a dedicated long-term tenant, ensuring stable cash flow from day one. The home features a cozy living room with a wood-burning stove, a functional kitchen, and ample outdoor space with private gardens, perfect for family gatherings or peaceful retreats.
With off-street parking and fast mobile and broadband connections, this property accommodates modern living needs while offering significant investment potential. Although the surrounding area faces some socio-economic challenges, the prospect for long-term rental viability is strong, making this property a smart addition to any portfolio. Don't miss out on this valuable opportunity to secure a well-maintained home with established rental income—contact us today to explore the investment details further.
3 bedroom terraced house for sale in Arden Green, Fleetwood, FY7 — £88,000 • 3 bed • 2 bath • 936 ft²
3 bedroom terraced house for sale in Derwent Avenue, Fleetwood, ., FY7 — £99,950 • 3 bed • 1 bath • 900 ft²
3 bedroom end of terrace house for sale in Fordway Avenue, Blackpool, FY3 — £106,000 • 3 bed • 1 bath • 850 ft²
2 bedroom end of terrace house for sale in Warley Road, Blackpool, FY2 — £115,000 • 2 bed • 1 bath • 1023 ft²
3 bedroom end of terrace house for sale in Whinfield Avenue, Fleetwood, FY7 — £97,500 • 3 bed • 1 bath • 1033 ft²
2 bedroom terraced house for sale in Lower Lune Street, Fleetwood, FY7 — £85,745 • 2 bed • 1 bath • 635 ft²


















































































