YO1 9SF - 4 bedroom town house for sale in Peckitt Street, York, YO1

View on Property Piper

4 bedroom town house for sale in Peckitt Street, York, YO1

Summary - THE NEW HOUSE, PECKITT STREET YO1 9SF

4 bed 2 bath Town House

High-spec townhouse with sun terrace, parking and optional rental apartment.
Open-plan kitchen linking to family room and 300 sqft sun terrace
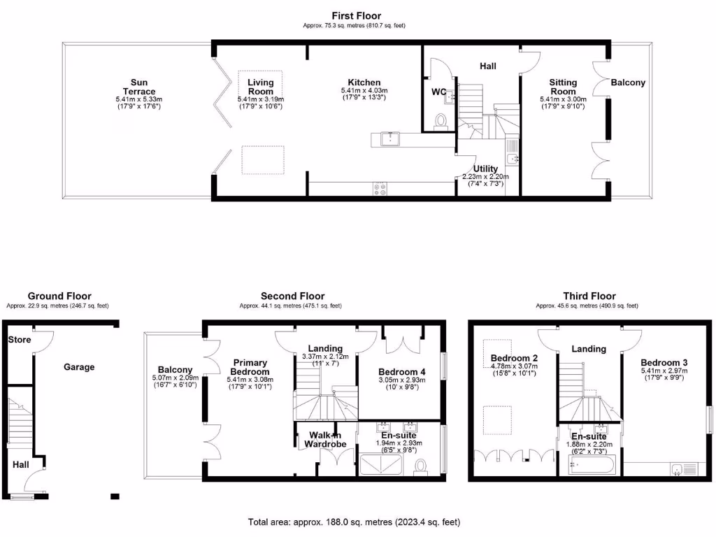
Set on a quiet end-of-terrace in the heart of York, this architect-designed town house blends Georgian character with contemporary extension and high-end finishes. The property offers generous, well-lit living spaces, views towards the River Ouse and Clifford’s Tower, and a superb 300 sq ft sun terrace ideal for entertaining or quiet city living.

The layout is versatile: a contemporary dining kitchen linking to a family room and large terrace, a front sitting room with balcony, and a principal bedroom with dressing room, elegant ensuite and private balcony. The top floor currently operates as a luxury self-contained apartment, useful for rental income or simple reversion to additional bedrooms.

Practical credentials include an open-fronted garage and external store, solar panels, underfloor heating throughout, smart heating and lighting, and an EPC rating of B. The house was completed in 2017 and has been recently renovated, offering largely turnkey accommodation for downsizers, city professionals or investors seeking a high-spec, low-maintenance base.

Important considerations: the property is leasehold (993 years remaining) and is in an area with a high flood risk and very high crime statistic. Council tax is noted as quite expensive. These factors should be weighed alongside the home’s strong city-centre location, flexible income potential and substantial outdoor living spaces.

Property Details

Brochure Descriptions

Image Descriptions

Floorplan Description

Rooms

Textual Property Features

Target Audience

AI Tags

Detected Visual Features

EPC Details

Nearby Schools

Nearest Bars And Restaurants

,,,,}

Nearest General Shops

,,}

Nearest Grocery shops

,,}

Nearest Supermarkets

,,}

Nearest Religious buildings

,,}

Nearest Medical buildings

,,,}

Nearest Airports

}

Nearest Leisure Facilities

,,,,}

Nearest Tourist attractions

,,}

Nearest Train stations

,,,,}

Nearest Bus stations and stops

,,,,}

Nearest Hotels

,,}

Tags

Local Market Stats

AirBnB Data

Similar Properties

Meta

High Res Images

Compatible Images

Low res Images

Thumbnails

Raw Images

High Res Floorplan Images

Compatible Floorplan Images

Low res Floorplan Images

FloorplanImages Thumbnail

Raw Floorplan Images