Low-maintenance garden, garden room and convenient town access.
Modern kitchen with integrated appliances and granite worktops
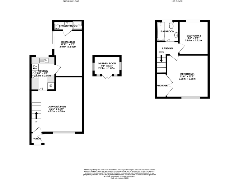
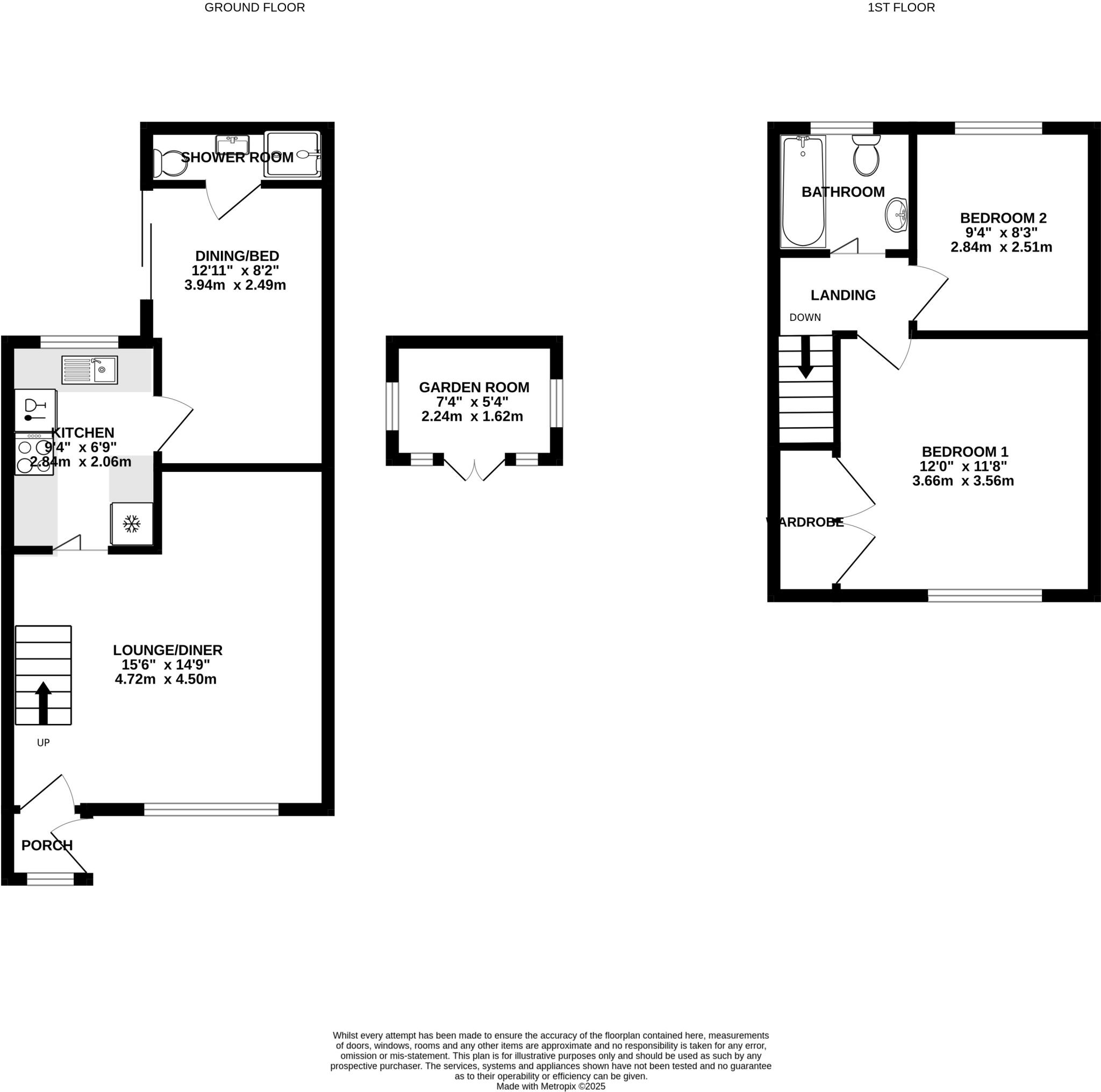
A modern two-bedroom mid-terrace offering versatile living over two floors, well placed for local schools, the Dorset Trailway and open green space. The ground floor room works as a snug, home office or guest bedroom and benefits from a fully tiled en-suite. A contemporary kitchen with integrated appliances and a bright L-shaped lounge/diner provide practical everyday living.
Outside, the low-maintenance rear garden features a large paved patio, resin parking for one vehicle and a timber-insulated garden room with French doors — ideal as a studio or hobby space. The front garden is neatly lawned and fenced. The property is freehold, has mains gas central heating to radiators and double glazing installed before 2002.
Notable positives include fast broadband, excellent mobile signal, low local crime and proximity to both primary and secondary schools. The house sits in a very affluent, mainly renting rural retirement area yet close to town facilities and transport links to Poole, Bournemouth and Salisbury.
Buyers should note the overall footprint is small (approx. 614 sq ft) and the plot is compact, with parking space for one car only. The double glazing is older and the construction dates from the late 1960s–1970s, so buyers seeking a fully modernised fabric may wish to budget for incremental updates over time. Council tax is described as inexpensive.
2 bedroom terraced house for sale in Elizabeth Road, Blandford Forum, DT11 — £275,000 • 2 bed • 1 bath • 786 ft²
2 bedroom terraced house for sale in Blandford, DT11 — £250,000 • 2 bed • 1 bath • 581 ft²
2 bedroom terraced house for sale in Eastleaze Road, Blandford Forum, DT11 — £250,000 • 2 bed • 1 bath • 620 ft²
2 bedroom end of terrace house for sale in Fishers Close, Blandford Forum, DT11 — £280,000 • 2 bed • 1 bath • 862 ft²
1 bedroom terraced house for sale in Jubilee Way, Blandford Forum, DT11 — £190,000 • 1 bed • 1 bath • 463 ft²
2 bedroom terraced house for sale in Old Farm Gardens, Blandford Forum, Dorset, DT11 — £235,000 • 2 bed • 1 bath • 487 ft²






























































