Compact buy-to-let close to station and beach with long lease.
Walking distance to the beach and town centre
0.3 miles from Margate railway station to London links
Secure gated development with allocated off-street parking
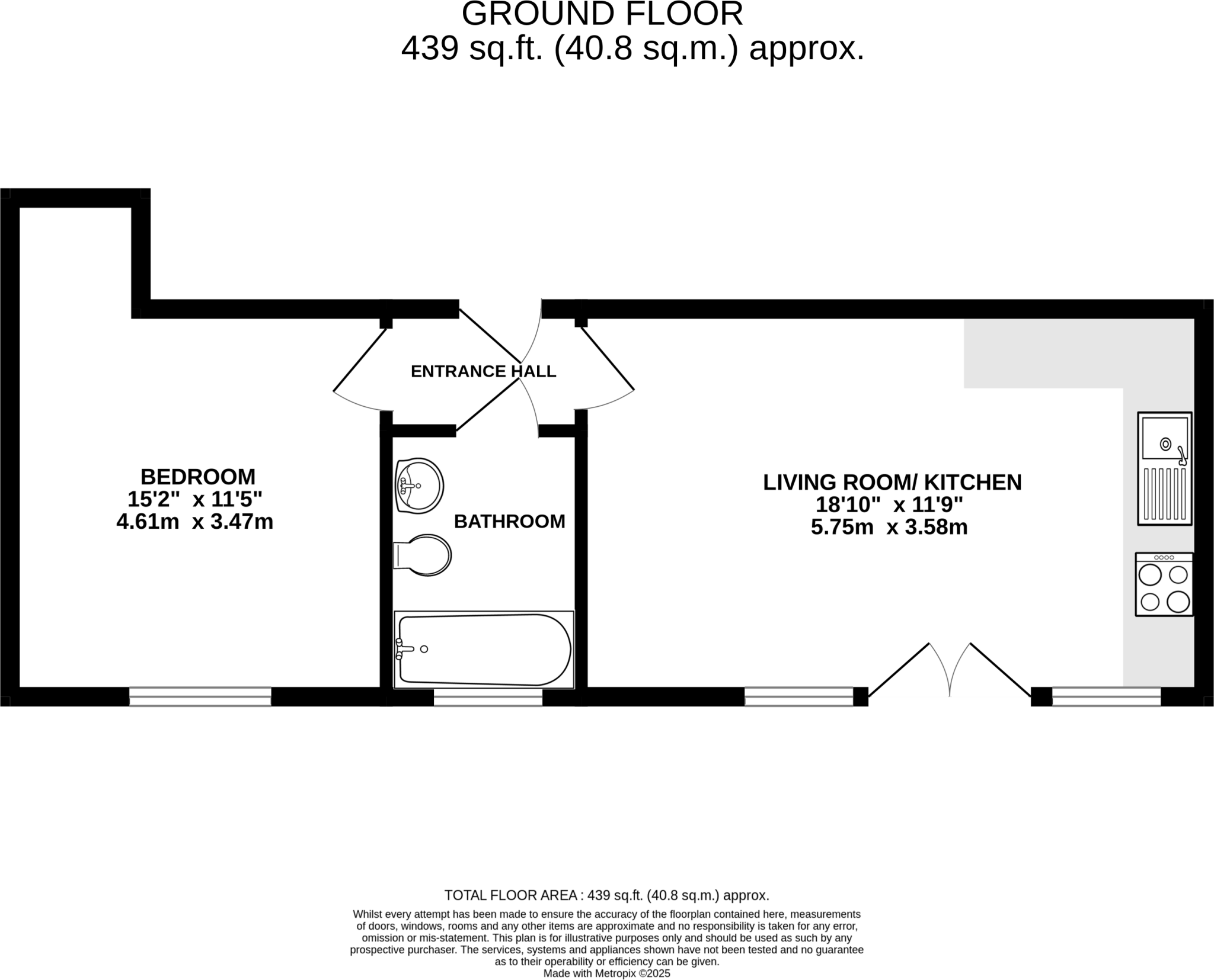
Compact overall size — approximately 439 sq ft
Long lease details: 999 years from 5 December 2006
Sold at online auction; administration and buyer’s premium payable
Area classified as very deprived; local crime levels are high
EPC rating C; broadband average, mobile signal excellent
A compact one-bedroom ground-floor apartment in a secure gated development, a short walk from Margate’s seafront and 0.3 miles from the railway station. The open-plan living/kitchen, bedroom and bathroom sit within a modern building completed in the mid-2000s, and the flat includes an allocated off-street parking space — useful in a town-centre location.
This property suits investors seeking a straightforward buy-to-let or an owner-occupier wanting a low-footprint seaside base. The long lease (999 years from 2006) removes a common leasehold concern and the EPC rating of C indicates reasonable efficiency for the size. Broadband speeds are average and mobile signal is excellent, supporting modern rental demand.
Important practical points: the apartment is small (around 439 sq ft) and positioned in an area identified as very deprived with higher crime levels, which may affect rental yield, resale pricing, or owner preferences. The sale is by online auction on 4 November 2025 — there are non-refundable fees (administration £1,200 inc. VAT and buyer’s premium £1,000 inc. VAT) payable on exchange, and buyers should consult the legal pack for any additional disbursements before bidding.
In short, this is a low-maintenance, leasehold seaside flat with parking and strong transport links. It offers clear rental or holiday-let potential but carries location-related considerations and upfront auction costs that buyers must factor into any offer.
2 bedroom flat for sale in Flat 4B Arlington House, All Saints Avenue, Margate, Kent, CT9 1XP, CT9 — £25,000 • 2 bed • 1 bath • 476 ft²
2 bedroom flat for sale in Flat 14C Arlington House, All Saints Avenue, Margate, Kent, CT9 1XS, CT9 — £30,000 • 2 bed • 1 bath • 571 ft²
1 bedroom flat for sale in Athelstan Road, Margate, Kent, CT9 — £55,000 • 1 bed • 1 bath • 474 ft²
2 bedroom flat for sale in Flat 6/E Arlington House All Saints, Margate, Kent, CT9 — £55,000 • 2 bed • 1 bath • 657 ft²
2 bedroom ground floor flat for sale in Flat 3, Majestic Court 10-12, Lewis Crescent, Cliftonville, Margate, Kent CT9 2LH, CT9 — £145,000 • 2 bed • 1 bath • 508 ft²
1 bedroom flat for sale in 18 Trinity Square, Margate, CT9 — £195,000 • 1 bed • 1 bath • 388 ft²


































