Spacious Victorian family home with large garden, annex and garage.
Victorian five-bedroom detached home with many period features
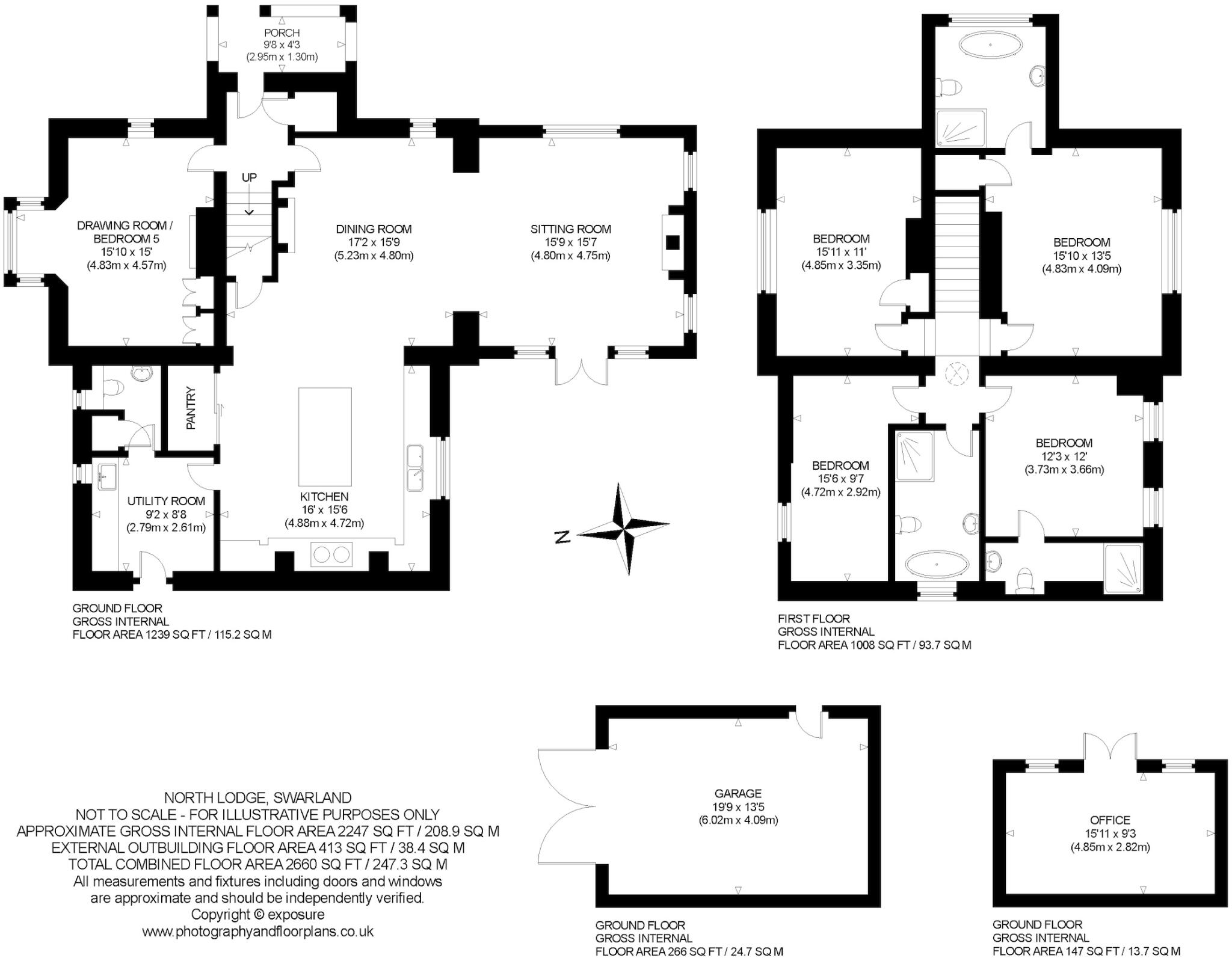
North Lodge is a striking Victorian five-bedroom family home set on very large, private grounds in Swarland. The house blends original period features — stone mullioned windows, stripped wood floorboards and an inglenook fireplace — with a contemporary open-plan kitchen, utility and generous living spaces that suit family life and entertaining. A separate annex/home office and a detached garage/workshop add flexibility for guests, working from home or hobbies.
The principal and second bedrooms both include en‑suites, supported by two further bedrooms and a family bathroom, making the layout practical for larger families. A sheltered south-facing patio and wrap-around lawns offer safe outdoor space for children and room for planting or play. Off-street parking is ample and the property sits in a very low-crime village with good primary schooling and easy A1 access for commuting.
Practical considerations: the house is heated by an LPG boiler (not on a community supply) and the stone walls are understood to have no insulation, which will affect running costs and may require improvement depending on buyer priorities. Broadband speeds are reported as slow despite excellent mobile signal. Council tax is above average. These factors are balanced by the property’s size, character, versatile outbuildings and village location close to countryside amenities.
This home will particularly suit growing families who value period character, sizeable private gardens and flexible ancillary space, and who are prepared to manage or upgrade energy efficiency and broadband as desired.
5 bedroom detached house for sale in Admiral Close, Swarland, Morpeth, NE65 — £725,000 • 5 bed • 4 bath • 3585 ft²
5 bedroom detached house for sale in Springwood, Swarland, Morpeth, Northumberland, NE65 — £625,000 • 5 bed • 4 bath • 2476 ft²
5 bedroom detached bungalow for sale in Kenmore Road, Swarland, Morpeth, Northumberland, NE65 — £645,000 • 5 bed • 2 bath • 1830 ft²
4 bedroom detached house for sale in Old Park Road, Swarland, NE65 — £650,000 • 4 bed • 2 bath • 1420 ft²
4 bedroom detached house for sale in Percy Drive, Swarland, Morpeth, NE65 — £600,000 • 4 bed • 2 bath • 2463 ft²
4 bedroom detached house for sale in Alexander Grove, Swarland, Morpeth, NE65 — £550,000 • 4 bed • 2 bath • 1378 ft²














































































































































































































