GU22 8EU - 3 bedroom semidetached house for sale in Balmoral Drive, Wo…

View on Property Piper

3 bedroom semi-detached house for sale in Balmoral Drive, Woking, Surrey, GU22

Summary - Balmoral Drive, Woking, Surrey, GU22 GU22 8EU

3 bed 1 bath Semi-Detached

Three bedrooms with two reception rooms
A spacious three-bedroom semi-detached home in Woking offering significant scope to personalise and extend (subject to planning). The house sits on a large plot with a garage, side driveway and off-street parking, making it rare for the area and ideal for families who want outside space and storage.

The property is presented in original, dated condition and will require a programme of modernization throughout — kitchen, bathroom and internal finishes need updating. There is a single bathroom, so adding a second bathroom or en-suite is a clear value-adding opportunity. Heating is mains gas with a boiler and radiators; glazing is double glazed (install date unknown).

Location benefits include good local schools within easy reach, fast broadband and excellent mobile signal, plus convenient links into Woking town centre. The area is a diverse, busy urban neighbourhood with average local crime levels and some indicators of deprivation; buyers should weigh community character alongside practical benefits.

This freehold house suits a growing family seeking outside space and long-term improvement potential, or an investor/home improver prepared to renovate. Any extension or major works will be subject to planning and building regulations, but the substantial plot and garage provide a strong platform for adding value.

Property Details

Brochure Descriptions

Image Descriptions

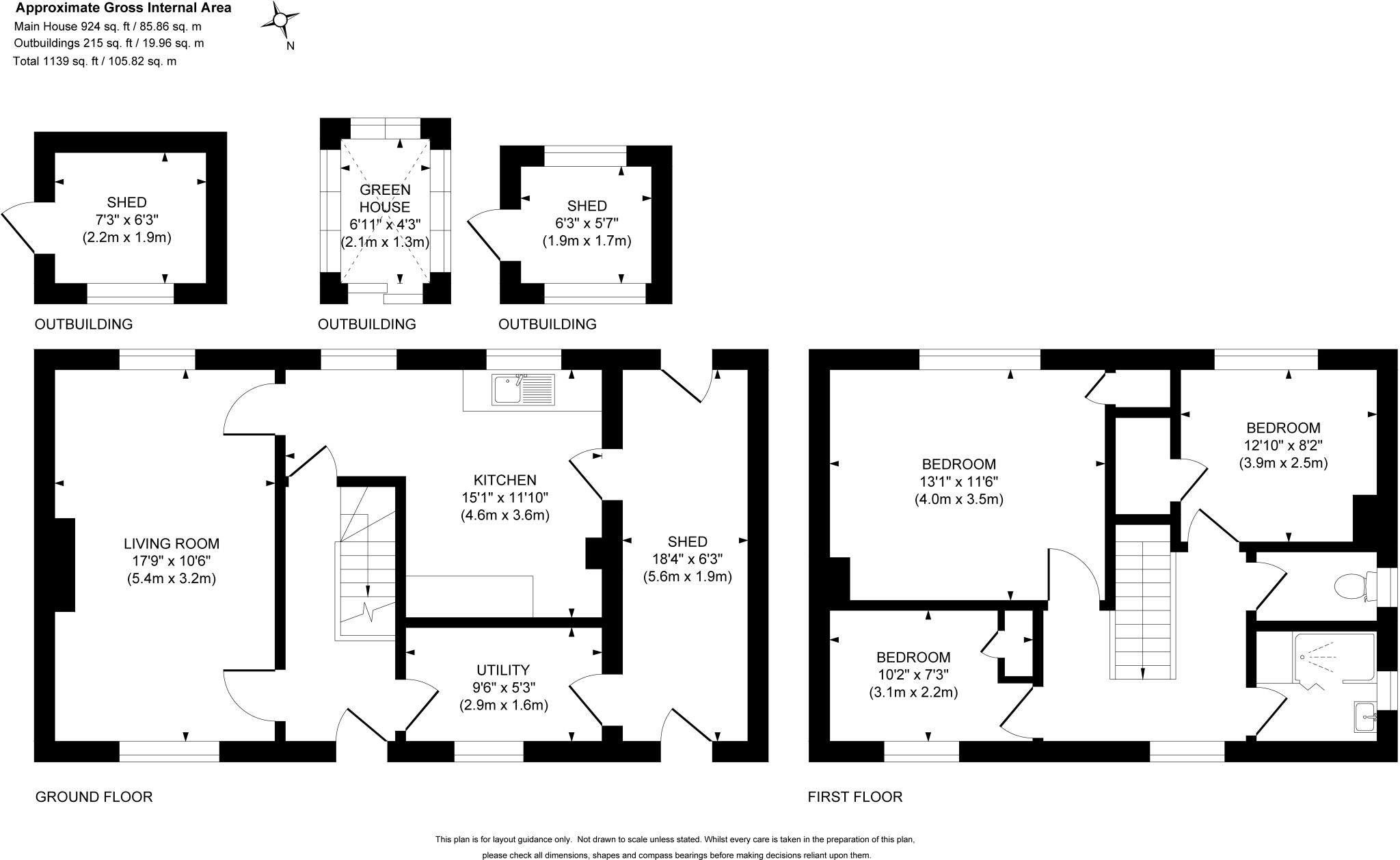
Floorplan Description

Rooms

Textual Property Features

Detected Visual Features

EPC Details

Nearby Schools

Nearest Bars And Restaurants

,,,,}

Nearest General Shops

,,}

Nearest Grocery shops

,,}

Nearest Supermarkets

,,}

Nearest Religious buildings

,,}

Nearest Medical buildings

,,,}

Nearest Airports

,}

Nearest Leisure Facilities

,,,,}

Nearest Tourist attractions

,,}

Nearest Train stations

,,,,}

Nearest Bus stations and stops

,,,,}

Nearest Hotels

,,}

Tags

Local Market Stats

AirBnB Data

Meta

High Res Images

Compatible Images

Low res Images

Thumbnails

Raw Images

High Res Floorplan Images

Compatible Floorplan Images

Low res Floorplan Images

FloorplanImages Thumbnail

Raw Floorplan Images