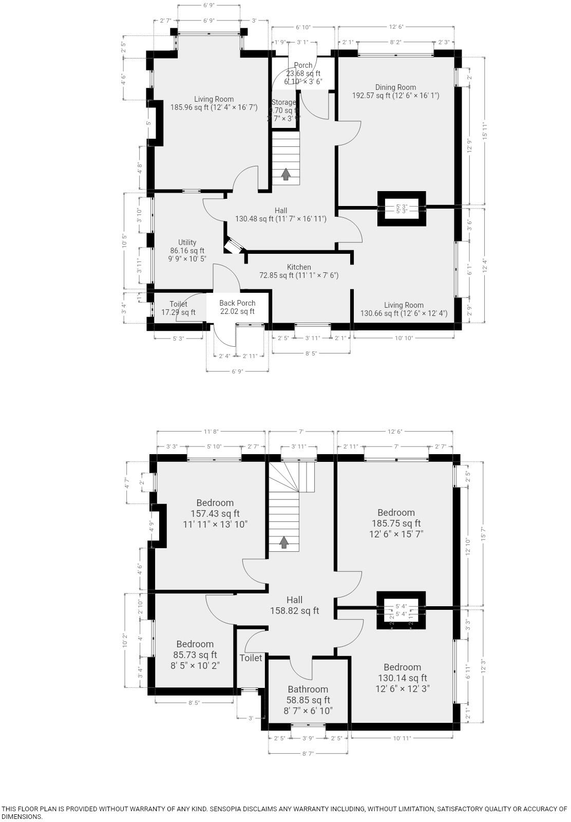
Spacious character house with large gardens and strong family potential.
Detached four-bedroom period house with original architectural features
Large corner plot with wraparound gardens and generous outdoor space
Off-street parking and single garage included on the plot
One family bathroom only — may need additional facilities
Solid brick walls; likely no insulation — thermal upgrades advised
Council Tax Band F — relatively expensive running costs
Excellent transport links: nearby railway, frequent buses, coastal access
Close to highly rated local schools and family amenities
This detached four-bedroom period house on a large corner plot in Meols combines characterful detail with genuine scope to modernise. Original features such as arched windows, decorative plasterwork and a bay window give the property instant personality and a strong foundation for sympathetic refurbishment.
The wraparound garden and garage provide useful outdoor space, private parking and scope for extension subject to planning. Located close to Great Meols Park, local shops, bus stops and Meols railway station, the home is convenient for family life and coastal leisure at Hoylake Promenade.
Practical considerations are clear: the property has one family bathroom, likely solid-wall construction with no installed cavity insulation, and a council tax band F. These factors point to future running costs and potential renovation work required to bring heating and thermal performance fully up to modern expectations.
For buyers seeking a character home with long-term upside, this house offers an opportunity to create a bespoke family residence. The corner plot, period features and good local schools make it particularly appealing to families looking to add space and contemporary comfort through careful refurbishment.
4 bedroom detached house for sale in Birkenhead Road, Meols, Wirral, Merseyside, CH47 — £625,000 • 4 bed • 1 bath • 1344 ft²
4 bedroom detached house for sale in Queens Avenue, Meols, Wirral, Merseyside, CH47 — £600,000 • 4 bed • 2 bath • 1563 ft²
5 bedroom semi-detached house for sale in Birkenhead Road, Meols, Wirral, Merseyside, CH47 — £700,000 • 5 bed • 1 bath • 2708 ft²
4 bedroom detached bungalow for sale in Mumfords Lane, CH47 — £550,000 • 4 bed • 2 bath • 1329 ft²
5 bedroom detached house for sale in Forest Road, Meols, Wirral, CH47 — £750,000 • 5 bed • 2 bath • 2322 ft²
4 bedroom detached house for sale in Guffitts Close, Wirral, Merseyside, CH47 — £500,000 • 4 bed • 2 bath • 1478 ft²


















































































































