Ideal for growing families seeking modern low-maintenance living and private garden access.
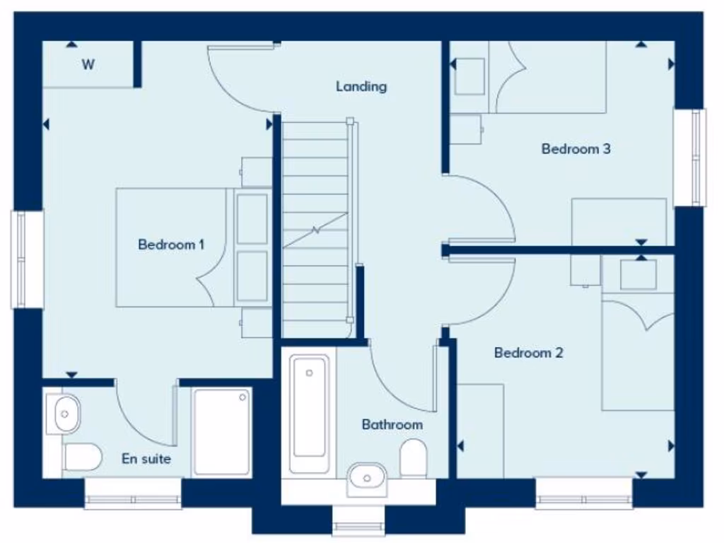
Double-fronted detached layout with attractive bay window
This three-bedroom detached Chelmsford offers a compact, modern family layout on a very large plot in Ladygrove, Didcot. The double‑fronted façade and bay window give a traditional look while the open-plan kitchen/dining with French doors creates bright, adaptable living space for everyday family life.
Bedroom one runs the length of the house and includes an en suite and built-in sliding wardrobes, a useful private space for parents. Two further bedrooms and a family bathroom complete the first floor; note the internal floorspace is modest at about 655 sq ft, so rooms are compact and storage may be limited.
Practical extras include integrated kitchen appliances and an electric car charging point, plus a 10‑year Premier warranty and a 2‑year developer warranty for added peace of mind. The property is freehold, but freehold registration is not yet complete and the low annual service charge (£250.93) may increase in future in line with estate costs.
Important considerations: broadband speeds are reported as very slow, which may affect home working and streaming. There is only one family bathroom in addition to the en suite, and the new-build nature means some finishes may differ from brochures; purchasers are advised to check exact measurements on site and confirm any specific fittings in writing.
3 bedroom terraced house for sale in Ladygrove,
Didcot,
Oxfordshire,
OX11 9BS
, OX11 — £390,000 • 3 bed • 1 bath • 483 ft²
3 bedroom terraced house for sale in Crest Nicholson At Nobel Park, Didcot, OX11 — £400,000 • 3 bed • 2 bath • 542 ft²
4 bedroom house for sale in Ladygrove,
Didcot,
Oxfordshire,
OX11 9BS
, OX11 — £485,000 • 4 bed • 1 bath • 860 ft²
4 bedroom town house for sale in Crest Nicholson At Nobel Park, Didcot, OX11 — £467,500 • 4 bed • 2 bath • 797 ft²
5 bedroom detached house for sale in Ladygrove,
Didcot,
Oxfordshire,
OX11 9BS
, OX11 — £675,000 • 5 bed • 1 bath • 1281 ft²
3 bedroom terraced house for sale in Ladygrove,
Didcot,
Oxfordshire,
OX11 9BS
, OX11 — £400,000 • 3 bed • 1 bath • 555 ft²






































