Generous two-bedroom flat with garage, communal gardens and a very long lease.
Over 900 sq ft of living space
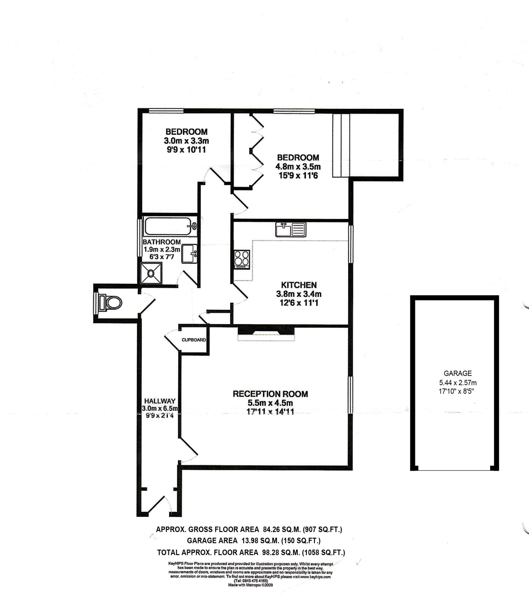
This spacious two-bedroom first-floor apartment offers over 900 sq ft of well-laid-out living space in a handsome Victorian conversion on Castlebar Hill. Newly renovated throughout, the home pairs high ceilings and large windows with a modern kitchen and shower room, making it comfortable for a couple or small family. Two double bedrooms include built-in storage and the reception room provides a bright, sociable space for everyday life and entertaining.
Practical strengths include a very long lease (approx. 951 years), an integral garage with off-street parking and access to large, well-kept communal gardens. The location is strong for commuting: West Ealing and Ealing Broadway stations (Elizabeth Line, Central and District links) are within a mile, and local schools and shops are close by.
Be clear about running costs and energy: the property currently has an EPC rating of D and solid brick walls (as built) with no assumed insulation, which may affect heating efficiency despite gas central heating. Council tax is above average. There is a single family bathroom and a separate cloakroom, which may be a consideration for larger households.
Overall, this apartment will suit buyers looking for generous period proportions with modern finishes and excellent transport links. It offers immediate move-in readiness thanks to recent refurbishment, but buyers sensitive to energy performance or needing additional bathrooms should factor these points into their decision.
2 bedroom apartment for sale in Castlebar Hill, London, W5 — £799,000 • 2 bed • 1 bath • 893 ft²
2 bedroom apartment for sale in North Common Road, London, W5 — £900,000 • 2 bed • 2 bath • 1592 ft²
1 bedroom apartment for sale in Castlebar Park, London, W5 — £385,000 • 1 bed • 1 bath • 467 ft²
2 bedroom apartment for sale in Pinewood Grove, Ealing, London, W5 — £490,000 • 2 bed • 1 bath • 829 ft²
2 bedroom apartment for sale in Warwick Road, London, W5 — £650,000 • 2 bed • 2 bath • 942 ft²
2 bedroom apartment for sale in Minster Court, 28 Hillcrest Road, Ealing, London, W5 — £625,000 • 2 bed • 2 bath • 936 ft²














































































