Secure gated setting near Twickenham station, ideal for first-time buyers.
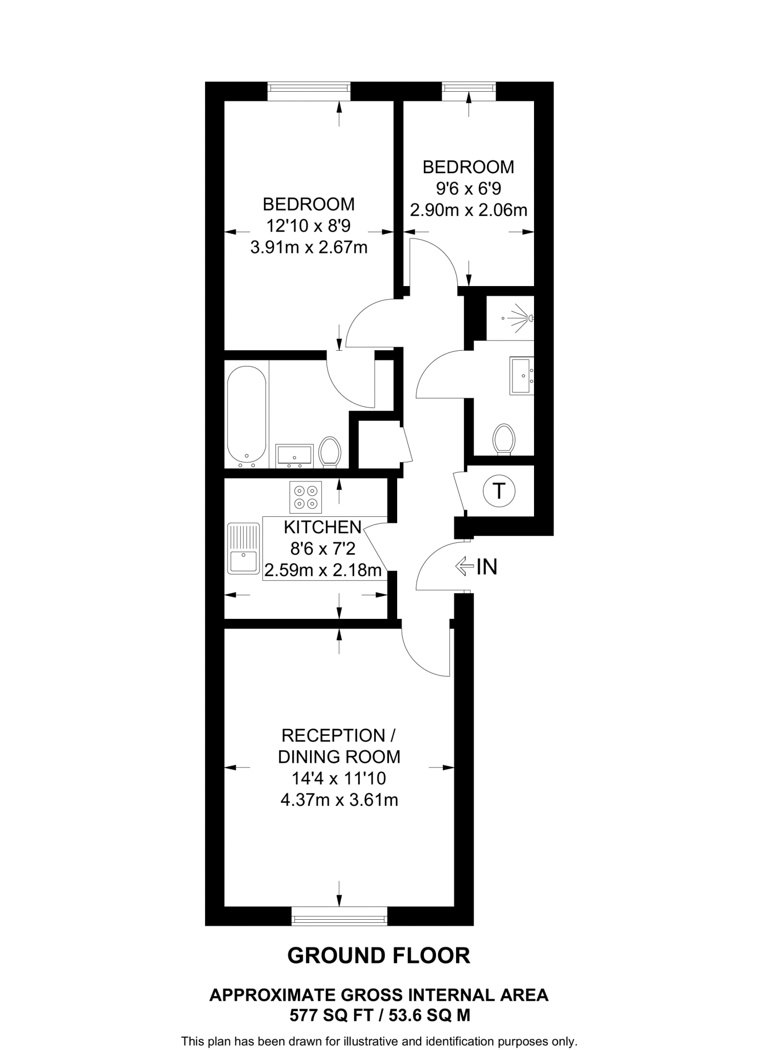
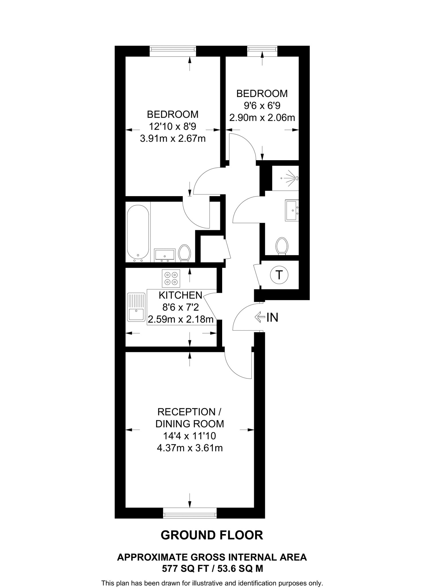
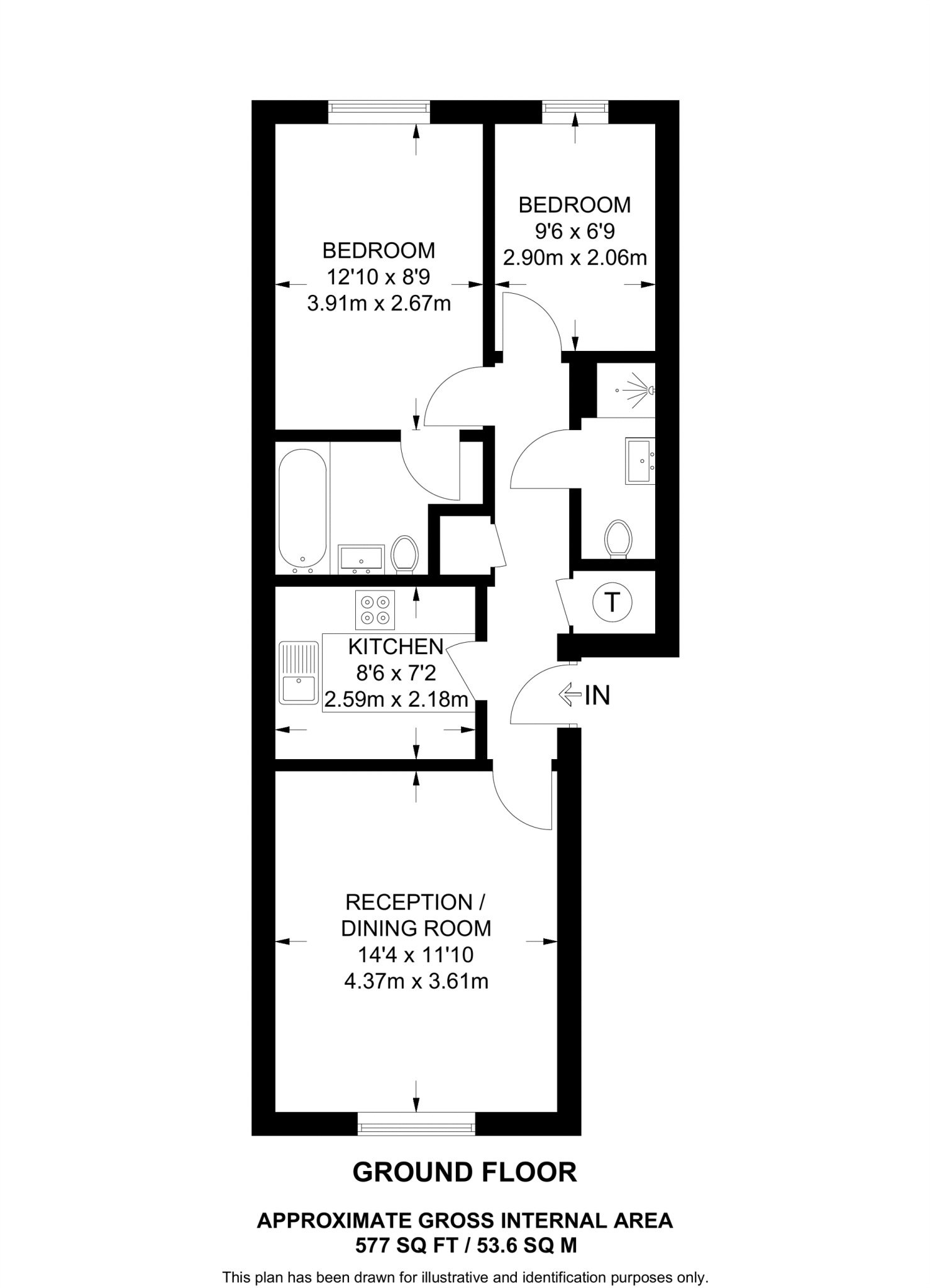
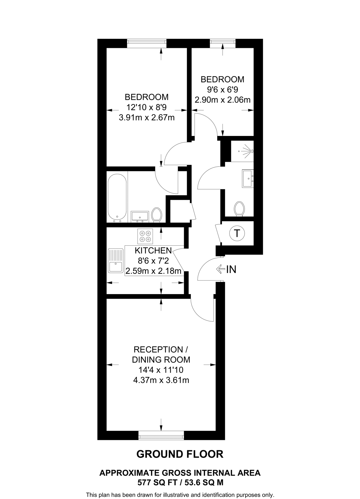
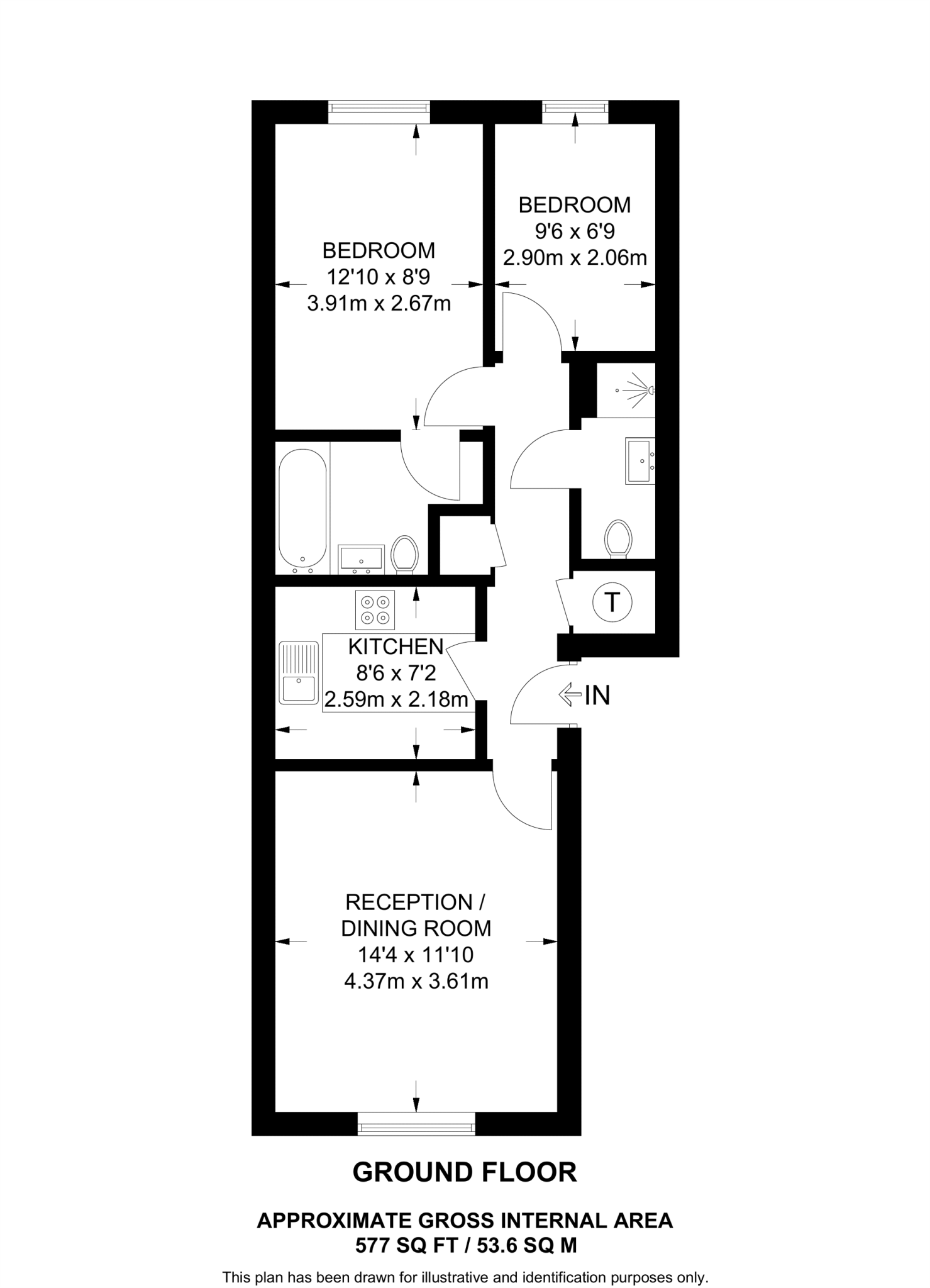
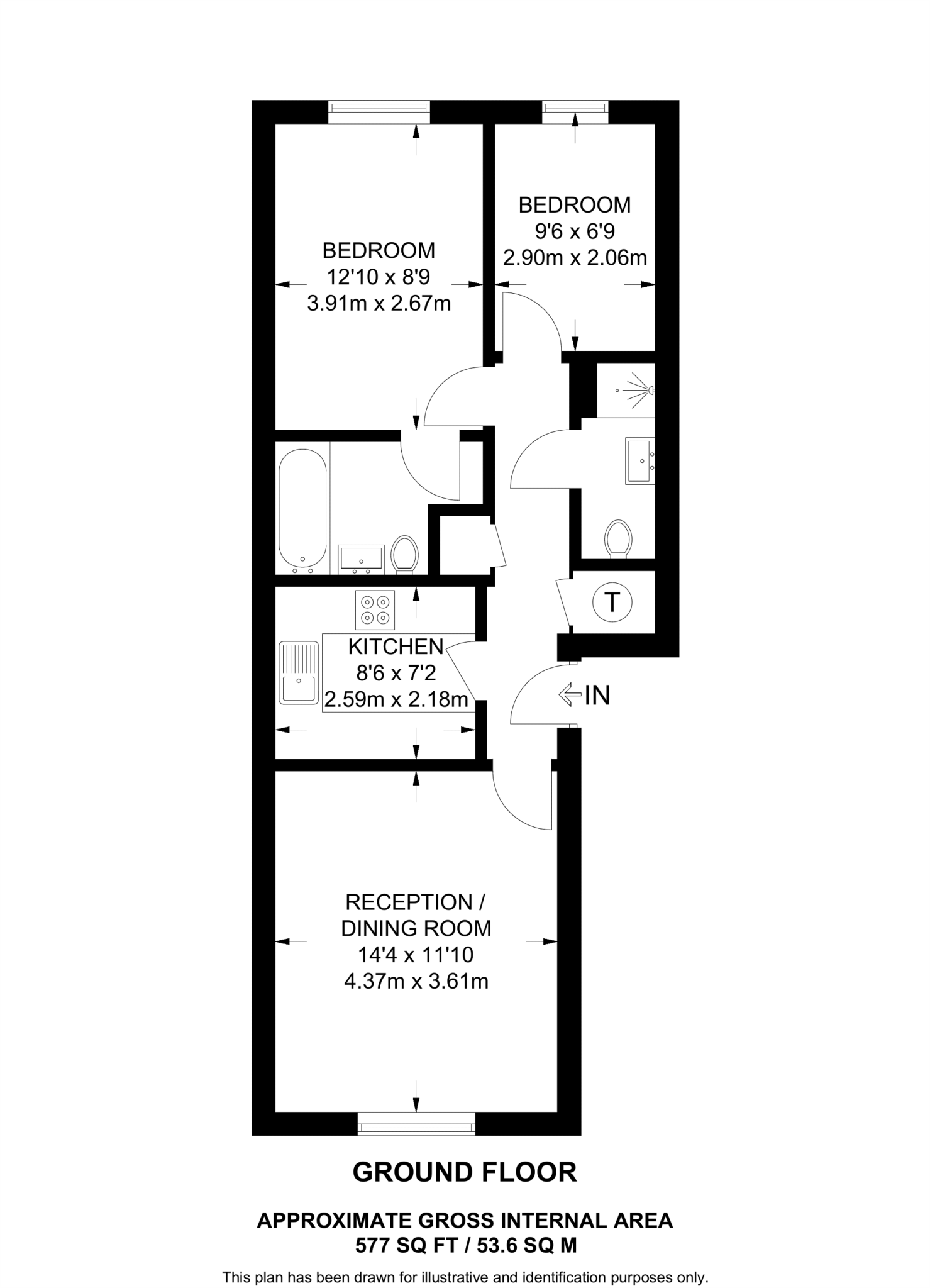
Ground-floor 2 bed, 2 bath flat, good reception with dining space
A bright ground-floor two-bedroom apartment in a modern gated development close to Twickenham station. The reception is a good size with room to dine, complemented by a smart kitchen, two double bedrooms and two bathrooms — a practical layout for first-time buyers or commuters.
Practical conveniences include permit/off-street parking in a secure setting, double glazing (installation date unknown), excellent mobile signal and fast broadband — useful for remote working. The building dates from the 1980s and shows modern styling throughout, with wooden flooring in the living room and a communal gated entrance.
Important facts: the property is leasehold with 98 years remaining and an annual service charge of about £1,740. Heating is by electric storage heaters/room heaters which can be more expensive than gas; the flat is compact at about 577 sq ft, so space is limited compared with larger homes. There is no flood risk and the local area is popular with commuters and young families, with several well-rated schools nearby.
2 bedroom flat for sale in Varsity Drive, Twickenham, TW1 — £360,000 • 2 bed • 1 bath • 559 ft²
2 bedroom flat for sale in Varsity Drive, Twickenham, TW1 — £315,000 • 2 bed • 1 bath • 559 ft²
2 bedroom flat for sale in London Road, Twickenham, TW1 — £375,000 • 2 bed • 1 bath • 545 ft²
2 bedroom apartment for sale in Cole Park Gardens, Twickenham, TW1 — £375,000 • 2 bed • 2 bath • 518 ft²
2 bedroom apartment for sale in Blyth Close, Twickenham, TW1 — £399,950 • 2 bed • 1 bath • 530 ft²
2 bedroom apartment for sale in Challenge Court, Longhorn Drive, Twickenham, TW2 — £350,000 • 2 bed • 1 bath • 661 ft²






















































































































































































































































