Garage plus off-street parking and private rear garden
Neutral, move-in-ready décor throughout
Spacious living room with feature fireplace
Generous master bedroom with built-in wardrobe area
Double glazing present; installation date unknown
Mains gas boiler and radiator heating in place
No flood risk; low council tax and fast broadband
Local area has higher crime and some deprivation
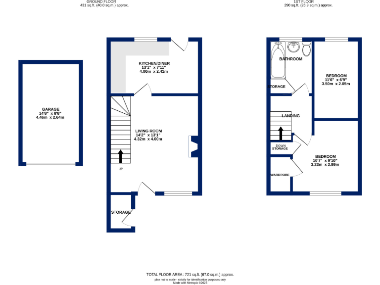
This well-presented two-bedroom end-terrace in Bramley offers an accessible first step on the property ladder. Neutral décor and a practical layout mean you can move in and personalise without major works. A private rear garden, single garage and off-street parking add everyday convenience and outdoor space.
The ground floor features a spacious living room with a side-aspect fireplace and a kitchen/dining area that opens to the patio and lawn. Upstairs are two bedrooms — a generous double with built-in wardrobe area and a smaller single — plus a three-piece bathroom with overhead shower.
Practical details suit modern living: double glazing, mains gas boiler with radiator heating, freehold tenure, and fast broadband with excellent mobile signal. There is no flood risk and council tax is low, helping running costs for a first-time buyer.
Buyers should note local challenges. The immediate area shows higher crime levels and wider neighbourhood deprivation, and the house dates from the late 1960s–1970s so some elements may need updating over time. The exact date of the double glazing install is unknown. Viewing will show whether cosmetically or mechanically anything requires attention.
2 bedroom semi-detached house for sale in Broadlea Avenue, Bramley, Leeds, LS13 — £185,000 • 2 bed • 1 bath • 668 ft²
3 bedroom semi-detached house for sale in Swinnow Grove, Leeds, West Yorkshire, LS13 — £250,000 • 3 bed • 1 bath • 706 ft²
3 bedroom semi-detached house for sale in Aston Road, Leeds, West Yorkshire, LS13 — £195,000 • 3 bed • 1 bath • 755 ft²
2 bedroom terraced house for sale in Snowden Crescent, Leeds, West Yorkshire, LS13 — £160,000 • 2 bed • 1 bath • 831 ft²
3 bedroom semi-detached house for sale in Valley Road, Leeds, West Yorkshire, LS13 — £250,000 • 3 bed • 1 bath • 836 ft²
2 bedroom terraced house for sale in Wood Grove, Leeds, West Yorkshire, LS12 — £189,995 • 2 bed • 1 bath • 657 ft²






















































































