DN4 9JU - 3 bedroom semidetached house for sale in Glebe Street, Warm…

View on Property Piper

3 bedroom semi-detached house for sale in Glebe Street, Warmsworth, Doncaster, DN4

Summary - 4 GLEBE STREET WARMSWORTH DONCASTER DN4 9JU

3 bed 2 bath Semi-Detached

Large period family house with gated parking, loft potential and village location.
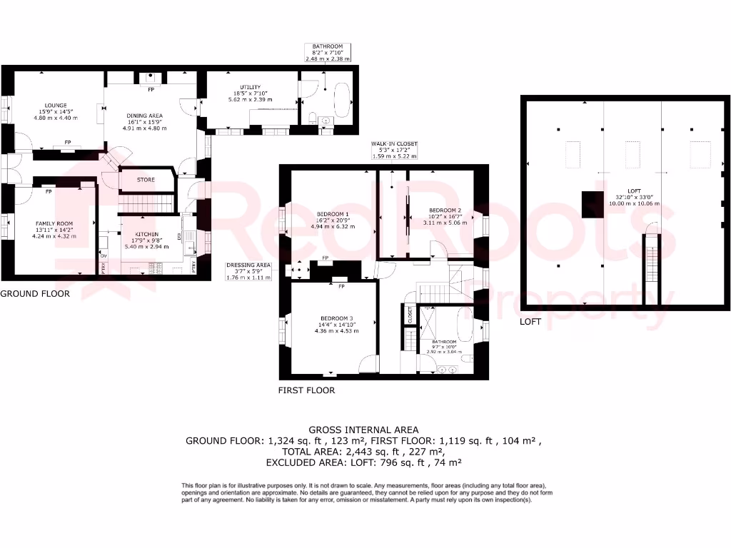
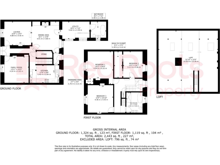
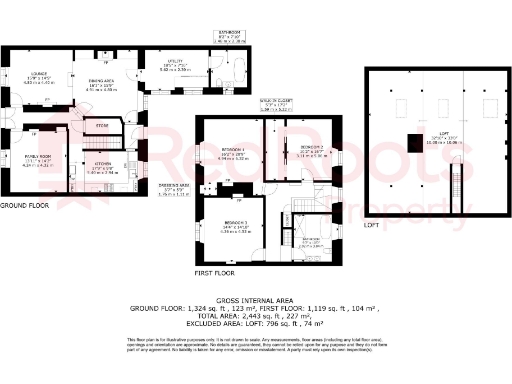
Extremely large 3,526 sq ft footprint with flexible reception rooms
Three generous double bedrooms with original fireplaces in two rooms
Large loft with conversion potential (subject to planning permission)
Gated driveway with electric gate and additional outdoor storage
Log burner and exposed beams create a warm, characterful centre
Period sandstone/limestone walls assumed uninsulated — upgrade likely
Double glazing fitted 2002+ and mains gas boiler with radiators
Council tax above average; some cosmetic and maintenance work needed
This substantial three-bedroom semi-detached character home on Glebe Street combines spacious period rooms with modern conveniences, ideal for families who value history and space. The house offers generous living areas, a log burner in the dining room, original fireplaces in two bedrooms and a gated driveway with electric gate for secure off-street parking.

Set across an exceptionally large footprint (circa 3,526 sq ft), the property has scope to adapt: a large loft offers conversion potential (subject to planning) and several reception rooms allow flexible family living, home working or play space. The double-glazed windows (fitted 2002+) and mains gas central heating provide everyday comfort, and broadband and mobile signal are both strong — useful for commuters and remote workers.

Buyers should note this is a period building constructed before 1900 with sandstone/limestone walls that are assumed to lack insulation; some thermal and cosmetic upgrades may be needed to optimise energy efficiency and reduce running costs. Council tax is above average and the house shows signs of ageing in places, so a degree of ongoing maintenance and selective refurbishment should be expected.

Located in Warmsworth with easy A1(M)/M18 access, good local schools and a friendly village atmosphere, this freehold home will suit families seeking character, space and future extension potential. It presents a rare combination of historic features and practical modern elements, but buyers with energy-efficiency or turnkey expectations should budget for improvement works.

Property Details

Image Descriptions

Floorplan Description

Rooms

Textual Property Features

Target Audience

AI Tags

Detected Visual Features

EPC Details

Nearby Schools

Nearest Bars And Restaurants

,,,,}

Nearest General Shops

,,}

Nearest Grocery shops

,,}

Nearest Supermarkets

,,}

Nearest Religious buildings

,,}

Nearest Medical buildings

,,,}

Nearest Airports

}

Nearest Leisure Facilities

,,,,}

Nearest Tourist attractions

,,}

Nearest Train stations

,,,,}

Nearest Bus stations and stops

,,,,}

Nearest Hotels

,,}

Tags

Local Market Stats

Similar Properties

Meta

High Res Images

Compatible Images

Low res Images

Thumbnails

Raw Images

High Res Floorplan Images

Compatible Floorplan Images

Low res Floorplan Images

FloorplanImages Thumbnail

Raw Floorplan Images