**Standout Features:**
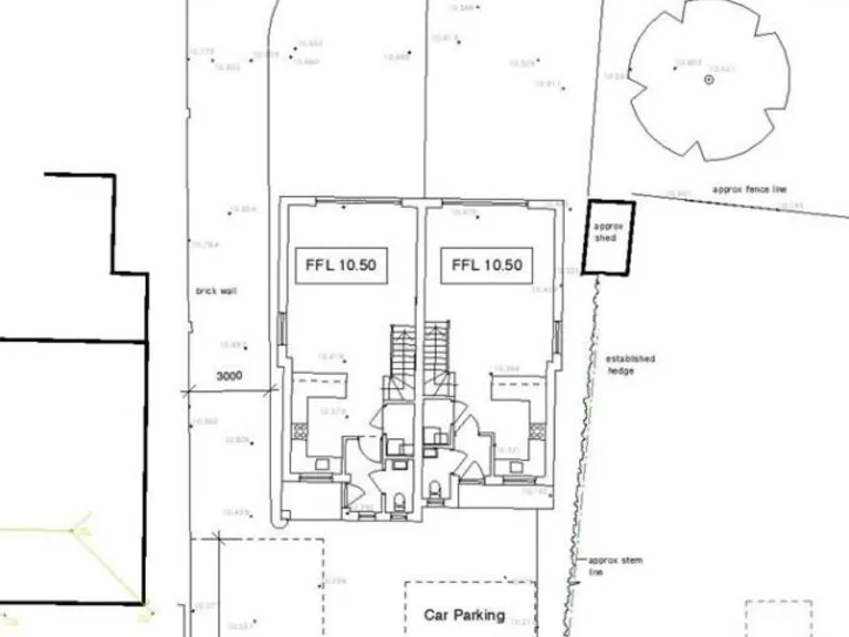
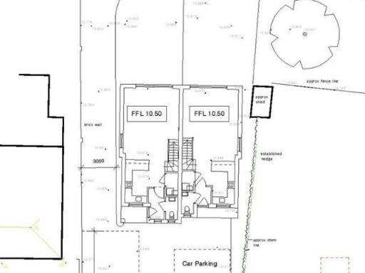
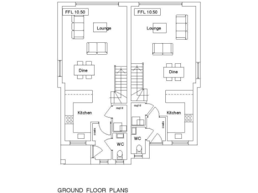
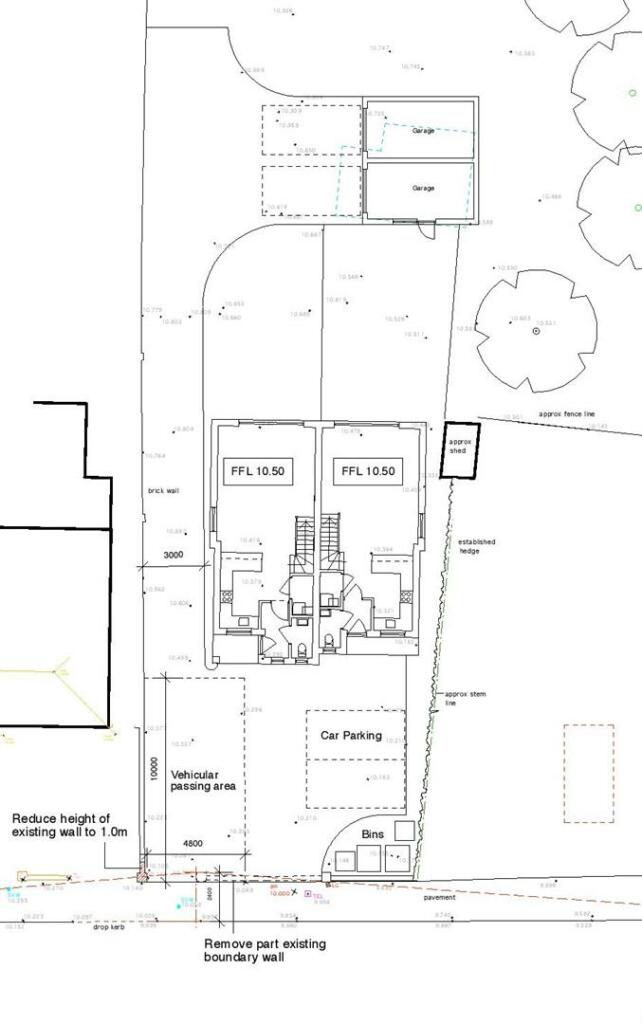
- Development opportunity for two semi-detached houses with approved planning (20/01224/FUL).
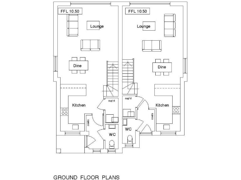
- Each house to feature 3 bedrooms, approximately 100 sqm living space, and en suite to principal bedrooms.
- Includes parking and garages at the rear, with west and south-facing gardens.
- Walking distance to Appley Park and the beach with nearby local amenities.
- Freehold tenure.
**Potential Downsides:**
- The property is undeveloped land and will require construction, which may necessitate financing.
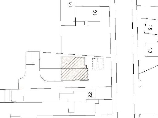
Unlock the potential of this exciting plot of land situated adjacent to 22 Marlborough Road, perfect for developers or investors looking to capitalize on a thriving location. With full planning permission in place for two semi-detached homes at approximately 100 sqm each, the designs boast modern living with three spacious bedrooms, including an en suite in the principal bedroom. Each house will enjoy designated parking, garages to the rear, and generous gardens, all within a stroll from the scenic Appley Park and the beach.
This prime location not only offers the luxury of coastal living but also access to local amenities such as shops, a post office, and public transport. Given the area’s strong rental potential, these properties could easily serve as permanent residences or holiday rentals. With the freedom to create your dream homes in a desirable setting, seize this unique opportunity today—development possibilities like this are rare and won't last long!
Plot for sale in East Cowes, PO32 — £150,000 • 1 bed • 1 bath • 1271 ft²
Plot for sale in Luccombe Road, PO37 — £435,000 • 1 bed • 1 bath
Plot for sale in Luccombe Road, PO37 — £250,000 • 1 bed • 1 bath • 1889 ft²
Plot for sale in Carter Street, Sandown, PO36 — £500,000 • 1 bed • 1 bath
Plot for sale in Carter Street, Sandown, PO36 — £500,000 • 1 bed • 1 bath
Commercial development for sale in Seaview Lane Nettlestone, Isle Of Wight, PO34 5AH, PO34 — £800,000 • 1 bed • 1 bath














































