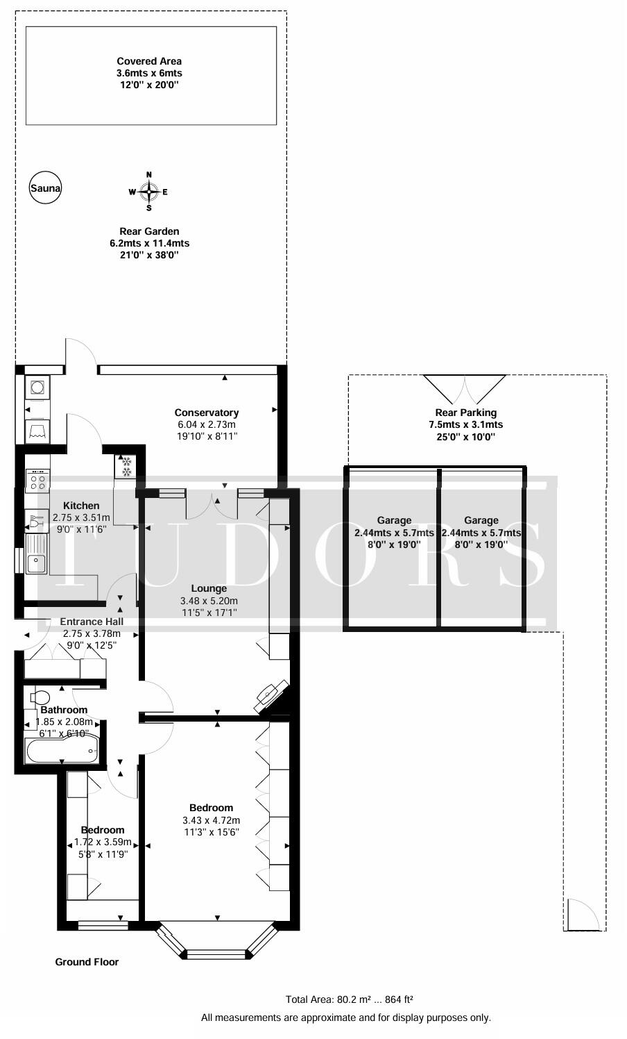
**Standout Features:**
- Newly renovated two-bedroom ground floor maisonette
- Direct access to a low-maintenance private garden with deck and large pergola
- Garage with double doors and ample off-road parking for up to three cars
- Long lease of approximately 900 years and no maintenance or ground rent fees
- Modern kitchen and bathroom, featuring bespoke storage solutions throughout
- Conveniently located near local shops, primary schools, and public transport options
This beautifully modernized two-bedroom ground floor maisonette offers a perfect blend of comfort and convenience, making it an ideal choice for first-time buyers, those downsizing, or savvy investors. Step into a spacious living room adorned with oak flooring and a charming wood burner, leading to a bright conservatory that opens onto your own private low-maintenance garden—a fantastic space featuring decking and a stunning pergola, perfect for outdoor entertaining. The stylish kitchen is equipped with ample storage and utility space, while both bedrooms offer bespoke storage solutions, ensuring everything has its place.
Enjoy the flexibility of a share of freehold with no communal charges and a generous lease, providing peace of mind for years to come. This property excels not only in aesthetics but also in practical living, located moments from local amenities and highly-rated schools, as well as beautiful parks and riverside walks. With off-road parking for three cars, it combines functionality with style, catering to family life or rental potential effortlessly. Don’t miss out on this exclusive opportunity to secure a fantastic home in a thriving community—secure your viewing today!
2 bedroom maisonette for sale in Walton Road, West Molesey, KT8 — £349,950 • 2 bed • 1 bath • 520 ft²
2 bedroom maisonette for sale in Hurst Road, West Molesey, KT8 — £400,000 • 2 bed • 1 bath • 885 ft²
2 bedroom maisonette for sale in Wilton Gardens, West Molesey, KT8 — £389,950 • 2 bed • 1 bath • 702 ft²
2 bedroom maisonette for sale in Wilton Gardens, West Molesey, Surrey, KT8 — £385,000 • 2 bed • 1 bath • 703 ft²
3 bedroom maisonette for sale in Island Farm Road, West Molesey, KT8 — £449,950 • 3 bed • 2 bath • 1106 ft²
2 bedroom maisonette for sale in Wilton Gardens, West Molesey, Surrey, KT8 — £375,000 • 2 bed • 1 bath • 672 ft²






























































































