4 bedroom home with en-suite and built-in wardrobes
Open-plan kitchen/diner with direct access to private garden
Separate living room for family or entertaining
Solar panels and EV charging point reduce energy costs
Driveway parking plus single garage for storage
Shared Ownership from 10–75% (example 35% = £199,500)
Leasehold (c. 990 years) and annual service charge applies
Council tax band TBC; reservation fee and new-build timing noted
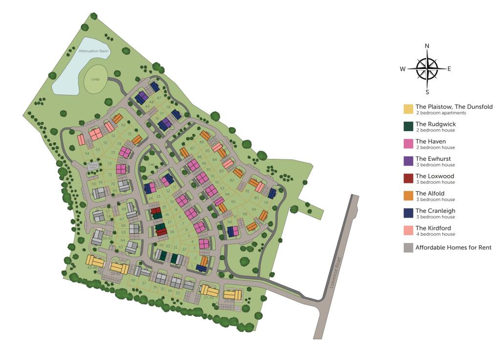
This newly built four-bedroom semi-detached home at Loxwood Fields offers modern family living with energy-efficient features and practical parking. The principal bedroom includes an en-suite and built-in wardrobes, while three further bedrooms and a family bathroom provide flexible space for children, guests or a home office. Ground floor layout centres on an open-plan kitchen/dining area with direct garden access plus a separate living room for quieter family time.
Built in 2025, the property benefits from solar panels and an EV charging point to reduce running costs. A driveway and single garage give parking and storage options, and the long lease (c. 990 years) provides long-term security. Shared ownership offers an entry route to ownership with shares from 10–75% (example: 35% share priced at £199,500; estimated rent and service charge apply).
Important practical notes: this is a leasehold new build with an annual service charge (example £46.89) and reservation fee (£500). Council tax band is to be determined for new-build properties and monthly costs will vary depending on the chosen share. CGI and show-home imagery are illustrative and finishes may vary on completion (expected Autumn 2025).
Set in an established, low-crime rural community near Cranleigh, the development is well placed for local primary schooling and independent schools nearby. The scheme will suit families or first-time buyers seeking a modern-energy-efficient home with lower upfront cost via shared ownership, while buyers requiring a fully independent purchase or immediate move-in should note the shared-ownership structure and new-build timing.



































































