Energy-efficient townhouse with private balcony and EV charging.
Integrated Bosch kitchen appliances included
This three-bedroom, three-storey new-build offers contemporary living in Buckler's Park, designed for low maintenance and energy efficiency. The open-plan ground floor with bifold doors connects living space to a turfed rear garden, while an integrated Bosch kitchen, fitted flooring and PV panels reduce running costs and add modern convenience.
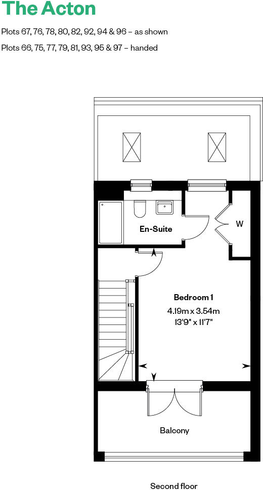
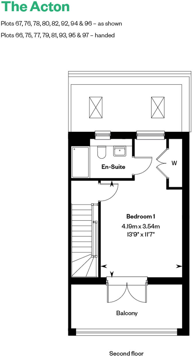
The principal bedroom occupies the entire second floor and benefits from an en suite, fitted wardrobe and private balcony — a rare touch of privacy in a townhouse. Allocated off-street parking includes an electric vehicle charging point and fibre to the home ensures fast broadband for working from home or streaming.
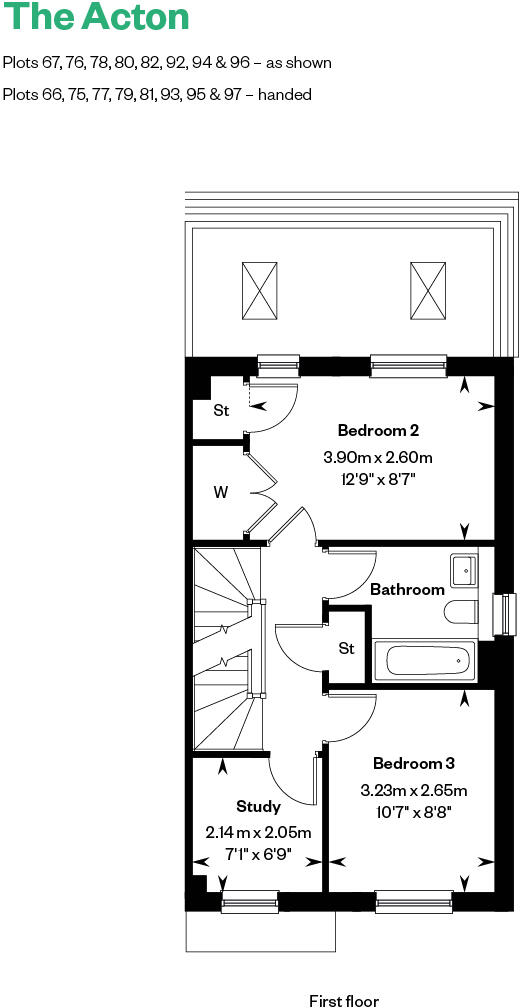
Buyers should note the property’s overall internal size is small (approximately 428 sq ft) and there is a single family bathroom for three bedrooms, which may feel cramped for larger families. Management fees are quoted at around £220.69–£279.85 and council tax banding is to be confirmed. Tenure noted as Freehold in the specification.
This home suits a small family, commuter couple or investor looking for a low-maintenance, energy-efficient property in an affluent area with good schools and transport links. The specification reduces immediate upgrade needs, but the compact floor area limits flexibility and may require creative storage solutions.
3 bedroom detached house for sale in Wheldon Lane,
Crowthorne,
RG40 3GA, RG45 — £525,000 • 3 bed • 1 bath • 665 ft²
3 bedroom semi-detached house for sale in Wheldon Lane,
Crowthorne,
RG40 3GA, RG45 — £525,000 • 3 bed • 1 bath • 308 ft²
4 bedroom detached house for sale in Wheldon Lane,
Crowthorne,
RG40 3GA, RG45 — £775,000 • 4 bed • 1 bath • 570 ft²
4 bedroom detached house for sale in Wheldon Lane,
Crowthorne,
RG40 3GA, RG45 — £865,000 • 4 bed • 1 bath • 534 ft²
3 bedroom semi-detached house for sale in Wheldon Lane,
Crowthorne,
RG40 3GA, RG45 — £570,000 • 3 bed • 1 bath • 748 ft²
3 bedroom detached house for sale in Oulton Lane, Crowthorne, Berkshire, RG45 — £540,000 • 3 bed • 2 bath • 1007 ft²






































































































