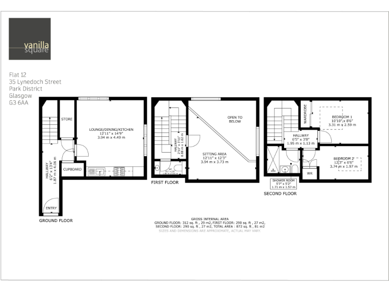
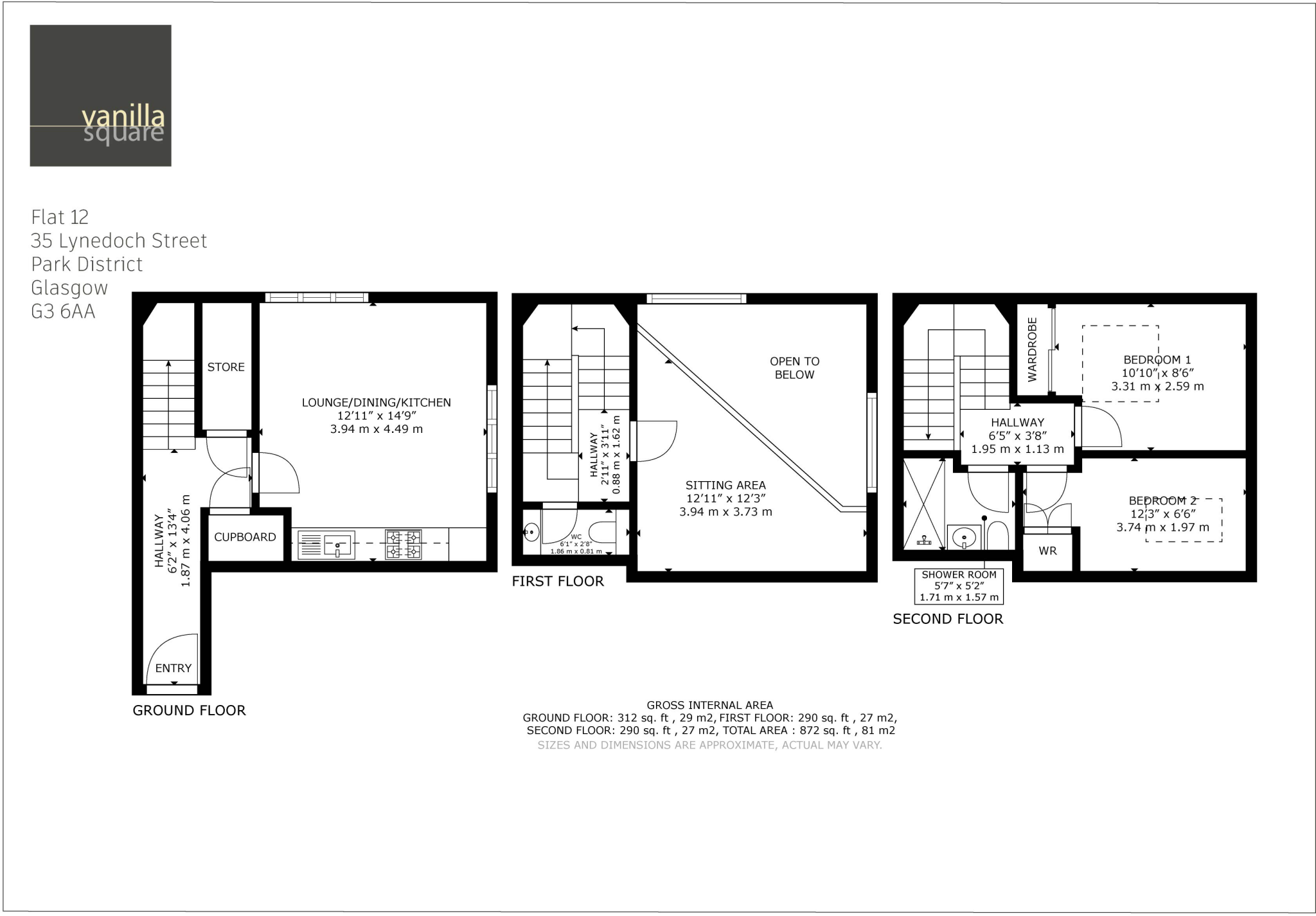
Light-filled two-bed triplex with dramatic ceilings in the Park District..
- Triplex 2-bedroom apartment with approx. 872 sq ft
- Immaculate condition with refitted kitchen and shower room
- Stunning double-height living area and large arched windows
- Built c.1857 with period features and central atrium
- Freehold tenure with security-controlled entrance
- Permit parking available via Glasgow City Council; off-street listed
- Single bathroom only; triplex layout involves multiple staircases
- Average broadband speeds and EER band D (moderate efficiency)
This striking two-bedroom triplex occupies around 872 sq ft within a converted Victorian building in Glasgow’s Park District. High ceilings, large arched windows and an impressive light-filled atrium give the apartment strong character and a spacious, airy feel. The property is presented in immaculate condition with a refitted kitchen, integrated appliances, and a modern shower room.
Set over three levels, the layout includes an open-plan living area with double-height ceilings, a mezzanine sitting room and two double bedrooms with fitted storage. Gas central heating and security-controlled entry are in place; the flat is freehold and benefits from off-street parking and permit parking via Glasgow City Council.
Practical considerations: the property has a single bathroom, average broadband speeds and an Energy Efficiency Rating of D. The surrounding area is classified as deprived, so buyers should weigh local socio-economic factors alongside the strong location near Kelvingrove Park and the West End’s amenities.
This home suits buyers who value period character, generous internal volume and proximity to city-centre and West End attractions. It’s a one-of-a-kind period conversion with immediate move-in condition, but prospective purchasers should be comfortable with the triplex layout and consider connectivity and EER when assessing running costs.
3 bedroom apartment for sale in Lynedoch Street, Park, Glasgow, G3 — £335,000 • 3 bed • 1 bath • 922 ft²
2 bedroom ground floor flat for sale in Flat 20, 35, Lynedoch Street, Park District, Glasgow, G3 6AA, G3 — £215,000 • 2 bed • 1 bath • 615 ft²
2 bedroom flat for sale in Park Circus Place, Park District, G3 — £289,000 • 2 bed • 2 bath • 1001 ft²
2 bedroom apartment for sale in Park Circus Place, Flat 4/8, Park District, Glasgow, G3 6AN, G3 — £249,000 • 2 bed • 2 bath • 753 ft²
2 bedroom apartment for sale in Lynedoch Street, Park, Glasgow, G3 — £195,000 • 2 bed • 1 bath • 688 ft²
2 bedroom apartment for sale in Park Quadrant, Glasgow, Glasgow City, G3 — £475,000 • 2 bed • 2 bath • 944 ft²






































































































