Compact family home with conservatory and easy access to schools and shops.
Chain free three-bedroom mid-terrace
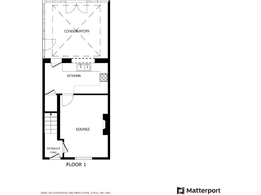
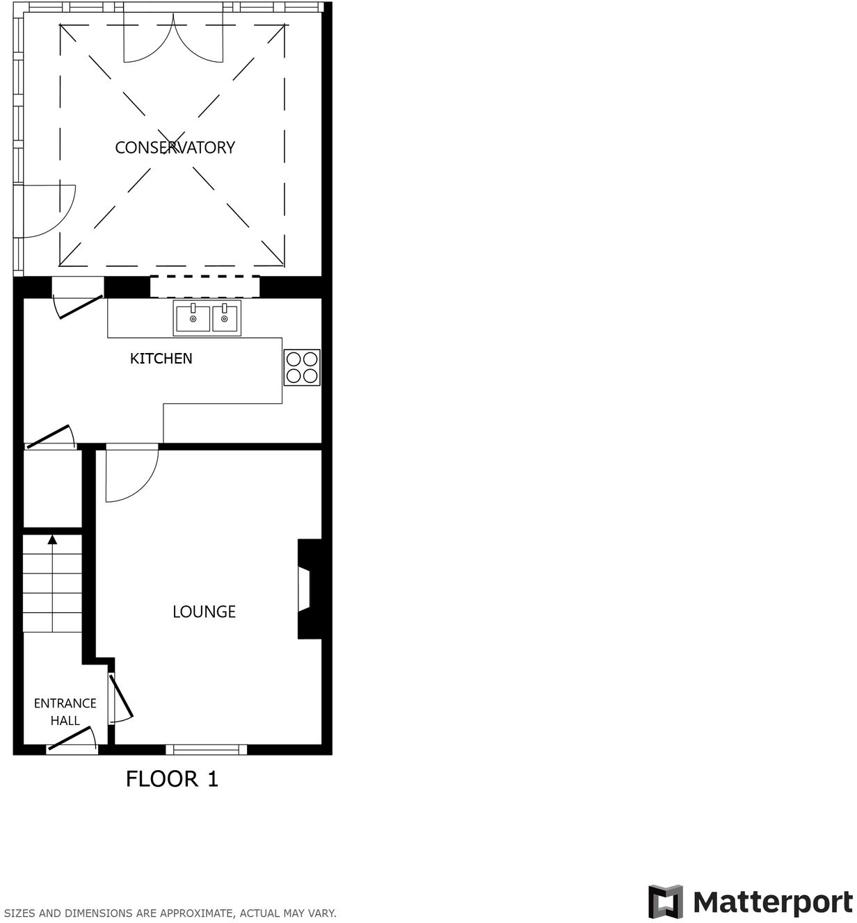
This chain-free, three-bedroom mid-terrace sits in the heart of Oadby and will suit a family seeking convenience and scope to personalise. The ground floor provides a lounge, contemporary kitchen and a conservatory that leads onto a small rear garden — a useful extra living space for dining or play. EPC B and mains gas central heating offer practical running costs and good energy performance.
At roughly 807 sq ft, the house is compact and efficiently laid out across two storeys with a single family bathroom. The property is freehold and ready to occupy but also offers straightforward scope to modernise or reconfigure if you want to increase living space or update finishes. Broadband and mobile signal are strong for home working or streaming.
Location is a key strength: close to Launde Primary, local shopsincluding Lidl, The Parade amenities and bus links. Note the area reports above-average crime and the plot is small, so buyers seeking large outdoor space or rural privacy should be aware. Walls are original solid brick with no known insulation improvements, which may be a consideration for buyers planning energy upgrades or refurbishment.
3 bedroom semi-detached house for sale in Sibton Lane, Oadby, Leicester, LE2 — £325,000 • 3 bed • 1 bath • 1076 ft²
3 bedroom terraced house for sale in Harborough Road, Oadby, LE2 — £220,000 • 3 bed • 1 bath • 635 ft²
3 bedroom semi-detached house for sale in Brambling Way, Oadby, Leicester, LE2 — £325,000 • 3 bed • 1 bath • 1055 ft²
3 bedroom end of terrace house for sale in Harborough Road, Oadby, Leicester, LE2 — £265,000 • 3 bed • 1 bath • 1143 ft²
2 bedroom terraced house for sale in Regent Street, Oadby, Leicester, LE2 — £230,000 • 2 bed • 1 bath • 653 ft²
3 bedroom semi-detached house for sale in Kendrick Drive, Oadby, Leicester, LE2 — £325,000 • 3 bed • 1 bath • 775 ft²










































































