Large secluded 4-bed home with expansive west garden and detached office, bordering the South Downs.
Substantial plot of about one third of an acre backing onto South Downs woodland
Set on roughly a third of an acre on a tree-lined lane, this substantial four-bedroom detached house delivers an unusually private plot with direct access onto woodland and the South Downs. The property’s west-facing gardens, natural stone patios and outbuildings (workshop, summerhouse, greenhouse) provide strong outdoor appeal for gardeners and those seeking space and seclusion close to Worthing.
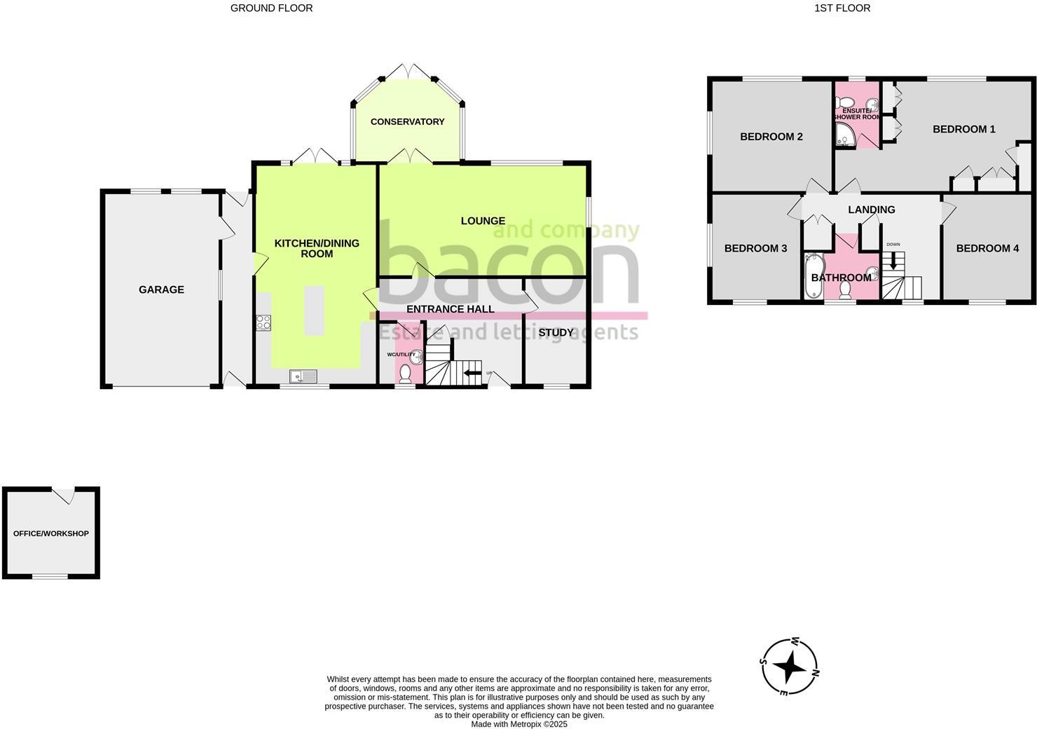
Inside, generous room sizes include a 24' lounge with log burner, a 27' kitchen/breakfast room with island and integrated appliances, a ground-floor study/office and a purpose-built detached office/workshop — useful for home working or hobbies. The master bedroom includes fitted wardrobes, air conditioning and an en-suite; three further double bedrooms and a family bathroom complete the first floor.
Practical features include double glazing, gas central heating, rainwater harvesting tanks for garden use, ample parking for three–four cars and a double-width garage. Broadband and mobile signal are excellent, and the plot’s scale and setting offer scope to extend or alter the house subject to planning.
Considerations: the house dates from the 1930s and, while well-presented in parts, may require updating in others to suit modern expectations. Council tax is noted as expensive. Buyers should allow for potential refurbishment and confirm measurements, services and planning options as needed.
4 bedroom detached house for sale in High Salvington, Worthing, BN13 — £1,100,000 • 4 bed • 1 bath • 1575 ft²
5 bedroom detached house for sale in Swandean Close, Worthing, BN13 — £750,000 • 5 bed • 2 bath • 1851 ft²
5 bedroom detached house for sale in Furze Road, High Salvington, Worthing BN13 3BP, BN13 — £875,000 • 5 bed • 3 bath • 2196 ft²
3 bedroom semi-detached house for sale in Broadview Gardens, High Salvington, BN13 — £500,000 • 3 bed • 1 bath • 1543 ft²
4 bedroom detached house for sale in Arundel Road, Worthing, West Sussex, BN13 — £850,000 • 4 bed • 3 bath • 1906 ft²
4 bedroom semi-detached house for sale in Arundel Road, Worthing BN13 3EG, BN13 — £675,000 • 4 bed • 2 bath • 1883 ft²


















































































































