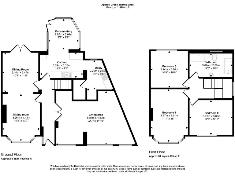
Large three-bedroom family home with conservatory and converted garage on a popular Nunthorpe road.
Three bedrooms with generous overall living space (approx. 1,485 sq ft)
Converted garage provides third reception / versatile living space
Conservatory overlooking private, decent-sized rear garden
Off-street driveway parking; freehold tenure
Double glazing present (installation date unknown)
Single family bathroom only for three bedrooms
Built c.1930s — may require typical older-house maintenance
Close to Good primary schools; nearest secondary rated Requires Improvement
Set on a favoured road in Nunthorpe, this roomy three-bedroom semi-detached house offers versatile family living across generous floor space (approx. 1,485 sq ft). The ground floor flows well with a sitting room, dining area, conservatory and a converted garage providing a useful third reception or playroom. A modern kitchen and adjoining utility add everyday practicality.
Upstairs are three well-proportioned bedrooms and a contemporary family bathroom. The home benefits from double glazing (install date unknown), mains gas boiler with radiators, and off-street parking to the front. The rear garden is a private, decent-sized space suited to children’s play and outdoor entertaining.
This property will suit families seeking room to grow in an affluent, well-connected suburb with good primary schools close by and local amenities including shops, playgrounds and woodland walks. It is freehold and carries the character of a 1930s-built semi with later modernisations, offering further potential to adapt or alter layouts to personal taste.
Buyers should note there is a single family bathroom for three bedrooms, and as a 1930s property some ongoing maintenance typical of older homes may be needed. Nunthorpe Academy (nearest secondary) is currently rated as requiring improvement, though several nearby primaries are rated Good. Overall this house gives a practical, spacious base for family life with clear scope for cosmetic updating or layout changes if desired.
4 bedroom detached house for sale in Clarence Road, Nunthorpe, TS7 — £565,000 • 4 bed • 2 bath • 2411 ft²
3 bedroom semi-detached house for sale in Cornwall Close, Nunthorpe, TS7 — £187,500 • 3 bed • 1 bath • 901 ft²
4 bedroom detached house for sale in Mallowdale, Nunthorpe, TS7 — £350,000 • 4 bed • 1 bath • 1220 ft²
3 bedroom semi-detached house for sale in Windsor Crescent, Nunthorpe, TS7 — £200,000 • 3 bed • 1 bath • 924 ft²
4 bedroom detached house for sale in Brass Wynd, Nunthorpe, TS7 — £480,000 • 4 bed • 3 bath • 2820 ft²
4 bedroom detached house for sale in Darnbrook Way, Nunthorpe, TS7 — £320,000 • 4 bed • 2 bath • 1678 ft²










































































