Compact, modern flat with parking and lift, ideal for first-time buyers or investors.
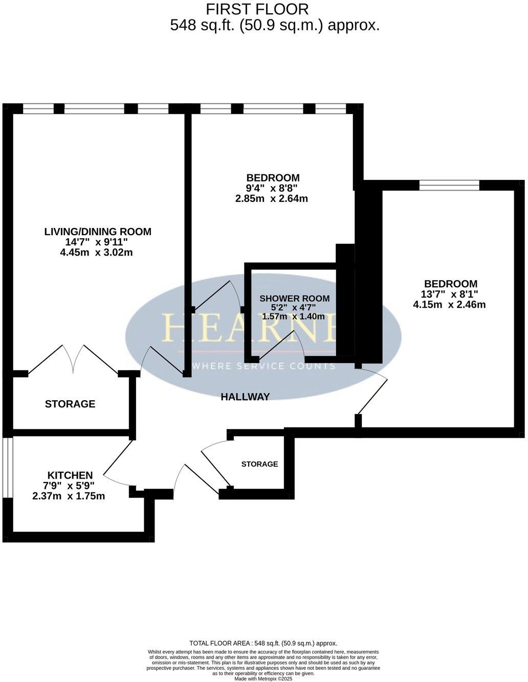
Chain-free two-bedroom first-floor apartment, converted 2017
This chain-free, two-double-bedroom first-floor apartment is a compact, modern home a short walk from Bournemouth town centre and the sandy seafront. Converted in 2017, the flat benefits from a secure entry system, lift access and an allocated off-street parking space — useful pluses for everyday convenience and short breaks.
Internally the layout is efficient: a bright living/dining room faces the street, a contemporary fitted kitchen includes integrated appliances and a washing machine, and both bedrooms are double-sized. The shower room has a walk-in enclosure and the finish is neutral throughout, making the property easy to move into or let out immediately. Short-term holiday lets are permitted, increasing lettings flexibility for investors.
Practical running costs and tenure details are important: the property is leasehold with about 116 years remaining, an annual service charge of approximately £1,400 and ground rent of £100 per year. Heating is by electric room heaters, which can mean higher energy bills compared with gas systems. There is no private garden and outside amenity is limited to the communal forecourt and parking bay.
Location strengths are balanced by local realities: the building sits in a busy, mixed-use neighbourhood close to shops, transport links and schools, but the immediate area records higher crime rates and is assessed as having significant deprivation. Buyers should factor these issues into long-term plans and consider a survey and local checks before committing. Council Tax is low (Band A) and the property’s compact footprint and proximity to the seafront make it particularly suitable for first-time buyers or investors seeking a lettable seaside apartment.
2 bedroom apartment for sale in Southcote Road, Bournemouth, Dorset, BH1 — £240,000 • 2 bed • 1 bath • 949 ft²
2 bedroom flat for sale in Christchurch Road, Bournemouth, Dorset, BH1 — £230,000 • 2 bed • 1 bath • 619 ft²
2 bedroom apartment for sale in Stirling House 48-50 Poole Hill, Bournemouth, BH2 — £195,000 • 2 bed • 1 bath • 539 ft²
1 bedroom apartment for sale in Christchurch Road, Bournemouth, BH1 — £145,000 • 1 bed • 1 bath • 485 ft²
1 bedroom flat for sale in Christchurch Road, Bournemouth, BH1 — £150,000 • 1 bed • 1 bath • 614 ft²
2 bedroom apartment for sale in Wimborne Road, Bournemouth, BH2 — £200,000 • 2 bed • 1 bath • 736 ft²


















































