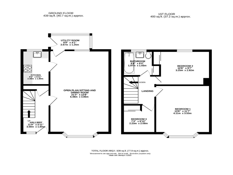
Charming three-bedroom close to schools canal and town amenities.
- Traditional bay-fronted mid-terrace with good natural light
- Three bedrooms over two storeys, practical family layout
- Open-plan sitting and dining room with fireplace
- Conservatory-style utility with distant views to the rear
- Front and rear gardens, shed and outbuilding included
- Gas central heating and double glazing installed
- Stone walls likely without modern insulation; energy improvements advised
- Single bathroom and slow broadband speeds reported
This traditional bay-fronted mid-terrace offers bright, practical living across two floors and suits a growing family or first-time buyer. The sitting room’s bay window floods the open-plan living and dining area with light while a fitted kitchen leads to a large conservatory-style utility overlooking distant views.
Externally the property has managed front and rear gardens with a shed and outbuilding, plus gated access and hedged frontage. Gas central heating and double glazing provide everyday comfort; the plot is a typical mid-terrace size and easy to maintain.
Buyers should note the house dates from the 1930s with stone walls assumed to lack modern insulation; some energy-efficiency improvements could be beneficial. There is a single bathroom and broadband speeds are reported as slow. Overall the home is well cared-for and offers sensible scope for updating rather than major reconstruction.
3 bedroom semi-detached house for sale in Orchard Avenue, Whaley Bridge, High Peak, SK23 — £325,000 • 3 bed • 1 bath • 753 ft²
3 bedroom terraced house for sale in Buxton Road, Whaley Bridge, SK23 — £253,000 • 3 bed • 2 bath • 764 ft²
3 bedroom terraced house for sale in Macclesfield Road, Whaley Bridge, SK23 — £275,000 • 3 bed • 2 bath • 1432 ft²
3 bedroom terraced house for sale in Macclesfield Road, Whaley Bridge, High Peak, SK23 — £275,000 • 3 bed • 2 bath • 1227 ft²
2 bedroom terraced house for sale in Meadowside, Newtown, SK12 — £245,000 • 2 bed • 1 bath • 831 ft²
2 bedroom semi-detached house for sale in Macclesfield Road, Whaley Bridge, High Peak, SK23 — £238,000 • 2 bed • 1 bath • 679 ft²






















































