South-facing garden, garage and approved loft conversion plans near Bridport coast.
- Four bedrooms including principal with en-suite
- South-facing, enclosed rear garden with patio and decking
- Driveway plus single integral garage
- Solar panels on 25-year lease; 14 years remaining, no owner income
- Planning permission granted for loft conversion and rear extension
- EPC rating B; gas central heating and double glazing
- Council tax Band E (above average)
- Broadband and mobile service reported as average
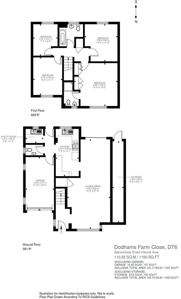
Set within an Area of Outstanding Natural Beauty on the edge of Bridport, this four-bedroom detached house offers comfortable, well-proportioned family living with clear scope to increase space. The ground floor provides a generous lounge/diner opening to a south-facing rear garden, adjacent kitchen, utility and cloakroom; upstairs hosts three double bedrooms, a single bedroom and a principal en-suite. The property benefits from gas central heating, double glazing and an EPC rating of B.
Practical outside features include a driveway, single integral garage and a long timber lean-to/store along the side of the house. Low running costs are helped by roof-mounted solar panels; note these are on a 25-year lease with 14 years remaining and do not generate income for the owner. Council tax sits in Band E, above average for the area.
A key opportunity is the recently granted planning permission (Sept 2024, P/HOU/2024/04241) to convert the loft with three dormer windows and add a single-storey rear extension — a straightforward way to add substantial living space if you wish to extend. Broadband and mobile service are average; local services, schools and the West Bay coast are all within easy reach, making the location well suited to family life and local amenity access.
Overall, this is a well-presented, mid-sized detached family house in a quiet residential close with practical storage, parking and clear potential to expand. Buyers should be aware of the solar lease arrangement and the council tax band when assessing running costs.
4 bedroom detached house for sale in Bridport, Dorset, DT6 — £515,000 • 4 bed • 2 bath • 1372 ft²
4 bedroom detached house for sale in Bridport, Dorset, DT6 — £750,000 • 4 bed • 2 bath • 2134 ft²
3 bedroom detached house for sale in Bridport, DT6 — £425,000 • 3 bed • 1 bath • 886 ft²
4 bedroom detached house for sale in Bridport, DT6 — £525,000 • 4 bed • 2 bath • 1316 ft²
4 bedroom detached house for sale in Hemlets Close, Bridport, DT6 — £570,000 • 4 bed • 2 bath • 1926 ft²
4 bedroom detached bungalow for sale in Stuart Way, Bridport, DT6 — £535,000 • 4 bed • 2 bath • 1287 ft²


























































































