KA26 9AH - 6 bedroom terraced house for sale in Louisa Drive, Girvan,…

View on Property Piper

6 bedroom terraced house for sale in Louisa Drive, Girvan, Ayrshire, KA26

Summary - 33, LOUISA DRIVE, GIRVAN KA26 9AH

6 bed 1 bath Terraced

**Standout Features:**
- 6 spacious bedrooms with stunning sea views toward Ailsa Craig and Arran
- Proximity to the beach, schools, shops, and parks
- Walled garden with timber cabin and two garages
- Retains original period features and architecture
- Well-maintained with double glazing and gas central heating
- Located in a picturesque Conservation Area

**Key Details:**
- Built in 1900, offers a mix of historical charm and modern potential
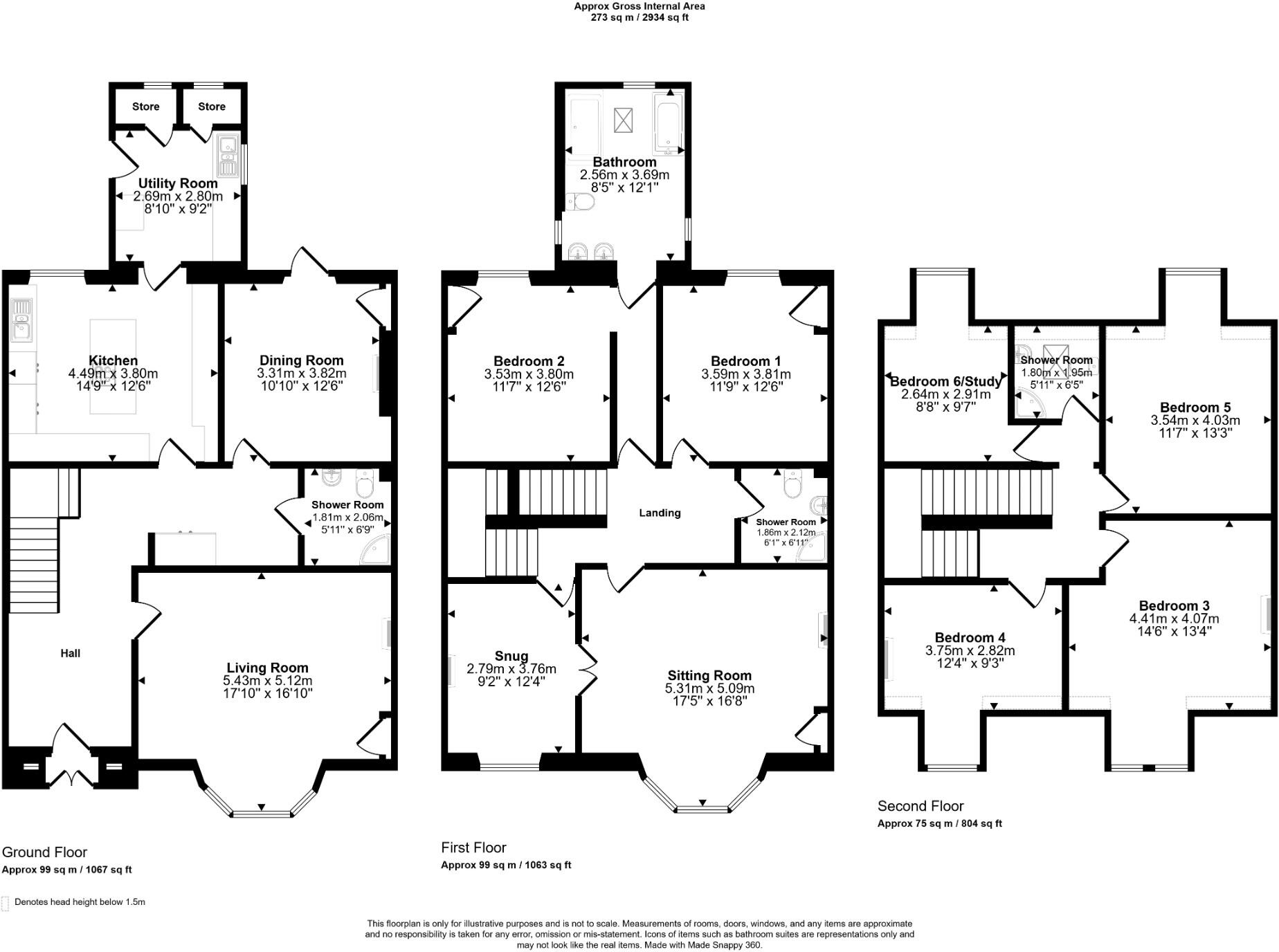
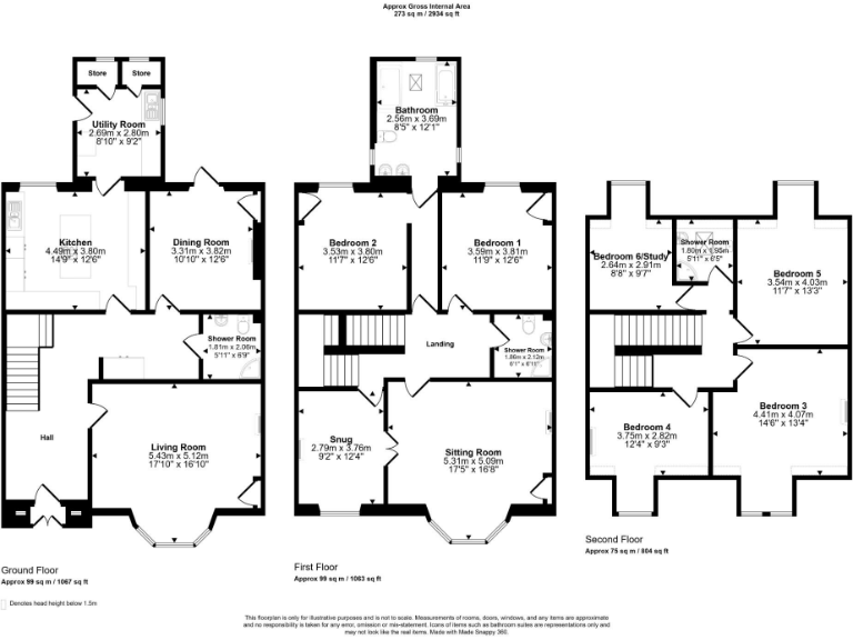
- Total area of 3,466 sq ft across three levels
- Includes multiple reception rooms, three shower rooms, and a bathroom
- High ceilings and large windows add to the spacious feel
- Council Tax Band F; priced at £369,750

This impressive Victorian terraced house presents a unique opportunity for families or investors seeking a property with character and potential in a sought-after coastal location. With breathtaking views and only a few yards from the beach, it promises a lifestyle of comfort and tranquility. The generous living spaces, including multiple reception areas, allow for family gatherings or peaceful retreats, complemented by a beautifully maintained walled garden perfect for outdoor enjoyment. Though it requires some updates, the essence and original charm of the home are palpable, making it an ideal setting for dream renovations. With excellent local amenities, including schools and leisure facilities, this property is more than just a home—it's a chance to secure a superior lifestyle by the coast. Act quickly to seize this rare offering!

Property Details

Brochure Descriptions

Image Descriptions

Floorplan Description

Rooms

Textual Property Features

Detected Visual Features

Nearest Bars And Restaurants

,,,,}

Nearest General Shops

,,}

Nearest Grocery shops

,,}

Nearest Supermarkets

,,}

Nearest Religious buildings

,,}

Nearest Medical buildings

,,,}

Nearest Airports

}

Nearest Leisure Facilities

,,,,}

Nearest Tourist attractions

,,}

Nearest Train stations

,,,,}

Nearest Bus stations and stops

,,,,}

Nearest Hotels

,,}

Tags

Local Market Stats

AirBnB Data

Similar Properties

Meta

High Res Images

Compatible Images

Low res Images

Thumbnails

Raw Images

High Res Floorplan Images

Compatible Floorplan Images

Low res Floorplan Images

FloorplanImages Thumbnail

Raw Floorplan Images