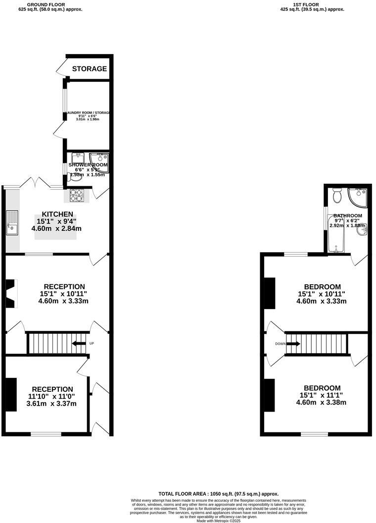
**Standout Features:**
- Beautifully presented two-bedroom Victorian mid-terrace
- Two bathrooms, including a four-piece en suite and a ground-floor shower room
- Extended kitchen/breakfast room with vaulted glass roof, offering natural light
- Generous, westerly-facing garden with a patio area and storage options
- Retained period features including fireplaces and cornicing
- Excellent transport links and local amenities
**Summary Description:**
Welcome to this charming two-bedroom Victorian mid-terrace home, perfect for first-time buyers seeking a unique blend of character and modern comfort. Inside, the property boasts two spacious reception rooms adorned with period features and warm wooden floors, ideal for cozy gatherings or as functional workspaces. The extended kitchen is a modern delight, featuring contemporary cabinetry and a stunning glass roof that floods the room with natural light, seamlessly connecting indoor and outdoor living.
Upstairs, you’ll find two generous double bedrooms, each with lovely garden views and their own style. The added bonus of a four-piece en suite in the main bedroom enhances the property’s appeal for families or guests. Enjoy serene afternoons in the expertly maintained garden, complete with patio space for al fresco dining and a handy storage area that holds further potential for conversion.
Situated in the heart of Kingswood, this home offers easy access to a vibrant community filled with amenities and excellent schools, along with swift transport links to Bristol city center. With its delightful ambiance and practical layout, this property won't be on the market for long—experience the comfort and convenience that awaits you!
2 bedroom semi-detached house for sale in Court Road, Kingswood, Bristol, BS15 9QB, BS15 — £310,000 • 2 bed • 1 bath • 956 ft²
2 bedroom terraced house for sale in Alma Road, Kingswood, Bristol, BS15 — £300,000 • 2 bed • 1 bath • 979 ft²
2 bedroom terraced house for sale in Woodside Road, Kingswood, Bristol, BS15 — £300,000 • 2 bed • 1 bath • 818 ft²
2 bedroom terraced house for sale in Hill Street, Kingswood, Bristol, BS15 — £270,000 • 2 bed • 1 bath • 670 ft²
3 bedroom terraced house for sale in Hanham Road, Bristol, BS15 — £340,000 • 3 bed • 2 bath • 1163 ft²
2 bedroom end of terrace house for sale in Hanham Road, Bristol, BS15 — £325,000 • 2 bed • 1 bath • 1184 ft²






















































































