Low-maintenance family home near station and Wrekin walks.
Three double bedrooms plus en-suite and dressing area
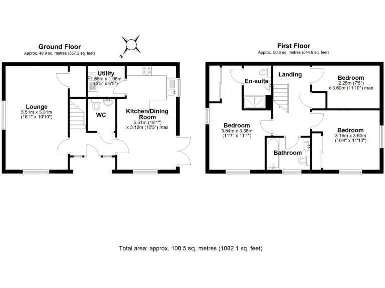
A well-presented three-bedroom semi-detached house that feels larger than its footprint, arranged over two storeys and offering around 1082 sq ft of living space. The ground floor has a welcoming hall, cloakroom, generous lounge and a modern open-plan kitchen/dining area with French doors to the enclosed rear patio and lawn — a practical layout for family life and entertaining.
Upstairs the principal bedroom includes a dressing area, fitted wardrobes and an en-suite shower, complemented by two further good-sized bedrooms and a family bathroom. Gas central heating and double glazing are fitted throughout, and a separate utility adds convenience for busy households.
Outside there's off-street parking on the driveway, gated side access and a private rear garden that is low-maintenance and secure for children or pets. The location delivers quick access to Wellington town, the railway station, the M54 and local schools, while the nearby Wrekin offers countryside walks and outdoor recreation.
Practical considerations: the plot is modest in size and the property sits in an area with above-average crime statistics, which some buyers will want to weigh against the home’s strengths. Council tax is moderate. Overall, this is a sensible, modern family home for buyers seeking low-maintenance living close to transport links and green space.
3 bedroom semi-detached house for sale in 7 Wellings Grove Arleston TF1 2NF, TF1 — £260,000 • 3 bed • 1 bath • 910 ft²
3 bedroom semi-detached house for sale in Rosthwaite, Wellington, Telford, Shropshire, TF1 1HY, TF1 — £260,000 • 3 bed • 1 bath • 1052 ft²
3 bedroom semi-detached house for sale in Christine Avenue, Wellington, Telford, Shropshire, TF1 2DX, TF1 — £300,000 • 3 bed • 1 bath • 1359 ft²
3 bedroom semi-detached house for sale in Waugh Drive, Wellington, Telford, Shropshire, TF1 — £275,000 • 3 bed • 2 bath • 1174 ft²
3 bedroom semi-detached house for sale in Vesey Court, Wellington, Telford, TF6 5DT, TF6 — £265,000 • 3 bed • 2 bath • 1063 ft²
4 bedroom detached house for sale in St Lawrence Close, Wellington, Telford, And Wrekin, TF1 — £340,000 • 4 bed • 2 bath • 1245 ft²














































































































