Chain-free second-floor retirement flat with communal facilities and easy town-centre access..
No onward chain, ready for immediate occupation
Purpose-built retirement complex with on-site manager
Lift access, communal lounge, gardens and parking
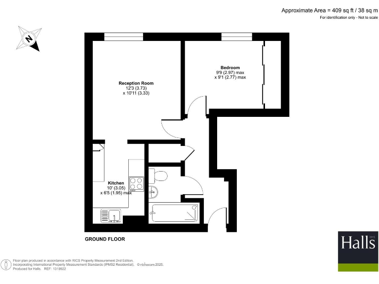
Compact one-bedroom flat — approx. 409 sq ft
Leasehold — c.89 years remaining; ground rent £100 p/a
Service charge ~£2,796/year (£233/month)
Electric storage heating; double glazing pre-2002
Area records very high crime; location rated very deprived
A chain-free, purpose-built retirement apartment on the second floor of Regent Court, convenient for Oswestry town centre. The building offers lift access, an on-site development manager, communal lounge and gardens, plus secure off-road parking — practical features for independent over-60s living.
The apartment is compact (approx. 409 sq ft) with a spacious lounge, fitted kitchen, double bedroom with built-in wardrobe, and bathroom. It is ready for immediate occupation but shows dated internal finishes and would benefit from cosmetic updating to reflect modern tastes. Heating is via electric storage heaters and double glazing was fitted before 2002.
Important practical details: the property is leasehold with about 89 years remaining, an annual ground rent of £100 and an average service charge of around £2,796 per year (£233/month). Council Tax band is low (Band A). The area has very high recorded crime and scores as very deprived — buyers should weigh local safety and support services when considering the purchase.
For a retiree seeking easy access to shops, local amenities and low-mobility features (lift and communal facilities), this apartment offers convenience and a ready-made community. For buyers prioritising space, modern heating or a long lease, the size, electric heating and remaining lease term are material factors to consider.
2 bedroom apartment for sale in Roft Street, Oswestry, SY11 — £99,950 • 2 bed • 2 bath • 643 ft²
1 bedroom apartment for sale in Lutton Close, Oswestry, SY11 — £70,000 • 1 bed • 1 bath • 485 ft²
2 bedroom flat for sale in Beatrice Court, Beatrice Street, Oswestry, SY11 — £120,000 • 2 bed • 1 bath • 479 ft²
2 bedroom apartment for sale in Beatrice Court, Gittin Street, Oswestry, SY11 — £122,000 • 2 bed • 1 bath • 463 ft²
1 bedroom apartment for sale in Apartment 3, Holbache Court, SY11 — £159,950 • 1 bed • 1 bath • 467 ft²
2 bedroom apartment for sale in Abraham Court, Oswestry, SY11 — £115,000 • 2 bed • 1 bath • 655 ft²






























































