Large adaptable home near shops and station, ideal for families or investors.
Chain free and freehold, ready for a quicker sale process
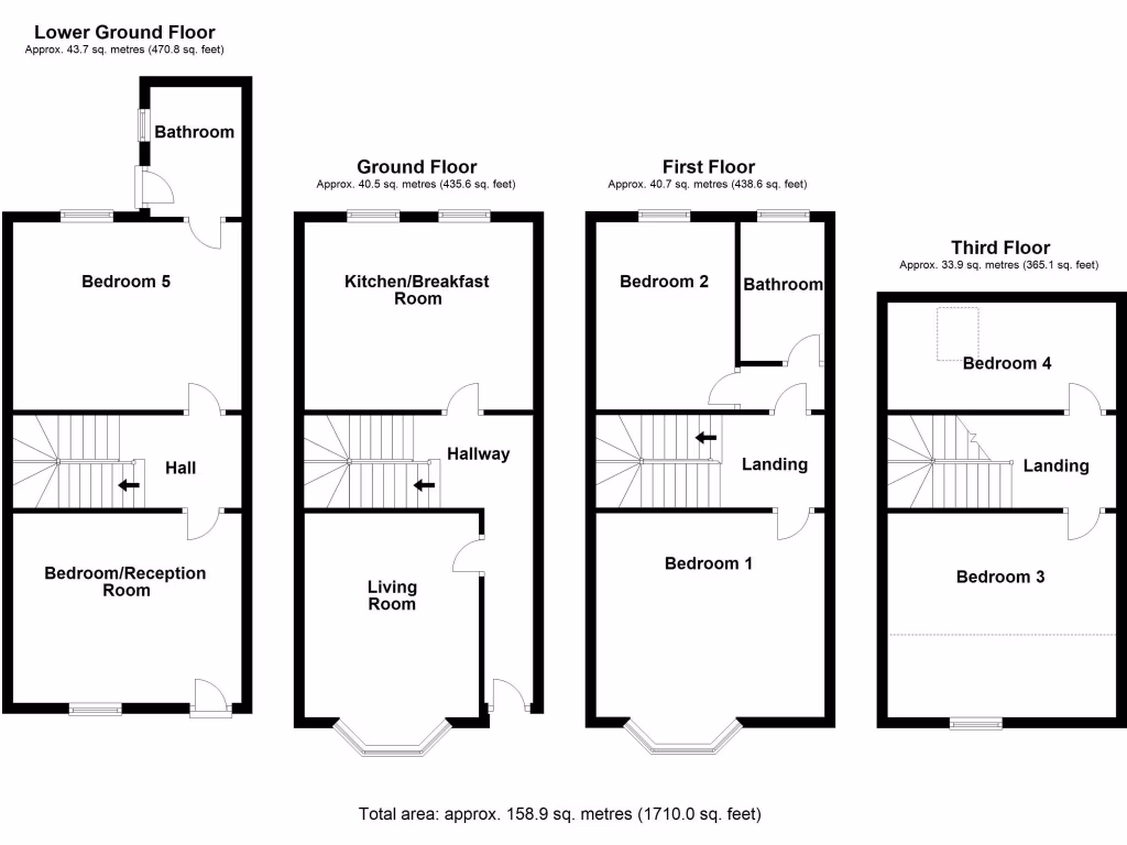
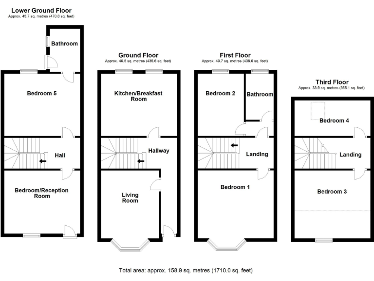
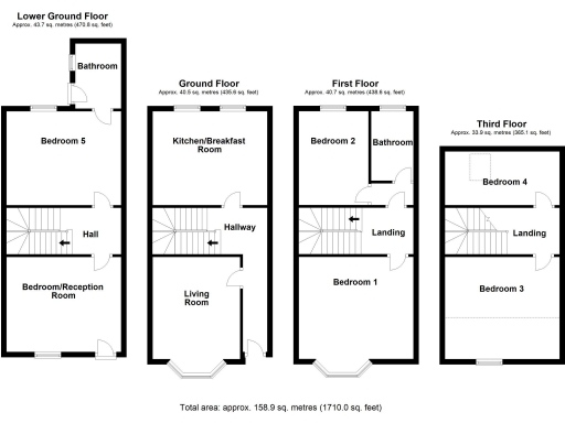
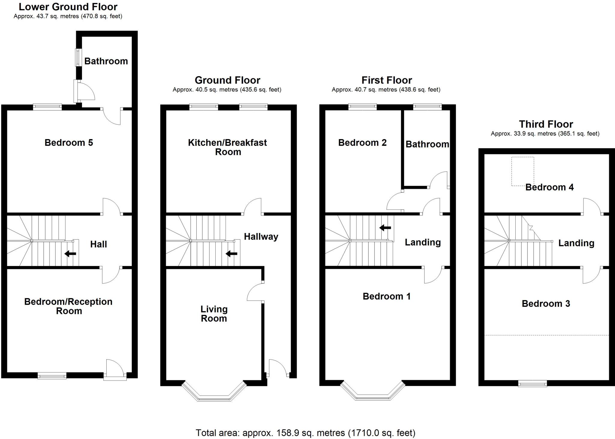
This four-storey terraced house on London Road offers generous living space across approximately 1,710 sq ft, arranged as four/five bedrooms, two reception rooms and two bathrooms. Its town-centre position places shops, station and services within easy walking distance, and the enclosed rear garden with lane access is a practical city-centre feature. The property is freehold and being sold chain free, which suits buyers wanting a quicker move or an investor seeking an early let.
The house shows period-style features—bay windows, high ceilings and a fireplace—alongside modern practicalities such as double glazing and mains gas central heating. There is clear potential to reconfigure part of the layout to create a self-contained flat or annex, making the building attractive to investors or larger families wanting multi-generational accommodation or rental income.
Buyers should note important constraints: the area is described as very deprived with above-average crime levels, and the plot is small, so outdoor space is limited. The interior will need updating in places to reach modern standards. Records also list a later construction period alongside period-style features, so interested buyers or surveyors should clarify the building’s age and construction details before purchase.
Overall, this is a value-driven town property for someone seeking space in a central Pembroke Dock location with scope to add value through renovation or reconfiguration. Fast broadband and excellent mobile signal support modern living or rental demand, but plan for some refurbishment and factor local area conditions into long-term use or investment strategies.
5 bedroom terraced house for sale in 21 London Road, Pembroke Dock, SA72 — £165,000 • 5 bed • 2 bath • 1331 ft²
3 bedroom terraced house for sale in Dimond Street East, Pembroke Dock, Pembrokeshire, SA72 — £145,000 • 3 bed • 1 bath
3 bedroom terraced house for sale in Station Road, Pembroke, Pembrokeshire, SA71 — £170,000 • 3 bed • 1 bath • 836 ft²
2 bedroom terraced house for sale in Wellington Street, Pembroke Dock, SA72 — £120,000 • 2 bed • 1 bath • 805 ft²
3 bedroom terraced house for sale in Munro Court, Pembroke Dock, SA72 — £119,950 • 3 bed • 2 bath • 761 ft²
5 bedroom terraced house for sale in North Street, Pembroke Dock, SA72 — £220,000 • 5 bed • 2 bath • 1476 ft²






































































































